
| Артикул | 4M711 |
| Количество этажей: | 2 |
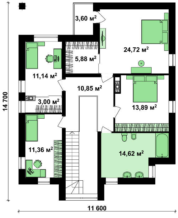
| Общая площадь: | 223.48 м2 |
| Жилая площадь: | 105.78 м2 |
| Высота дома: | 8.25 м |
| Высота потолка: | 2.80 м |
| Угол наклона кровли: | 2°/3 ° |
| Площадь крыши: | 126.00 м2 |
| Количество спален: | 4 |
| Количество санузлов: | 2 |
| Гараж: | Гараж на одно авто |
| Минимальный размер участка(длина): | 24.70 м |
| Минимальный размер участка(ширина): | 19.60 м |
Материалы: | |
| Стены: | газобетон, керамические блоки |
| Перекрытие: | монолитное перекрытие |
| Кровля: | ПВХ мембрана |
| Фундамент: | ленточный монолитно-сборной |
| Артикул | 4M711 |
| Количество этажей: | 2 |
| Общая площадь: | 223.48 м2 |
| Жилая площадь: | 105.78 м2 |
| Высота дома: | 8.25 м |
| Высота потолка: | 2.80 м |
| Угол наклона кровли: | 2°/3 ° |
| Площадь крыши: | 126.00 м2 |
| Количество спален: | 4 |
| Количество санузлов: | 2 |
| Гараж: | Гараж на одно авто |
| Минимальный размер участка(длина): | 24.70 м |
| Минимальный размер участка(ширина): | 19.60 м |
Материалы: | |
| Стены: | газобетон, керамические блоки |
| Перекрытие: | монолитное перекрытие |
| Кровля: | ПВХ мембрана |
| Фундамент: | ленточный монолитно-сборной |
Приобретая проект дома в компании Dom4M, Вы получаете комплект чертежей - 2 экземпляра, необходимый для проведения строительных работ и беспрепятственного получения разрешения на строительство.
Проект содержит три раздела – Архитектурный, Конструктивный и Инженерный (Водоснабжение, Отопление, Вентиляция, Канализация, Электроснабжение) + Пояснительная записка
1. Архитектурный раздел:
2. Конструктивный раздел:
3. Инженерный раздел:
Водоснабжение и канализация
Отопление, вентиляция
Электротехнические решения:
Проект является типовым и не учитывает конкретных условий строительства
Срок изготовления проекта дома составляет от 3 до 30 рабочих дней.
Объем проектной документации – от 50 до 100 страниц А4 и А3, в зависимости от сложности проекта
Наша команда Архитекторов, Конструкторов и Инженеров – всегда готовы воплотить Вашу мечту в реальность!
Мы можем вносить любые изменения в проект по Вашему пожеланию и адаптировать его с учетом конкретных геолого-топографических и климатических условий, за дополнительную плату.
Всегда рады Вам помочь!

Зима началась сурово, и второго декабря мела метель, а снег засыпал крыши домов и дороги. Павел загнал авто во встроенный гараж, и, ежась от холода, быстро поднялся в дом.
- Анна, у нас все готово?
- Да, Павел Владимирович. Скоро будут гости, - ответила горничная и удалилась.
Павлу предстояла вечеринка в честь его новоселья: только узкий круг, и только высокопоставленные лица. Он поднялся наверх, вошел в спальню и сменил деловой костюм на уютный джемпер. Подойдя к стеклянной двери балкона, он выглянул вниз. Перекрытый бассейн напоминал снежный купол, а снегопад никак не заканчивался. Он переживал, что дороги заметет окончательно, и часть гостей не сможет добраться. А сможет ли доехать Она?...
Раздался звонок. На пороге стоял его давний друг Антон, который вручил хозяину коробку, похлопал по плечу, сразу же прошел в гостиную.
- Однако! Был бы я мастером слова, мне бы не хватило и часа, чтобы описать свои впечатления, - улыбнулся Антон. – Друг, ты превзошел себя. Да здравствует модерн!
- Это я тебе еще второй этаж не показывал. Пойдем. Вот это моя спальня. А здесь еще комнаты, пока не решил, как их оформить.
В одной из комнат стояло прекрасное фортепиано, раритетное, но в отличном состоянии.
- Играешь? - спросил Антон.
Он не успел получить ответ, когда начали подходить другие гости. Павел спустился вниз, пожимая друзьям руки. Вечер вступил в свой разгар, когда дверь отворилась без звонка, и в холл вошла Рита. Она бесшумно повесила пальто, вышла к гостям и издалека кивнула Павлу.
- Привет, - сказал он, подойдя к Рите.
- Впечатляет, - сказала Рита, обводя глазами дом. – Знаешь, заметно, что ты делал это для души. Модерн в его лучшем исполнении.
Она отошла в сторону, потерявшись среди гостей. Павел заметил, как ее хрупкая фигура нырнула на второй этаж. Он пошел за ней. На втором этаже было почти темно и тихо. Снизу едва доносились разговоры, а здесь царил покой. Павел остановился и прислушался. Из-за двери одной из комнат полилась мелодия. Он отправился туда, и, отворив дверь, увидел сидящую за фортепиано Риту. Она самозабвенно играла, не озираясь по сторонам. Шаль упала с ее плеч на деревянный пол, из-под прически выбилась непокорная прядь. Казалось, что сейчас для нее не существует ничего, кроме инструмента. Рита была похожа на ожившее изваяние великого скульптора, украсившее дом Павла. Ее черты были идеальны, и она казалась настолько возвышенной, что Павел замер в дверном проеме, не смея отвести от нее глаз. Музыка заполняла пустую комнату: белые стены, черный рояль и прекрасная женщина за ним. Это был самый лучший в мире дизайн: интерьер, наполненный изяществом женщины, будоражившей его мысли множество дней.
Она закончила играть, обернулась и посмотрела на Павла.
- Ты услышала, как я вошел?
- Я почувствовала, что ты рядом, - ответила Рита.
Они молча смотрели друг на друга: слова были лишними. А даже если и не лишними, то человечество пока что не нашло таких слов, способных описать то, что происходило между ними в этот магический миг. Комната укрывала их мир загадкой, в окно отчаянно постукивали обледенелые снежинки, которые неистово бросала на стекла метель. Может, где-то сейчас и существовала другая жизнь, но за пределами комнаты в доме Павла.
- Кажется, гости ушли, - шепотом сказал Рита.
Павел прислушался: голоса внизу затихли. Даже прислуга разошлась. В доме повисла такая звенящая тишина, что было слышно треск поленьев в камине на первом этаже.
- Сыграй еще, - попросил Павел.
Рита вернула ладони на фортепиано, и музыка ворвалась в тишину. Отбиваясь от пустых стен, она лилась сквозь воздух, задевая чувства.
- Я стану твоей невидимкой:
Гоняйся за мною во сне.
Увлекшись азартной поимкой,
Ты крикни сильней в тишине.
Я ветром свободным тебе отзовусь:
Послушай, ведь это же я.
В тебе сочетается счастье и грусть:
Пространство теперь мне семья.
Не бойся, почувствуй: я рядом, я – здесь,
Ни мало, ни много меня.
А наша любовь в мире все-таки есть,
Теплом обнимает, маня.
Прости. Отпусти. Там, где я, меня нет.
Жизнь – сон, а во сне мы вдвоем.
Прощай. Наступает незваный рассвет,
И ночью с тобой мы споем…
Рита снова замолчала, окончив петь. Павел укутал ее в плед, провел к двери, ведущей на балкон и сказал:
- Видишь, какая буря? Природа сильнее нас. Но здесь, в моем доме, не бойся ничего: он крепкий, выдержит любой ветер и мороз. Когда я строил его, то думал о тебе. Это вдохновляло меня, и только благодаря тебе дом приобрел красоту. Но он пуст без тебя. Ты приходишь и уходишь, словно та самая невидимка, о которой ты пела. А по утрам я варю крепкий кофе и жду, когда закончится день, чтобы уснуть и увидеть во сне тебя. Потом я просыпаюсь, и все начинается сначала: утро, кофе, гараж, дорога. Я возвращаюсь вечером, и мне кажется, что в доме витает аромат твоих духов, и со второго этажа спустишься ты. Но тебя нет…
Никто их не слышал: только старое фортепиано запомнило их разговор. Дом погрузился в ночь, фонари во дворе вспыхнули и погасли. Со стороны казалось, что двухэтажный особняк спал, но это было не так. Два сердца боролись с двумя разумами. Назад возвращаться поздно, идти вперед – страшно. А вдруг дом растает и они окажутся на краю земли, совсем одни? И метель поглотит их. Ладони Риты стали ледяными, но ей было душно, будто в тропический зной.
Рита подняла густые ресницы, за которыми скрывались карие глаза, полные слез. По ее щеке заструился соленый ручеек. Она неловко смахнула жидкие хрусталики, стараясь, чтобы Павел их не заметил в кромешной темноте. Она обняла его, прижалась к высокому плечу, будто кошка, и сказала:
- Ты поймал меня…
Зима началась сурово, и второго декабря мела метель, а снег засыпал крыши домов и дороги. Павел загнал авто во встроенный гараж, и, ежась от холода, быстро поднялся в дом.
- Анна, у нас все готово?
- Да, Павел Владимирович. Скоро будут гости, - ответила горничная и удалилась.
Павлу предстояла вечеринка в честь его новоселья: только узкий круг, и только высокопоставленные лица. Он поднялся наверх, вошел в спальню и сменил деловой костюм на уютный джемпер. Подойдя к стеклянной двери балкона, он выглянул вниз. Перекрытый бассейн напоминал снежный купол, а снегопад никак не заканчивался. Он переживал, что дороги заметет окончательно, и часть гостей не сможет добраться. А сможет ли доехать Она?...
Раздался звонок. На пороге стоял его давний друг Антон, который вручил хозяину коробку, похлопал по плечу, сразу же прошел в гостиную.
- Однако! Был бы я мастером слова, мне бы не хватило и часа, чтобы описать свои впечатления, - улыбнулся Антон. – Друг, ты превзошел себя. Да здравствует модерн!
- Это я тебе еще второй этаж не показывал. Пойдем. Вот это моя спальня. А здесь еще комнаты, пока не решил, как их оформить.
В одной из комнат стояло прекрасное фортепиано, раритетное, но в отличном состоянии.
- Играешь? - спросил Антон.
Он не успел получить ответ, когда начали подходить другие гости. Павел спустился вниз, пожимая друзьям руки. Вечер вступил в свой разгар, когда дверь отворилась без звонка, и в холл вошла Рита. Она бесшумно повесила пальто, вышла к гостям и издалека кивнула Павлу.
- Привет, - сказал он, подойдя к Рите.
- Впечатляет, - сказала Рита, обводя глазами дом. – Знаешь, заметно, что ты делал это для души. Модерн в его лучшем исполнении.
Она отошла в сторону, потерявшись среди гостей. Павел заметил, как ее хрупкая фигура нырнула на второй этаж. Он пошел за ней. На втором этаже было почти темно и тихо. Снизу едва доносились разговоры, а здесь царил покой. Павел остановился и прислушался. Из-за двери одной из комнат полилась мелодия. Он отправился туда, и, отворив дверь, увидел сидящую за фортепиано Риту. Она самозабвенно играла, не озираясь по сторонам. Шаль упала с ее плеч на деревянный пол, из-под прически выбилась непокорная прядь. Казалось, что сейчас для нее не существует ничего, кроме инструмента. Рита была похожа на ожившее изваяние великого скульптора, украсившее дом Павла. Ее черты были идеальны, и она казалась настолько возвышенной, что Павел замер в дверном проеме, не смея отвести от нее глаз. Музыка заполняла пустую комнату: белые стены, черный рояль и прекрасная женщина за ним. Это был самый лучший в мире дизайн: интерьер, наполненный изяществом женщины, будоражившей его мысли множество дней.
Она закончила играть, обернулась и посмотрела на Павла.
- Ты услышала, как я вошел?
- Я почувствовала, что ты рядом, - ответила Рита.
Они молча смотрели друг на друга: слова были лишними. А даже если и не лишними, то человечество пока что не нашло таких слов, способных описать то, что происходило между ними в этот магический миг. Комната укрывала их мир загадкой, в окно отчаянно постукивали обледенелые снежинки, которые неистово бросала на стекла метель. Может, где-то сейчас и существовала другая жизнь, но за пределами комнаты в доме Павла.
- Кажется, гости ушли, - шепотом сказал Рита.
Павел прислушался: голоса внизу затихли. Даже прислуга разошлась. В доме повисла такая звенящая тишина, что было слышно треск поленьев в камине на первом этаже.
- Сыграй еще, - попросил Павел.
Рита вернула ладони на фортепиано, и музыка ворвалась в тишину. Отбиваясь от пустых стен, она лилась сквозь воздух, задевая чувства.
- Я стану твоей невидимкой:
Гоняйся за мною во сне.
Увлекшись азартной поимкой,
Ты крикни сильней в тишине.
Я ветром свободным тебе отзовусь:
Послушай, ведь это же я.
В тебе сочетается счастье и грусть:
Пространство теперь мне семья.
Не бойся, почувствуй: я рядом, я – здесь,
Ни мало, ни много меня.
А наша любовь в мире все-таки есть,
Теплом обнимает, маня.
Прости. Отпусти. Там, где я, меня нет.
Жизнь – сон, а во сне мы вдвоем.
Прощай. Наступает незваный рассвет,
И ночью с тобой мы споем…
Рита снова замолчала, окончив петь. Павел укутал ее в плед, провел к двери, ведущей на балкон и сказал:
- Видишь, какая буря? Природа сильнее нас. Но здесь, в моем доме, не бойся ничего: он крепкий, выдержит любой ветер и мороз. Когда я строил его, то думал о тебе. Это вдохновляло меня, и только благодаря тебе дом приобрел красоту. Но он пуст без тебя. Ты приходишь и уходишь, словно та самая невидимка, о которой ты пела. А по утрам я варю крепкий кофе и жду, когда закончится день, чтобы уснуть и увидеть во сне тебя. Потом я просыпаюсь, и все начинается сначала: утро, кофе, гараж, дорога. Я возвращаюсь вечером, и мне кажется, что в доме витает аромат твоих духов, и со второго этажа спустишься ты. Но тебя нет…
Никто их не слышал: только старое фортепиано запомнило их разговор. Дом погрузился в ночь, фонари во дворе вспыхнули и погасли. Со стороны казалось, что двухэтажный особняк спал, но это было не так. Два сердца боролись с двумя разумами. Назад возвращаться поздно, идти вперед – страшно. А вдруг дом растает и они окажутся на краю земли, совсем одни? И метель поглотит их. Ладони Риты стали ледяными, но ей было душно, будто в тропический зной.
Рита подняла густые ресницы, за которыми скрывались карие глаза, полные слез. По ее щеке заструился соленый ручеек. Она неловко смахнула жидкие хрусталики, стараясь, чтобы Павел их не заметил в кромешной темноте. Она обняла его, прижалась к высокому плечу, будто кошка, и сказала:
- Ты поймал меня…