С правилами ознакомлен(а) Авторизация
Авторизация нужна для сохраниения Вашего "Избранного".
Войти через:

 

 

 

 

 

 

 

Уважаемые клиенты, компания DOM4M продолжает работу и выполняет свои обязательства в установленные сроки. Берегите себя и своих близких!

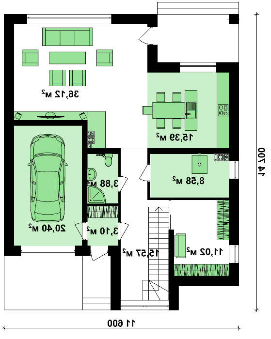
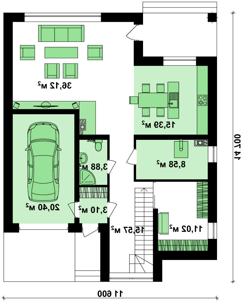
  • Первый этаж:
    Первый этаж::
    Первый этаж::
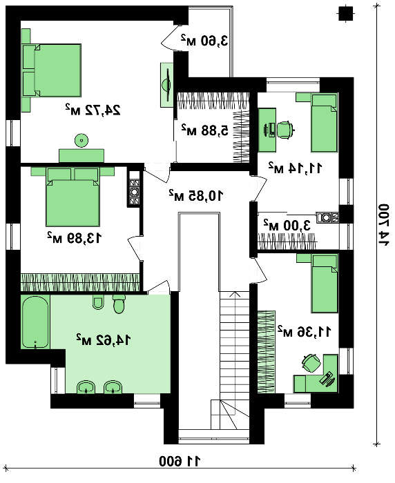
    Второй этаж:
    Второй этаж::
    Второй этаж::
    Расположение на участке:
    Проект красивого современного дома
  • 4M711 Проект красивого современного дома

    Артикул4M711
    Количество этажей:2
    Общая площадь:223.48 м2
    Жилая площадь:105.78 м2
    Высота дома:8.25 м
    Высота потолка:2.80 м
    Угол наклона кровли:2°/3 °
    Площадь крыши:126.00 м2
    Количество спален:4
    Количество санузлов:2
    Гараж:Гараж на одно авто
    Минимальный размер участка(длина):24.70 м
    Минимальный размер участка(ширина):19.60 м
    Материалы:
    Стены:газобетон, керамические блоки
    Перекрытие:монолитное перекрытие
    Кровля:ПВХ мембрана
    Фундамент:ленточный монолитно-сборной
Планы этажей
  • Первый этаж:
    Первый этаж:
    Первый этаж:
    Второй этаж:
    Второй этаж:
    Второй этаж:
Фасады и расположение на участке
  • Расположение на участке:
    Проект красивого современного дома
Состав проекта

Приобретая проект дома в компании Dom4M, Вы получаете комплект чертежей - 2 экземпляра, необходимый для проведения строительных работ и беспрепятственного получения разрешения на строительство.

Проект содержит три раздела – Архитектурный, Конструктивный и Инженерный (Водоснабжение, Отопление, Вентиляция, Канализация, Электроснабжение) + Пояснительная записка

1. Архитектурный раздел:

  • Общие данные по проекту
  • План координационных осей
  • Поэтажные кладочные планы
  • Поэтажные маркировочные планы с экспликацией помещений
  • План кровли
  • Разрезы и состав конструкций
  • Фасады с ведомостью внешних отделок
  • Элементы проемов – спецификация
  • Ведомость перемычек – сечения и спецификация
  • Экспликация полов
  • Объемы основных строительных материалов
  • Архитектурные узлы в конструкциях

2. Конструктивный раздел:

  • Общие данные по проекту
  • Схемы расположения и расчеты фундаментов
  • Элементы каркаса – схемы расположения
  • Схема расположения перекрытий
  • Опоры перекрытия на стены или Узлы армирования
  • Элементы кровли – схемы расположения
  • Чертежи отдельных элементов, узлы крепления, сечения
  • Ведомости расхода стали и бетона

3.  Инженерный раздел:

              Водоснабжение и канализация

  • Условные обозначения с общими данными
  • Поэтажная система водоснабжения и канализации
  • Аксономитрическая схема водоснабжения и канализации
  • Узлы и спецификация материалов

              Отопление, вентиляция

  • Условные обозначения с общими даннями
  • Система вентиляции
  • Система отопления
  • Аксономитрическая схема системы отопления
  • Тепловая схема
  • Спецификация материалов

             Электротехнические решения:

  • Условные обозначения и общие данные
  • Принципиальная схема ВРУ
  • План сетей освещения, план силовых сетей
  • Схема системы уравнения потенциалов
  • Схема повторного контура заземления
  • Спецификация материалов

Проект является типовым и не учитывает конкретных условий строительства

Срок изготовления проекта дома составляет от 3 до 30 рабочих дней.

Объем проектной документации – от  50 до 100 страниц А4 и А3, в зависимости от сложности проекта

 

Наша команда Архитекторов, Конструкторов и Инженеров – всегда готовы воплотить Вашу мечту в реальность!

Мы можем вносить любые изменения в проект по Вашему пожеланию и адаптировать его с учетом конкретных геолого-топографических и климатических условий, за дополнительную плату.

  • Получить профессиональную консультацию у наших специалистов, Вы можете любым способом связи: закажите обратный звонок, по skype, e-mail, телефон - наши контакты.

Всегда рады Вам помочь!

Прочитать полный текст
Акции

          

       Вы купили проект, и были бы не против вернуть часть денег затраченных на покупку? Или, может быть, таким образом, дать возможность подзаработать своим детям, племянникам, крестникам? :) Начните вести в комментариях к проекту свой блог "ДНЕВНИК СТРОЙКИ" описывайте и размещайте фотографии от первого дня строительства и до заселения! Рассказывайте обо всём, что может быть интересно другим посетителям нашего сайта! Мы гарантируем, что автор КАЖДОГО полного блога получит 10% от суммы, затраченной на приобретёние проекта.

 

        Если Вы строитесь по нашему проекту и Вам интересна эта акция - свяжитесь с нами, чтобы узнать подробнее! С желающими мы готовы заключить юридический договор о возврате средств!

        Вкладка "комментарии" в каждом проекте и в каждом разделе: пишите Ваши мнения и оценки, размещайте фото и описания стройки!

 

Дополнительные пакеты

Проект красивого современного дома 4M711

Зима началась сурово, и второго декабря мела метель, а снег засыпал крыши домов и дороги. Павел загнал авто во встроенный гараж, и, ежась от холода, быстро поднялся в дом.

- Анна, у нас все готово?

- Да, Павел Владимирович. Скоро будут гости, - ответила горничная и удалилась.

Павлу предстояла вечеринка в честь его новоселья: только узкий круг, и только высокопоставленные лица. Он поднялся наверх, вошел в спальню и сменил деловой костюм на уютный джемпер. Подойдя к стеклянной двери балкона, он выглянул вниз. Перекрытый бассейн напоминал снежный купол, а снегопад никак не заканчивался. Он переживал, что дороги заметет окончательно, и часть гостей не сможет добраться. А сможет ли доехать Она?...

Раздался звонок. На пороге стоял его давний друг Антон, который вручил хозяину коробку, похлопал по плечу, сразу же прошел в гостиную.

- Однако! Был бы я мастером слова, мне бы не хватило и часа, чтобы описать свои впечатления, - улыбнулся Антон. – Друг, ты превзошел себя. Да здравствует модерн!

- Это я тебе еще второй этаж не показывал. Пойдем. Вот это моя спальня. А здесь еще комнаты, пока не решил, как их оформить.

В одной из комнат стояло прекрасное фортепиано, раритетное, но в отличном состоянии.

- Играешь? - спросил Антон.

Он не успел получить ответ, когда начали подходить другие гости. Павел спустился вниз, пожимая друзьям руки. Вечер вступил в свой разгар, когда дверь отворилась без звонка, и в холл вошла Рита. Она бесшумно повесила пальто, вышла к гостям и издалека кивнула Павлу.

- Привет, - сказал он, подойдя к Рите.

- Впечатляет, - сказала Рита, обводя глазами дом. – Знаешь, заметно, что ты делал это для души. Модерн в его лучшем исполнении.

Она отошла в сторону, потерявшись среди гостей. Павел заметил, как ее хрупкая фигура нырнула на второй этаж. Он пошел за ней. На втором этаже было почти темно и тихо. Снизу едва доносились разговоры, а здесь царил покой. Павел остановился и прислушался. Из-за двери одной из комнат полилась мелодия. Он отправился туда, и, отворив дверь, увидел сидящую за фортепиано Риту. Она самозабвенно играла, не озираясь по сторонам. Шаль упала с ее плеч на деревянный пол, из-под прически выбилась непокорная прядь. Казалось, что сейчас для нее не существует ничего, кроме инструмента. Рита была похожа на ожившее изваяние великого скульптора, украсившее дом Павла. Ее черты были идеальны, и она казалась настолько возвышенной, что Павел замер в дверном проеме, не смея отвести от нее глаз. Музыка заполняла пустую комнату: белые стены, черный рояль и прекрасная женщина за ним. Это был самый лучший в мире дизайн: интерьер, наполненный изяществом женщины, будоражившей его мысли множество дней.

Она закончила играть, обернулась и посмотрела на Павла.

- Ты услышала, как я вошел?

- Я почувствовала, что ты рядом, - ответила Рита.

Они молча смотрели друг на друга: слова были лишними. А даже если и не лишними, то человечество пока что не нашло таких слов, способных описать то, что происходило между ними в этот магический миг. Комната укрывала их мир загадкой, в окно отчаянно постукивали обледенелые снежинки, которые неистово бросала на стекла метель. Может, где-то сейчас и существовала другая жизнь, но за пределами комнаты в доме Павла.

- Кажется, гости ушли, - шепотом сказал Рита.

Павел прислушался: голоса внизу затихли. Даже прислуга разошлась. В доме повисла такая звенящая тишина, что было слышно треск поленьев в камине на первом этаже.

- Сыграй еще, - попросил Павел.

Рита вернула ладони на фортепиано, и музыка ворвалась в тишину. Отбиваясь от пустых стен, она лилась сквозь воздух, задевая чувства.

- Я стану твоей невидимкой:

 Гоняйся за мною во сне.

Увлекшись азартной поимкой,

Ты крикни сильней в тишине.

Я ветром свободным тебе отзовусь:

Послушай, ведь это же я.

В тебе сочетается счастье и грусть:

Пространство теперь мне семья.

Не бойся, почувствуй: я рядом, я – здесь,

Ни мало, ни много меня.

А наша любовь в мире все-таки есть,

Теплом обнимает, маня.

Прости. Отпусти. Там, где я, меня нет.

Жизнь – сон, а во сне мы вдвоем.

Прощай. Наступает незваный рассвет,

И ночью с тобой мы споем…

Рита снова замолчала, окончив петь. Павел укутал ее в плед, провел к двери, ведущей на балкон и сказал:

- Видишь, какая буря? Природа сильнее нас. Но здесь, в моем доме, не бойся ничего: он крепкий, выдержит любой ветер и мороз. Когда я строил его, то думал о тебе. Это вдохновляло меня, и только благодаря тебе дом приобрел красоту. Но он пуст без тебя. Ты приходишь и уходишь, словно та самая невидимка, о которой ты пела. А по утрам я варю крепкий кофе и жду, когда закончится день, чтобы уснуть и увидеть во сне тебя. Потом я просыпаюсь, и все начинается сначала: утро, кофе, гараж, дорога. Я возвращаюсь вечером, и мне кажется, что в доме витает аромат твоих духов, и со второго этажа спустишься ты. Но тебя нет…

Никто их не слышал: только старое фортепиано запомнило их разговор. Дом погрузился в ночь, фонари во дворе вспыхнули и погасли. Со стороны казалось, что двухэтажный особняк спал, но это было не так. Два сердца боролись с двумя разумами. Назад возвращаться поздно, идти вперед – страшно. А вдруг дом растает и они окажутся на краю земли, совсем одни? И метель поглотит их. Ладони Риты стали ледяными, но ей было душно, будто в тропический зной.

Рита подняла густые ресницы, за которыми скрывались карие глаза, полные слез. По ее щеке заструился соленый ручеек. Она неловко смахнула жидкие хрусталики, стараясь, чтобы Павел их не заметил в кромешной темноте. Она обняла его, прижалась к высокому плечу, будто кошка, и сказала:

- Ты поймал меня…

 

 

Зима началась сурово, и второго декабря мела метель, а снег засыпал крыши домов и дороги. Павел загнал авто во встроенный гараж, и, ежась от холода, быстро поднялся в дом.

- Анна, у нас все готово?

- Да, Павел Владимирович. Скоро будут гости, - ответила горничная и удалилась.

Павлу предстояла вечеринка в честь его новоселья: только узкий круг, и только высокопоставленные лица. Он поднялся наверх, вошел в спальню и сменил деловой костюм на уютный джемпер. Подойдя к стеклянной двери балкона, он выглянул вниз. Перекрытый бассейн напоминал снежный купол, а снегопад никак не заканчивался. Он переживал, что дороги заметет окончательно, и часть гостей не сможет добраться. А сможет ли доехать Она?...

Раздался звонок. На пороге стоял его давний друг Антон, который вручил хозяину коробку, похлопал по плечу, сразу же прошел в гостиную.

- Однако! Был бы я мастером слова, мне бы не хватило и часа, чтобы описать свои впечатления, - улыбнулся Антон. – Друг, ты превзошел себя. Да здравствует модерн!

- Это я тебе еще второй этаж не показывал. Пойдем. Вот это моя спальня. А здесь еще комнаты, пока не решил, как их оформить.

В одной из комнат стояло прекрасное фортепиано, раритетное, но в отличном состоянии.

- Играешь? - спросил Антон.

Он не успел получить ответ, когда начали подходить другие гости. Павел спустился вниз, пожимая друзьям руки. Вечер вступил в свой разгар, когда дверь отворилась без звонка, и в холл вошла Рита. Она бесшумно повесила пальто, вышла к гостям и издалека кивнула Павлу.

- Привет, - сказал он, подойдя к Рите.

- Впечатляет, - сказала Рита, обводя глазами дом. – Знаешь, заметно, что ты делал это для души. Модерн в его лучшем исполнении.

Она отошла в сторону, потерявшись среди гостей. Павел заметил, как ее хрупкая фигура нырнула на второй этаж. Он пошел за ней. На втором этаже было почти темно и тихо. Снизу едва доносились разговоры, а здесь царил покой. Павел остановился и прислушался. Из-за двери одной из комнат полилась мелодия. Он отправился туда, и, отворив дверь, увидел сидящую за фортепиано Риту. Она самозабвенно играла, не озираясь по сторонам. Шаль упала с ее плеч на деревянный пол, из-под прически выбилась непокорная прядь. Казалось, что сейчас для нее не существует ничего, кроме инструмента. Рита была похожа на ожившее изваяние великого скульптора, украсившее дом Павла. Ее черты были идеальны, и она казалась настолько возвышенной, что Павел замер в дверном проеме, не смея отвести от нее глаз. Музыка заполняла пустую комнату: белые стены, черный рояль и прекрасная женщина за ним. Это был самый лучший в мире дизайн: интерьер, наполненный изяществом женщины, будоражившей его мысли множество дней.

Она закончила играть, обернулась и посмотрела на Павла.

- Ты услышала, как я вошел?

- Я почувствовала, что ты рядом, - ответила Рита.

Они молча смотрели друг на друга: слова были лишними. А даже если и не лишними, то человечество пока что не нашло таких слов, способных описать то, что происходило между ними в этот магический миг. Комната укрывала их мир загадкой, в окно отчаянно постукивали обледенелые снежинки, которые неистово бросала на стекла метель. Может, где-то сейчас и существовала другая жизнь, но за пределами комнаты в доме Павла.

- Кажется, гости ушли, - шепотом сказал Рита.

Павел прислушался: голоса внизу затихли. Даже прислуга разошлась. В доме повисла такая звенящая тишина, что было слышно треск поленьев в камине на первом этаже.

- Сыграй еще, - попросил Павел.

Рита вернула ладони на фортепиано, и музыка ворвалась в тишину. Отбиваясь от пустых стен, она лилась сквозь воздух, задевая чувства.

- Я стану твоей невидимкой:

 Гоняйся за мною во сне.

Увлекшись азартной поимкой,

Ты крикни сильней в тишине.

Я ветром свободным тебе отзовусь:

Послушай, ведь это же я.

В тебе сочетается счастье и грусть:

Пространство теперь мне семья.

Не бойся, почувствуй: я рядом, я – здесь,

Ни мало, ни много меня.

А наша любовь в мире все-таки есть,

Теплом обнимает, маня.

Прости. Отпусти. Там, где я, меня нет.

Жизнь – сон, а во сне мы вдвоем.

Прощай. Наступает незваный рассвет,

И ночью с тобой мы споем…

Рита снова замолчала, окончив петь. Павел укутал ее в плед, провел к двери, ведущей на балкон и сказал:

- Видишь, какая буря? Природа сильнее нас. Но здесь, в моем доме, не бойся ничего: он крепкий, выдержит любой ветер и мороз. Когда я строил его, то думал о тебе. Это вдохновляло меня, и только благодаря тебе дом приобрел красоту. Но он пуст без тебя. Ты приходишь и уходишь, словно та самая невидимка, о которой ты пела. А по утрам я варю крепкий кофе и жду, когда закончится день, чтобы уснуть и увидеть во сне тебя. Потом я просыпаюсь, и все начинается сначала: утро, кофе, гараж, дорога. Я возвращаюсь вечером, и мне кажется, что в доме витает аромат твоих духов, и со второго этажа спустишься ты. Но тебя нет…

Никто их не слышал: только старое фортепиано запомнило их разговор. Дом погрузился в ночь, фонари во дворе вспыхнули и погасли. Со стороны казалось, что двухэтажный особняк спал, но это было не так. Два сердца боролись с двумя разумами. Назад возвращаться поздно, идти вперед – страшно. А вдруг дом растает и они окажутся на краю земли, совсем одни? И метель поглотит их. Ладони Риты стали ледяными, но ей было душно, будто в тропический зной.

Рита подняла густые ресницы, за которыми скрывались карие глаза, полные слез. По ее щеке заструился соленый ручеек. Она неловко смахнула жидкие хрусталики, стараясь, чтобы Павел их не заметил в кромешной темноте. Она обняла его, прижалась к высокому плечу, будто кошка, и сказала:

- Ты поймал меня…

 

 

Прочитать полный текст
История просмотров
Комментарии
Чтобы оставить комментарий, Вы должны либо заполнить поля ниже, либо авторизироваться на сайте.
Загрузить фото, до 5 штук
Ваша оценка:
Подобные
ЗАКАЗАТЬ
© 2010-2021 Dom4M. Все права защищены
This site is protected by reCAPTCHA and the Google Privacy Policy and Terms of Service apply