| Артикул | 4M848 |
| Количество этажей: | 2 |
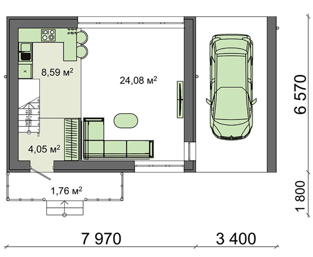
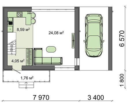
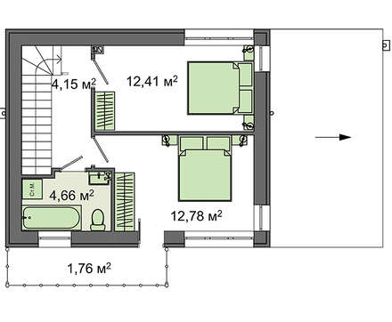
| Общая площадь: | 74.24 м2 |
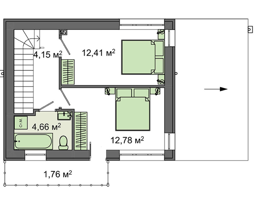
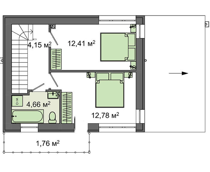
| Жилая площадь: | 49.27 м2 |
| Высота дома: | 7.35 м |
| Высота потолка: | 2.80 м |
| Угол наклона кровли: | 2 ° |
| Площадь крыши: | 64.50 м2 |
| Количество спален: | 2 |
| Количество санузлов: | 1 |
| Гараж: | Гараж на одно авто |
| Минимальный размер участка(длина): | 14.50 м |
| Минимальный размер участка(ширина): | 19.50 м |
| Площадь застройки: | 81.5 м2 |
Материалы: | |
| Стены: | газобетонные блоки |
| Перекрытие: | монолитное перекрытие |
| Кровля: | ПВХ мембрана |
| Фундамент: | монолитная лента |
| Артикул | 4M848 |
| Количество этажей: | 2 |
| Общая площадь: | 74.24 м2 |
| Жилая площадь: | 49.27 м2 |
| Высота дома: | 7.35 м |
| Высота потолка: | 2.80 м |
| Угол наклона кровли: | 2 ° |
| Площадь крыши: | 64.50 м2 |
| Количество спален: | 2 |
| Количество санузлов: | 1 |
| Гараж: | Гараж на одно авто |
| Минимальный размер участка(длина): | 14.50 м |
| Минимальный размер участка(ширина): | 19.50 м |
| Площадь застройки: | 81.5 м2 |
Материалы: | |
| Стены: | газобетонные блоки |
| Перекрытие: | монолитное перекрытие |
| Кровля: | ПВХ мембрана |
| Фундамент: | монолитная лента |
Приобретая проект дома в компании Dom4M, Вы получаете комплект чертежей - 2 экземпляра, необходимый для проведения строительных работ и беспрепятственного получения разрешения на строительство.
Проект содержит три раздела – Архитектурный, Конструктивный и Инженерный (Водоснабжение, Отопление, Вентиляция, Канализация, Электроснабжение) + Пояснительная записка
1. Архитектурный раздел:
2. Конструктивный раздел:
3. Инженерный раздел:
Водоснабжение и канализация
Отопление, вентиляция
Электротехнические решения:
Проект является типовым и не учитывает конкретных условий строительства
Срок изготовления проекта дома составляет от 3 до 30 рабочих дней.
Объем проектной документации – от 50 до 100 страниц А4 и А3, в зависимости от сложности проекта
Наша команда Архитекторов, Конструкторов и Инженеров – всегда готовы воплотить Вашу мечту в реальность!
Мы можем вносить любые изменения в проект по Вашему пожеланию и адаптировать его с учетом конкретных геолого-топографических и климатических условий, за дополнительную плату.
Всегда рады Вам помочь!

Навещая иностранные государства, политики тщательно относятся к тому дому, где им предстоит проводить рабочий визит. Когда датский вице-премьер-министр Бендт Бендтсен запланировал поездку в Польшу, то специально для него арендовали двухэтажный дом в сдержанном стиле неподалеку от Варшавы.
Это не только требования международного протокола, но каждому человеку свойственно гостеприимство, то же касается и принимающую польскую сторону. Дом не отличался яркостью, но в нем была хорошо выражена игра фактур и простота форм, которая дополняла ансамбль сдержанности. Это оказалось по нраву истинному скандинаву: высокопоставленный датский гость остался доволен жилищем.
Сохранить сухим его костюм в дождливую польскую осень помог встроенный в дом гараж, а расположиться с комфортом его семье – удачная планировка. Для небольшой семьи, каковой является семья сэра Бендтсена, дом подошел как нельзя лучше: первый, гостевой, этаж, и второй, зона отдыха. И сколько бы не рассказывали сказок про своенравность скандинавов, но датчанин опроверг эти слухи: простой дом, в котором много света, вот и все, что позволит чувствовать себя комфортно даже в другой стране.
Навещая иностранные государства, политики тщательно относятся к тому дому, где им предстоит проводить рабочий визит. Когда датский вице-премьер-министр Бендт Бендтсен запланировал поездку в Польшу, то специально для него арендовали двухэтажный дом в сдержанном стиле неподалеку от Варшавы.
Это не только требования международного протокола, но каждому человеку свойственно гостеприимство, то же касается и принимающую польскую сторону. Дом не отличался яркостью, но в нем была хорошо выражена игра фактур и простота форм, которая дополняла ансамбль сдержанности. Это оказалось по нраву истинному скандинаву: высокопоставленный датский гость остался доволен жилищем.
Сохранить сухим его костюм в дождливую польскую осень помог встроенный в дом гараж, а расположиться с комфортом его семье – удачная планировка. Для небольшой семьи, каковой является семья сэра Бендтсена, дом подошел как нельзя лучше: первый, гостевой, этаж, и второй, зона отдыха. И сколько бы не рассказывали сказок про своенравность скандинавов, но датчанин опроверг эти слухи: простой дом, в котором много света, вот и все, что позволит чувствовать себя комфортно даже в другой стране.