| Артикул | 4M821 |
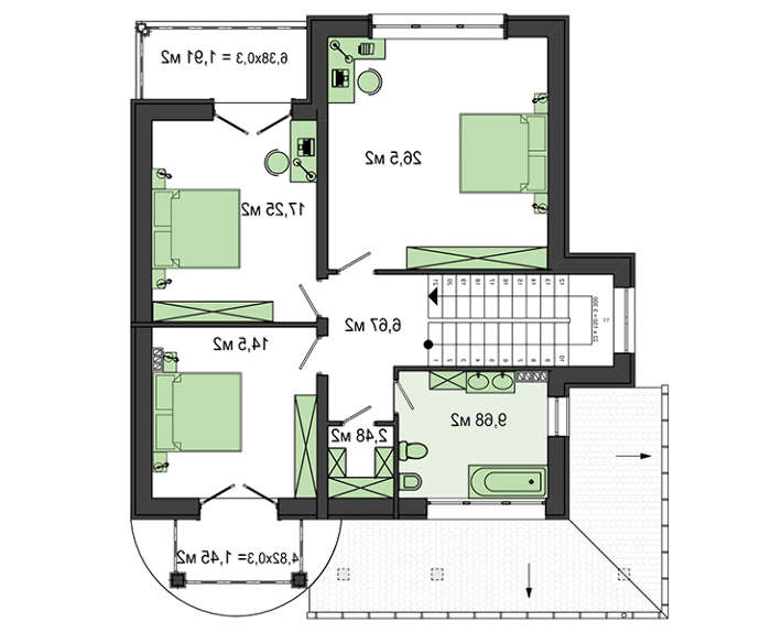
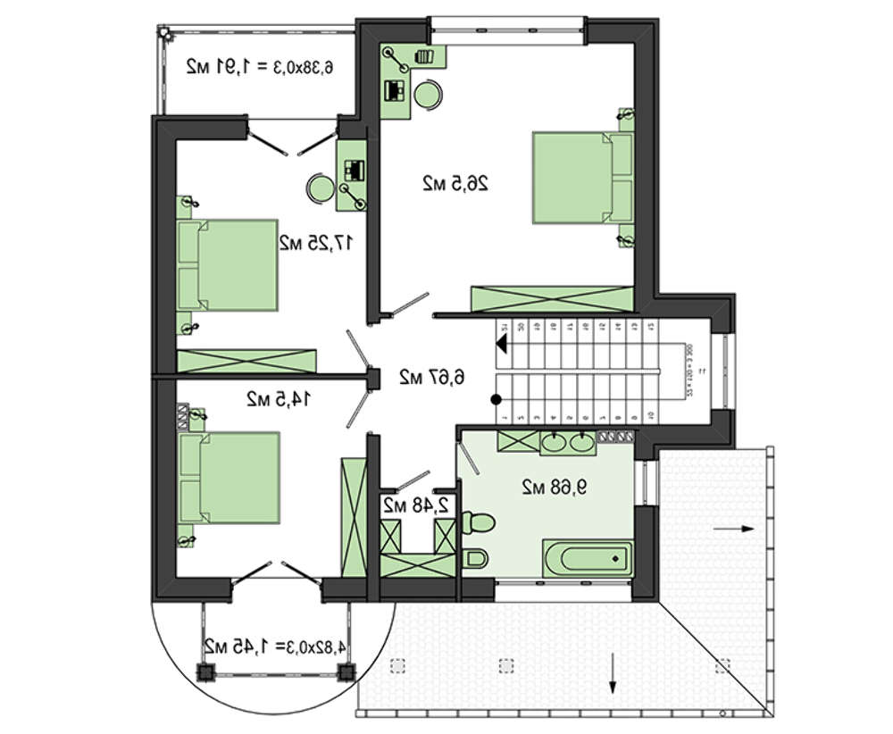
| Количество этажей: | 2 |
| Общая площадь: | 174.00 м2 |
| Жилая площадь: | 105.00 м2 |
| Высота дома: | 10.00 м |
| Высота потолка: | 2.80 м |
| Угол наклона кровли: | 30 ° |
| Площадь крыши: | 177.00 м2 |
| Количество спален: | 4 |
| Количество санузлов: | 3 |
| Минимальный размер участка(длина): | 17.00 м |
| Минимальный размер участка(ширина): | 19.00 м |
| Площадь застройки: | 143 м2 |
Материалы: | |
| Стены: | газобетон |
| Перекрытие: | плиты перекрытия |
| Кровля: | битумная черепица |
| Фундамент: | монолитная лента |
| Артикул | 4M821 |
| Количество этажей: | 2 |
| Общая площадь: | 174.00 м2 |
| Жилая площадь: | 105.00 м2 |
| Высота дома: | 10.00 м |
| Высота потолка: | 2.80 м |
| Угол наклона кровли: | 30 ° |
| Площадь крыши: | 177.00 м2 |
| Количество спален: | 4 |
| Количество санузлов: | 3 |
| Минимальный размер участка(длина): | 17.00 м |
| Минимальный размер участка(ширина): | 19.00 м |
| Площадь застройки: | 143 м2 |
Материалы: | |
| Стены: | газобетон |
| Перекрытие: | плиты перекрытия |
| Кровля: | битумная черепица |
| Фундамент: | монолитная лента |
Приобретая проект дома в компании Dom4M, Вы получаете комплект чертежей - 2 экземпляра, необходимый для проведения строительных работ и беспрепятственного получения разрешения на строительство.
Проект содержит три раздела – Архитектурный, Конструктивный и Инженерный (Водоснабжение, Отопление, Вентиляция, Канализация, Электроснабжение) + Пояснительная записка
1. Архитектурный раздел:
2. Конструктивный раздел:
3. Инженерный раздел:
Водоснабжение и канализация
Отопление, вентиляция
Электротехнические решения:
Проект является типовым и не учитывает конкретных условий строительства
Срок изготовления проекта дома составляет от 3 до 30 рабочих дней.
Объем проектной документации – от 50 до 100 страниц А4 и А3, в зависимости от сложности проекта
Наша команда Архитекторов, Конструкторов и Инженеров – всегда готовы воплотить Вашу мечту в реальность!
Мы можем вносить любые изменения в проект по Вашему пожеланию и адаптировать его с учетом конкретных геолого-топографических и климатических условий, за дополнительную плату.
Всегда рады Вам помочь!

Волк достал спиннинг, уселся на берег, раскурил трубку и проговорил:
- Ловись, рыба, стройся, дом…
И услышал голос, вещающий из ниоткуда:
- А ты уже решил, какой дом хочешь?
- Ой, да я здесь не один!
- Конечно, не один: на рыбацко-охотничьих угодьях никто не один в разгар сезона.
- А ты кто?
- Я – архитектор!
- Удостоверение покажи!
- Не покажу. Я тебе проект твоего дома лучше покажу. Вот, смотри, - и человек в шляпе протянул Волку рисунок.
Волк от неожиданности выронил спиннинг и закричал:
- Это оно! Слышишь, архитектор, это оно! Красота двухэтажная! Классика! Спальня с эркером! Я уже вижу себя в этом доме!
- Так что, удостоверение показывать - уточнил архитектор.
- Ты мне лучше весь проект дорисуй, - вежливо попросил Волк и уступил место на сиже.
Архитектор быстро закончил дело, отдал Волку бумаги, а довольный Серый на всех парах помчался через луг на поиски строительной компании…
Волк достал спиннинг, уселся на берег, раскурил трубку и проговорил:
- Ловись, рыба, стройся, дом…
И услышал голос, вещающий из ниоткуда:
- А ты уже решил, какой дом хочешь?
- Ой, да я здесь не один!
- Конечно, не один: на рыбацко-охотничьих угодьях никто не один в разгар сезона.
- А ты кто?
- Я – архитектор!
- Удостоверение покажи!
- Не покажу. Я тебе проект твоего дома лучше покажу. Вот, смотри, - и человек в шляпе протянул Волку рисунок.
Волк от неожиданности выронил спиннинг и закричал:
- Это оно! Слышишь, архитектор, это оно! Красота двухэтажная! Классика! Спальня с эркером! Я уже вижу себя в этом доме!
- Так что, удостоверение показывать - уточнил архитектор.
- Ты мне лучше весь проект дорисуй, - вежливо попросил Волк и уступил место на сиже.
Архитектор быстро закончил дело, отдал Волку бумаги, а довольный Серый на всех парах помчался через луг на поиски строительной компании…