С правилами ознакомлен(а) Авторизация
Авторизация нужна для сохраниения Вашего "Избранного".
Войти через:

 

 

 

 

 

 

 

Уважаемые клиенты, компания DOM4M продолжает работу и выполняет свои обязательства в установленные сроки. Берегите себя и своих близких!

  • Первый этаж:
    Первый этаж::
    Первый этаж::
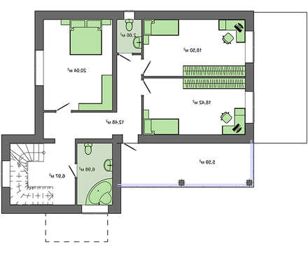
    Второй этаж:
    Второй этаж::
    Второй этаж::
    Цокольный этаж:
    Цокольный этаж::
    Цокольный этаж::
  • 4M2328 Проект стильного просторного 3-х этажного коттеджа с гаражом

    Артикул4M2328
    Количество этажей:3
    Общая площадь:311.12 м2
    Жилая площадь:107.30 м2
    Высота дома:7.50 м
    Высота потолка:2.80 м
    Угол наклона кровли:15 °
    Площадь крыши:320.00 м2
    Количество спален:4
    Количество санузлов:5
    Гараж:Гараж на два авто
    Минимальный размер участка(длина):19.50 м
    Минимальный размер участка(ширина):22.00 м
    Материалы:
    Стены:газобетон, керамические блоки
    Перекрытие:монолитное перекрытие
    Кровля:металлочерепица, керамическая черепица, битумная
    Фундамент:монолитная лента
    Дополнительные сведения:

    Проект студии современной архитектуры А.Черноокой.

Планы этажей
  • Первый этаж:
    Первый этаж:
    Первый этаж:
    Второй этаж:
    Второй этаж:
    Второй этаж:
    Цокольный этаж:
    Цокольный этаж:
    Цокольный этаж:
Фасады и расположение на участке
Состав проекта

Покупая проект дома в компании Dom4M, Вы получаете комплект чертежей, необходимый для проведения строительных работ и беспрепятственного получения разрешения на строительство.

Состав проекта «Эскизное решение»

  •  Ведомость чертежей
  •  Пояснительная записка
  •  Генеральный план
  •  Планы этажей  (с расстановкой мебели,сан/тех приборов,окон,дверей,вентканалов,лестниц)
  •  План кровли
  •  Фасады
  •  Разрезы

Состав проекта «Cтроительное решение» 

  •  Ведомость чертежей
  •  Пояснительная записка
  •  Генеральный план
  •  Раздел КЖ-конструкции железобетонные (планы фундаментов, разрезы, узлы, спецификации)
  •  Планы этажей с расстановкой мебели
  •  Раздел КД –конструкции деревянные (планы перекрытий, разрезы, узлы, спецификации)
  •  План кровли
  •  Раздел КД- конструкции деревянные (планы стропильной системы, разрезы, узлы, спецификации)
  •  Развертки по осям (в деревянных домах)
  •  Разрезы
  •  Спецификации по всем материалам
  •  Узлы

Состав проекта АС может быть отличаться, в зависимости от конструкций и материалов дома.

Состав проекта «Инженерные сети» (приобретается по желанию):

  • Раздел "Электрика"
  • Раздел "Водоснабжение и канализация"
  • Раздел "Отопление и вентиляция"

Срок изготовления проекта дома составляет от 7 до 35 рабочих дней.

Объем проектной документации – от  50 до 90 страниц А4 и А3, в зависимости от сложности проекта

  • Проекты являются типовыми и не учитывают конкретных условий строительства.

Наша команда Архитекторов, Конструкторов и Инженеров – всегда готовы воплотить Вашу мечту в реальность!

Мы можем вносить любые изменения в проект по Вашему пожеланию и адаптировать его с учетом конкретных геолого-топографических и климатических условий, за дополнительную плату.

Получить профессиональную консультацию у наших специалистов, Вы можете любым способом связи: закажите обратный звонок, по skype, e-mail, телефон - наши контакты.

Всегда рады Вам помочь!

Прочитать полный текст
Акции

          

       Вы купили проект, и были бы не против вернуть часть денег затраченных на покупку? Или, может быть, таким образом, дать возможность подзаработать своим детям, племянникам, крестникам? :) Начните вести в комментариях к проекту свой блог "ДНЕВНИК СТРОЙКИ" описывайте и размещайте фотографии от первого дня строительства и до заселения! Рассказывайте обо всём, что может быть интересно другим посетителям нашего сайта! Мы гарантируем, что автор КАЖДОГО полного блога получит 10% от суммы, затраченной на приобретёние проекта.

 

        Если Вы строитесь по нашему проекту и Вам интересна эта акция - свяжитесь с нами, чтобы узнать подробнее! С желающими мы готовы заключить юридический договор о возврате средств!

        Вкладка "комментарии" в каждом проекте и в каждом разделе: пишите Ваши мнения и оценки, размещайте фото и описания стройки!

 

Дополнительные пакеты

Проект стильного просторного 3-х этажного коттеджа с гаражом 4M2328

«Дорогая Виолетта!

Ты прекрасно поешь, у тебя есть популярность, море поклонников и океан цветов. Но разве это делает тебя абсолютно счастливой? Уверен, что нет. я же хочу дать тебе больше: то, что нужно настоящей женщине. Дом.

Да, тебе не показалось: я хочу разделить с тобой мой новый дом. Он большой, но я теряюсь в нем без тебя. Знаешь, я так хочу, чтобы немыслимые охапки букетов ты приносила сюда, и расставляла их по двум этажам, не считая цокольного.

Тебе понравится здесь: утро ты сможешь начать с заплыва в бассейне. Помнишь, ты мне рассказывала, как в детстве мечтала стать Русалочкой? Мечта сбылась, вуаля! А в гараже есть место для твоего авто. В гостиной мы поставим рояль, и ты будешь играть на нем каждый вечер. Для меня нет ничего лучше, кроме как слушать твои ноты.

И еще в доме есть балкон. Мечтаешь о серенадах? Сделаем! Главное, что уже сделано место, под которым их можно петь. Нет, я не кудесник, обычный бизнесмен, но проект дома выбирал с любовью и мыслями о тебе, беспрерывно думая о том, чего же хочет женщина. Таких, как ты – только ты, поэтому дом достоин тебя. Жду ответа. Жюль.»

«Дорогая Виолетта!

Ты прекрасно поешь, у тебя есть популярность, море поклонников и океан цветов. Но разве это делает тебя абсолютно счастливой? Уверен, что нет. я же хочу дать тебе больше: то, что нужно настоящей женщине. Дом.

Да, тебе не показалось: я хочу разделить с тобой мой новый дом. Он большой, но я теряюсь в нем без тебя. Знаешь, я так хочу, чтобы немыслимые охапки букетов ты приносила сюда, и расставляла их по двум этажам, не считая цокольного.

Тебе понравится здесь: утро ты сможешь начать с заплыва в бассейне. Помнишь, ты мне рассказывала, как в детстве мечтала стать Русалочкой? Мечта сбылась, вуаля! А в гараже есть место для твоего авто. В гостиной мы поставим рояль, и ты будешь играть на нем каждый вечер. Для меня нет ничего лучше, кроме как слушать твои ноты.

И еще в доме есть балкон. Мечтаешь о серенадах? Сделаем! Главное, что уже сделано место, под которым их можно петь. Нет, я не кудесник, обычный бизнесмен, но проект дома выбирал с любовью и мыслями о тебе, беспрерывно думая о том, чего же хочет женщина. Таких, как ты – только ты, поэтому дом достоин тебя. Жду ответа. Жюль.»

Прочитать полный текст
Комментарии
Чтобы оставить комментарий, Вы должны либо заполнить поля ниже, либо авторизироваться на сайте.
Загрузить фото, до 5 штук
Ваша оценка:
Подобные
ЗАКАЗАТЬ
© 2010-2021 Dom4M. Все права защищены
This site is protected by reCAPTCHA and the Google Privacy Policy and Terms of Service apply