| Артикул | 4M810 |
| Количество этажей: | 2 |
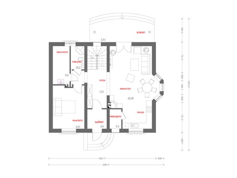
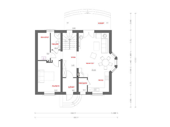
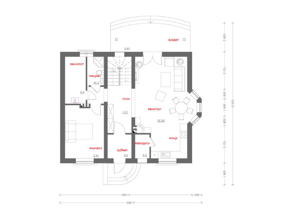
| Общая площадь: | 161.00 м2 |
| Жилая площадь: | 109.00 м2 |
| Высота потолка: | 2.80 м |
| Количество спален: | 4 |
| Количество санузлов: | 2 |
| Минимальный размер участка(длина): | 18.00 м |
| Минимальный размер участка(ширина): | 20.00 м |
Материалы: | |
| Стены: | газобетон, керамические блоки |
| Перекрытие: | монолитное перекрытие |
| Кровля: | керамическая черепица, металлочерепица, цементно-песчаная черепица |
| Фундамент: | монолитная лента |
| Артикул | 4M810 |
| Количество этажей: | 2 |
| Общая площадь: | 161.00 м2 |
| Жилая площадь: | 109.00 м2 |
| Высота потолка: | 2.80 м |
| Количество спален: | 4 |
| Количество санузлов: | 2 |
| Минимальный размер участка(длина): | 18.00 м |
| Минимальный размер участка(ширина): | 20.00 м |
Материалы: | |
| Стены: | газобетон, керамические блоки |
| Перекрытие: | монолитное перекрытие |
| Кровля: | керамическая черепица, металлочерепица, цементно-песчаная черепица |
| Фундамент: | монолитная лента |
Приобретая проект дома в компании Dom4M, Вы получаете комплект чертежей - 2 экземпляра, необходимый для проведения строительных работ и беспрепятственного получения разрешения на строительство.
Проект содержит три раздела – Архитектурный, Конструктивный и Инженерный (Водоснабжение, Отопление, Вентиляция, Канализация, Электроснабжение) + Пояснительная записка
1. Архитектурный раздел:
2. Конструктивный раздел:
3. Инженерный раздел:
Водоснабжение и канализация
Отопление, вентиляция
Электротехнические решения:
Проект является типовым и не учитывает конкретных условий строительства
Срок изготовления проекта дома составляет от 3 до 30 рабочих дней.
Объем проектной документации – от 50 до 100 страниц А4 и А3, в зависимости от сложности проекта
Наша команда Архитекторов, Конструкторов и Инженеров – всегда готовы воплотить Вашу мечту в реальность!
Мы можем вносить любые изменения в проект по Вашему пожеланию и адаптировать его с учетом конкретных геолого-топографических и климатических условий, за дополнительную плату.
Всегда рады Вам помочь!

Малыш распахнул окно, и в комнату с жужжанием влетел Карлсон.
- Карлсон, как я рад, что ты нашел меня!
- Малыш, я едва обнаружил ваш новый дом, - ответил его друг, - теперь мне требуется заправка вареньем! Вон, все топливо израсходовал, а оно у нас нынче дорогое!
- Хорошо, - ответил Малыш, - до кухни долетишь? Заодно и домик тебе покажу.
- Ой, Малыш, сначала – варенье, а домик – потом.
Они вышли из комнаты, Карлсон замер, огляделся и сказал:
- Какая прелесть.
- Карлсон, ты о чем?
- Ну как это о чем? Конечно, о вашем домике! Знаешь, что: давай начнем с экскурсии, а уж после – варенье.
- Но ты же говорил…
- Малыш, ну мало ли что я говорил, когда дом оказался таким интересным? Давай-ка так: кто быстрее пересчитает все комнаты?
Друзья весело помчались по разным комнатам, и жужжание моторчика перебивало топот детских ног. Набегавшись до упаду, друзья уселись на кухне, и Малыш угостил Карлсона долгожданным вареньем, которое исчезало буквально на глазах…
Малыш распахнул окно, и в комнату с жужжанием влетел Карлсон.
- Карлсон, как я рад, что ты нашел меня!
- Малыш, я едва обнаружил ваш новый дом, - ответил его друг, - теперь мне требуется заправка вареньем! Вон, все топливо израсходовал, а оно у нас нынче дорогое!
- Хорошо, - ответил Малыш, - до кухни долетишь? Заодно и домик тебе покажу.
- Ой, Малыш, сначала – варенье, а домик – потом.
Они вышли из комнаты, Карлсон замер, огляделся и сказал:
- Какая прелесть.
- Карлсон, ты о чем?
- Ну как это о чем? Конечно, о вашем домике! Знаешь, что: давай начнем с экскурсии, а уж после – варенье.
- Но ты же говорил…
- Малыш, ну мало ли что я говорил, когда дом оказался таким интересным? Давай-ка так: кто быстрее пересчитает все комнаты?
Друзья весело помчались по разным комнатам, и жужжание моторчика перебивало топот детских ног. Набегавшись до упаду, друзья уселись на кухне, и Малыш угостил Карлсона долгожданным вареньем, которое исчезало буквально на глазах…