С правилами ознакомлен(а) Авторизация
Авторизация нужна для сохраниения Вашего "Избранного".
Войти через:

 

 

 

 

 

 

 

Уважаемые клиенты, компания DOM4M продолжает работу и выполняет свои обязательства в установленные сроки. Берегите себя и своих близких!

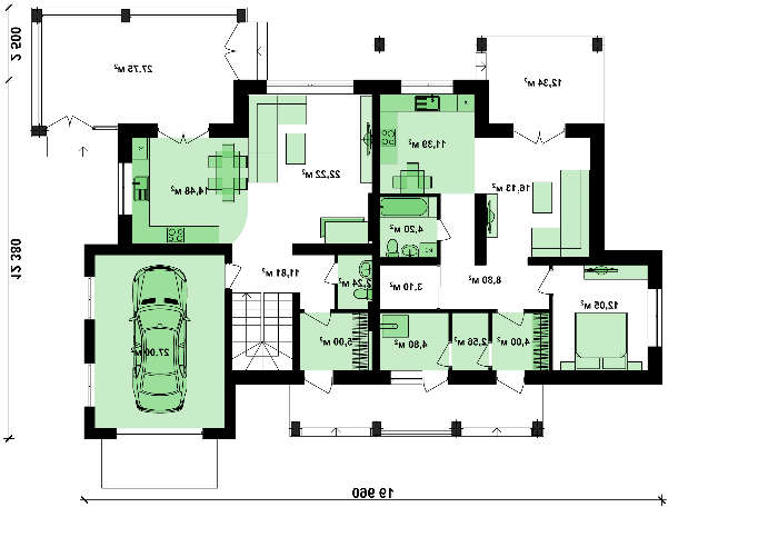
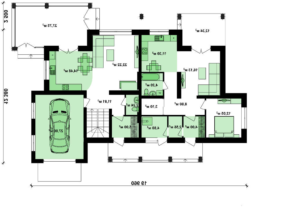
  • Первый этаж:
    Первый этаж::
    Первый этаж::
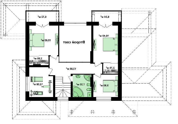
    Второй этаж:
    Второй этаж::
    Второй этаж::
    Расположение на участке:
    Проект удобного коттеджа с гаражом для двух семей
  • 4M733 Проект удобного коттеджа с гаражом для двух семей

    Артикул4M733
    Количество этажей:2
    Общая площадь:246.00 м2
    Жилая площадь:106.00 м2
    Высота дома:8.00 м
    Высота потолка:2.80 м
    Угол наклона кровли:20 °
    Количество спален:4
    Количество санузлов:3
    Гараж:Гараж на одно авто
    Минимальный размер участка(длина):27.96 м
    Минимальный размер участка(ширина):26.38 м
    Материалы:
    Стены:газобетон, керамические блоки
    Перекрытие:монолитное перекрытие
    Кровля:керамическая черепица, металлочерепица, цементно-песчаная черепица
    Фундамент:ленточный монолитно-сборной
Планы этажей
  • Первый этаж:
    Первый этаж:
    Первый этаж:
    Второй этаж:
    Второй этаж:
    Второй этаж:
Фасады и расположение на участке
  • Расположение на участке:
    Проект удобного коттеджа с гаражом для двух семей
Состав проекта

Приобретая проект дома в компании Dom4M, Вы получаете комплект чертежей - 2 экземпляра, необходимый для проведения строительных работ и беспрепятственного получения разрешения на строительство.

Проект содержит три раздела – Архитектурный, Конструктивный и Инженерный (Водоснабжение, Отопление, Вентиляция, Канализация, Электроснабжение) + Пояснительная записка

1. Архитектурный раздел:

  • Общие данные по проекту
  • План координационных осей
  • Поэтажные кладочные планы
  • Поэтажные маркировочные планы с экспликацией помещений
  • План кровли
  • Разрезы и состав конструкций
  • Фасады с ведомостью внешних отделок
  • Элементы проемов – спецификация
  • Ведомость перемычек – сечения и спецификация
  • Экспликация полов
  • Объемы основных строительных материалов
  • Архитектурные узлы в конструкциях

2. Конструктивный раздел:

  • Общие данные по проекту
  • Схемы расположения и расчеты фундаментов
  • Элементы каркаса – схемы расположения
  • Схема расположения перекрытий
  • Опоры перекрытия на стены или Узлы армирования
  • Элементы кровли – схемы расположения
  • Чертежи отдельных элементов, узлы крепления, сечения
  • Ведомости расхода стали и бетона

3.  Инженерный раздел:

              Водоснабжение и канализация

  • Условные обозначения с общими данными
  • Поэтажная система водоснабжения и канализации
  • Аксономитрическая схема водоснабжения и канализации
  • Узлы и спецификация материалов

              Отопление, вентиляция

  • Условные обозначения с общими даннями
  • Система вентиляции
  • Система отопления
  • Аксономитрическая схема системы отопления
  • Тепловая схема
  • Спецификация материалов

             Электротехнические решения:

  • Условные обозначения и общие данные
  • Принципиальная схема ВРУ
  • План сетей освещения, план силовых сетей
  • Схема системы уравнения потенциалов
  • Схема повторного контура заземления
  • Спецификация материалов

Проект является типовым и не учитывает конкретных условий строительства

Срок изготовления проекта дома составляет от 3 до 30 рабочих дней.

Объем проектной документации – от  50 до 100 страниц А4 и А3, в зависимости от сложности проекта

 

Наша команда Архитекторов, Конструкторов и Инженеров – всегда готовы воплотить Вашу мечту в реальность!

Мы можем вносить любые изменения в проект по Вашему пожеланию и адаптировать его с учетом конкретных геолого-топографических и климатических условий, за дополнительную плату.

  • Получить профессиональную консультацию у наших специалистов, Вы можете любым способом связи: закажите обратный звонок, по skype, e-mail, телефон - наши контакты.

Всегда рады Вам помочь!

Прочитать полный текст
Акции

          

       Вы купили проект, и были бы не против вернуть часть денег затраченных на покупку? Или, может быть, таким образом, дать возможность подзаработать своим детям, племянникам, крестникам? :) Начните вести в комментариях к проекту свой блог "ДНЕВНИК СТРОЙКИ" описывайте и размещайте фотографии от первого дня строительства и до заселения! Рассказывайте обо всём, что может быть интересно другим посетителям нашего сайта! Мы гарантируем, что автор КАЖДОГО полного блога получит 10% от суммы, затраченной на приобретёние проекта.

 

        Если Вы строитесь по нашему проекту и Вам интересна эта акция - свяжитесь с нами, чтобы узнать подробнее! С желающими мы готовы заключить юридический договор о возврате средств!

        Вкладка "комментарии" в каждом проекте и в каждом разделе: пишите Ваши мнения и оценки, размещайте фото и описания стройки!

 

Дополнительные пакеты

Проект удобного коттеджа с гаражом для двух семей 4M733

Человек Третьего Тысячелетия вел урок транспарентной истории.

- Итак, - сказал учитель, - ваше домашнее заданием будет творческим: вы отправитесь в прошлое. В ту его точку, которая привлечет ваш интерес больше всего. Напомню, что в прошлое вы можете отправиться через точку Сейчас. Для этого вам придется покинуть ее, и тогда вы окажетесь в прошлом, на целое тысячелетие назад. И еще: не пугайтесь, увидев мир трехмерным. Раньше люди не видели всех параллелей, и вы, увидите мир глазами тех людей, которые в нем находились в текущую эпоху.

- Теория трехмерного пространства существовала до наступления Всемирного Равновесия? - спросил ученик.

- Да, Малком. Итак, я желаю вам успешно справиться с заданием. Вернуться в настоящее вы сможете тем же путем. Удачи!

Малком мысленно свернул багаж знаний в своем воображении и отправился к реке. Ему там думалось лучше всего, и самые блестящие идеи находили его именно там. Мальчик вдохновился домашним заданием, и хотел, чтобы это путешествие в прошлое оказалось самым интересным. Он закрыл глаза, и вышел из точки Сейчас. Его мысли воронкой пронеслись через Невесомость. Летя сквозь воронку пространства, Малком потерял себя: так было легче и быстрее переместиться в любую точку линейной измерительной системы времени, в котором жили Люди Второго Тысячелетия.

Полет окончился, Малком обрел себя на поляне. Его окружили множество звуков и запахов, хотя они почему-то казались привычными. Мальчик увидел перед собой загородный коттедж. Он понял, что было привычным и близким даже в измерении прошлого: обилие свежего воздуха и растений вокруг. Малком знал, что его не видно Людям Второго Тысячелетия, поэтому смело направился к дому.

Его охватили гамма-волны радости. Малком присмотрелся и понял, от кого они исходят: в гостиной на ковре играл ребенок, а его семья, состоящая из мамы с папой и старшего поколения – бабушки с дедушкой, с любовью смотрела на мальчика. По сенсорному ответу Малком понял, что эти люди объединились под одной крышей потому, что хотят быть родовым древом не только на фотографиях, но и в жизни. Их дом был так удивителен, что Малком не сдержал улыбки.

- Как красиво, - подумал он, зарисовав в памяти дом.

Линейное время трехмерного пространства бежало слишком быстро, поэтому Малком разъякорил точку Сейчас, вынырнув из нее в Третье Тысячелетие. Его отбросило далеко вперед, и он очнулся на берегу реки, и убедился в том, что находится в сейчас.

- Так, я успешно вернулся.

Его окружило многомерное пространство и множество новых мыслей, одновременно с вопросами. На следующий день учитель транспарентной истории спросил:

- Итак, кто желает поделиться выполненным домашним заданием?

Малком с готовностью поднял руку.

- Сэр, - сказал он, - я видел красивый двухэтажный дом, где жили две семьи и в которой подрастал их любимый ребенок и внук. Но как же Люди Второго Тысячелетия возводили такую красоту физическими методами?

- О, Малком, сперва эта красота рождалась в их умах, и в твоем случае она началась с проекта коттеджа. В то время как раз начиналась эпоха Всемирного Равновесия: люди вдохновлялись, мечтали, творили в своих безграничных мыслях. Они только видели мир трехмерным, но с помощью фантазии они проникали в миры гораздо шире, чем визуальная картинка. А затем они ее материализовали в традициях Второго Тысячелетия, - ответил историк.

- То есть вы хотите сказать, что уже во Втором Тысячелетии Люди стремились к равновесию, переселяясь в собственные дома на природе?

- Именно! Были те, кто хотел сохранить семейный очаг, приумножить радость и любовь. Они выбрали тот проект коттеджа, который отражал их самих: открытость, изобилие пространства и взаимное доверие. Люди строили дом и отношения по принципу долгосрочности, и это стало мостиком к переходу на наш уровень жизни. Люди осмысляли свои цели, формировали приоритеты. А красота природы очаровывала людей всю их историю. Малком, они окружили себя неповторимой красотой, просто поселившись рядом с ней. Да, некоторые пытались фотографировать красоту, а некоторые предпочли просто слиться с ней, наблюдая в окно родного дома, - пояснил учитель.

- Я увидел играющего мальчика, и понял, что он вырастет, и этот дом станет для него настолько близким, что он будет его навещать постоянно, и родители не ощутят, что их птенец вырос и улетел из семейного гнезда.

- Малком, ты рискуешь: заглядывать в будущее Людей Второго Тысячелетия, находясь там, запрещено. Я не скажу тебе, прав ли ты. Достаточно той радости, которая исходила от семьи, и красоты, которую подарил тебе вид дома.

- Сэр, но архитекторы во время рисования проекта коттеджа с гаражом тоже пользовались физической материей?

- По факту – да, но в тот момент их не было на бумаге: они видели себя внутри того дома, который создавали для людей. В их мыслях все время была готовая картинка, а рука с карандашом постепенно визуализировала ее для других. Малком, не суди технологии Второго Тысячелетия, ведь результат все равно вызывает восторг даже сейчас.

- У Людей еще тогда были таланты создавать? - не унимался Малком.

- Ну что значит «были»? Люди всех эпох талантливы, с самых начал человечества. А у жильцов дома оказался талант наслаждаться созданным не ими, но для них.

Урок подошел к концу, и Малком задумчиво побрел домой.

- Вечные ценности, - подумал он, - они были актуальны для Человечества в любую эпоху: семья, дом, очаг, доверие, любовь… Наверное, нам расскажут об этом на уроке Эстетики Чувств, но тогдашние архитекторы были знатные фантазеры, раз создавали вещи, которые актуальны до сих пор. Да, технологии поменялись, пространство расширилось, но красота осталась красотой, а ценности не устарели.

Человек Третьего Тысячелетия вел урок транспарентной истории.

- Итак, - сказал учитель, - ваше домашнее заданием будет творческим: вы отправитесь в прошлое. В ту его точку, которая привлечет ваш интерес больше всего. Напомню, что в прошлое вы можете отправиться через точку Сейчас. Для этого вам придется покинуть ее, и тогда вы окажетесь в прошлом, на целое тысячелетие назад. И еще: не пугайтесь, увидев мир трехмерным. Раньше люди не видели всех параллелей, и вы, увидите мир глазами тех людей, которые в нем находились в текущую эпоху.

- Теория трехмерного пространства существовала до наступления Всемирного Равновесия? - спросил ученик.

- Да, Малком. Итак, я желаю вам успешно справиться с заданием. Вернуться в настоящее вы сможете тем же путем. Удачи!

Малком мысленно свернул багаж знаний в своем воображении и отправился к реке. Ему там думалось лучше всего, и самые блестящие идеи находили его именно там. Мальчик вдохновился домашним заданием, и хотел, чтобы это путешествие в прошлое оказалось самым интересным. Он закрыл глаза, и вышел из точки Сейчас. Его мысли воронкой пронеслись через Невесомость. Летя сквозь воронку пространства, Малком потерял себя: так было легче и быстрее переместиться в любую точку линейной измерительной системы времени, в котором жили Люди Второго Тысячелетия.

Полет окончился, Малком обрел себя на поляне. Его окружили множество звуков и запахов, хотя они почему-то казались привычными. Мальчик увидел перед собой загородный коттедж. Он понял, что было привычным и близким даже в измерении прошлого: обилие свежего воздуха и растений вокруг. Малком знал, что его не видно Людям Второго Тысячелетия, поэтому смело направился к дому.

Его охватили гамма-волны радости. Малком присмотрелся и понял, от кого они исходят: в гостиной на ковре играл ребенок, а его семья, состоящая из мамы с папой и старшего поколения – бабушки с дедушкой, с любовью смотрела на мальчика. По сенсорному ответу Малком понял, что эти люди объединились под одной крышей потому, что хотят быть родовым древом не только на фотографиях, но и в жизни. Их дом был так удивителен, что Малком не сдержал улыбки.

- Как красиво, - подумал он, зарисовав в памяти дом.

Линейное время трехмерного пространства бежало слишком быстро, поэтому Малком разъякорил точку Сейчас, вынырнув из нее в Третье Тысячелетие. Его отбросило далеко вперед, и он очнулся на берегу реки, и убедился в том, что находится в сейчас.

- Так, я успешно вернулся.

Его окружило многомерное пространство и множество новых мыслей, одновременно с вопросами. На следующий день учитель транспарентной истории спросил:

- Итак, кто желает поделиться выполненным домашним заданием?

Малком с готовностью поднял руку.

- Сэр, - сказал он, - я видел красивый двухэтажный дом, где жили две семьи и в которой подрастал их любимый ребенок и внук. Но как же Люди Второго Тысячелетия возводили такую красоту физическими методами?

- О, Малком, сперва эта красота рождалась в их умах, и в твоем случае она началась с проекта коттеджа. В то время как раз начиналась эпоха Всемирного Равновесия: люди вдохновлялись, мечтали, творили в своих безграничных мыслях. Они только видели мир трехмерным, но с помощью фантазии они проникали в миры гораздо шире, чем визуальная картинка. А затем они ее материализовали в традициях Второго Тысячелетия, - ответил историк.

- То есть вы хотите сказать, что уже во Втором Тысячелетии Люди стремились к равновесию, переселяясь в собственные дома на природе?

- Именно! Были те, кто хотел сохранить семейный очаг, приумножить радость и любовь. Они выбрали тот проект коттеджа, который отражал их самих: открытость, изобилие пространства и взаимное доверие. Люди строили дом и отношения по принципу долгосрочности, и это стало мостиком к переходу на наш уровень жизни. Люди осмысляли свои цели, формировали приоритеты. А красота природы очаровывала людей всю их историю. Малком, они окружили себя неповторимой красотой, просто поселившись рядом с ней. Да, некоторые пытались фотографировать красоту, а некоторые предпочли просто слиться с ней, наблюдая в окно родного дома, - пояснил учитель.

- Я увидел играющего мальчика, и понял, что он вырастет, и этот дом станет для него настолько близким, что он будет его навещать постоянно, и родители не ощутят, что их птенец вырос и улетел из семейного гнезда.

- Малком, ты рискуешь: заглядывать в будущее Людей Второго Тысячелетия, находясь там, запрещено. Я не скажу тебе, прав ли ты. Достаточно той радости, которая исходила от семьи, и красоты, которую подарил тебе вид дома.

- Сэр, но архитекторы во время рисования проекта коттеджа с гаражом тоже пользовались физической материей?

- По факту – да, но в тот момент их не было на бумаге: они видели себя внутри того дома, который создавали для людей. В их мыслях все время была готовая картинка, а рука с карандашом постепенно визуализировала ее для других. Малком, не суди технологии Второго Тысячелетия, ведь результат все равно вызывает восторг даже сейчас.

- У Людей еще тогда были таланты создавать? - не унимался Малком.

- Ну что значит «были»? Люди всех эпох талантливы, с самых начал человечества. А у жильцов дома оказался талант наслаждаться созданным не ими, но для них.

Урок подошел к концу, и Малком задумчиво побрел домой.

- Вечные ценности, - подумал он, - они были актуальны для Человечества в любую эпоху: семья, дом, очаг, доверие, любовь… Наверное, нам расскажут об этом на уроке Эстетики Чувств, но тогдашние архитекторы были знатные фантазеры, раз создавали вещи, которые актуальны до сих пор. Да, технологии поменялись, пространство расширилось, но красота осталась красотой, а ценности не устарели.

Прочитать полный текст
Комментарии
Чтобы оставить комментарий, Вы должны либо заполнить поля ниже, либо авторизироваться на сайте.
Загрузить фото, до 5 штук
Ваша оценка:
Подобные
ЗАКАЗАТЬ
© 2010-2021 Dom4M. Все права защищены
This site is protected by reCAPTCHA and the Google Privacy Policy and Terms of Service apply