| Артикул | 4M806 |
| Количество этажей: | 2 |
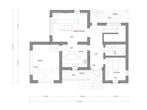
| Общая площадь: | 189.00 м2 |
| Высота потолка: | 2.80 м |
| Количество спален: | 3 |
| Количество санузлов: | 2 |
| Гараж: | Гараж на одно авто |
| Минимальный размер участка(длина): | 18.00 м |
| Минимальный размер участка(ширина): | 21.00 м |
Материалы: | |
| Стены: | газобетон, керамические блоки |
| Перекрытие: | монолитное перекрытие |
| Кровля: | керамическая черепица, металлочерепица, цементно-песчаная черепица |
| Фундамент: | монолитная лента |
| Артикул | 4M806 |
| Количество этажей: | 2 |
| Общая площадь: | 189.00 м2 |
| Высота потолка: | 2.80 м |
| Количество спален: | 3 |
| Количество санузлов: | 2 |
| Гараж: | Гараж на одно авто |
| Минимальный размер участка(длина): | 18.00 м |
| Минимальный размер участка(ширина): | 21.00 м |
Материалы: | |
| Стены: | газобетон, керамические блоки |
| Перекрытие: | монолитное перекрытие |
| Кровля: | керамическая черепица, металлочерепица, цементно-песчаная черепица |
| Фундамент: | монолитная лента |
Приобретая проект дома в компании Dom4M, Вы получаете комплект чертежей - 2 экземпляра, необходимый для проведения строительных работ и беспрепятственного получения разрешения на строительство.
Проект содержит три раздела – Архитектурный, Конструктивный и Инженерный (Водоснабжение, Отопление, Вентиляция, Канализация, Электроснабжение) + Пояснительная записка
1. Архитектурный раздел:
2. Конструктивный раздел:
3. Инженерный раздел:
Водоснабжение и канализация
Отопление, вентиляция
Электротехнические решения:
Проект является типовым и не учитывает конкретных условий строительства
Срок изготовления проекта дома составляет от 3 до 30 рабочих дней.
Объем проектной документации – от 50 до 100 страниц А4 и А3, в зависимости от сложности проекта
Наша команда Архитекторов, Конструкторов и Инженеров – всегда готовы воплотить Вашу мечту в реальность!
Мы можем вносить любые изменения в проект по Вашему пожеланию и адаптировать его с учетом конкретных геолого-топографических и климатических условий, за дополнительную плату.
Всегда рады Вам помочь!

Амели Пулен была девушкой загадочно и необычной. Однажды наступил день, который изменил всю ее жизнь: она переехала в новый дом с фиолетовой черепичной крышей.
Обыденность явно не подходила ей, а поэтому дом она решила построить по собственному проекту.
- Главное, чтобы он мне нравился, - объяснила она строителям.
Подойдя к строительству своего дома с фантазией, она получила тот результат, который обрадовал ее настолько, что ей захотелось творить. Она обожала ваять скульптуры из глины, которые оказывались похожими на нее: необычные и улыбчивые.
Из окон дома виднелась Сена, осенью река покрывалась желтыми листьями, которые роняли деревья на гладь воды. Амели любила стоять у окна и просто смотреть вдаль: в этом занятии она видела что-то сакральное, что было в ней самой: покой, и храбрость, готовая проявить себя. Затем она подбрасывала поленьев в камин и слушала их довольное потрескивание.
- Как хорошо, - думала она, - любимый дом, очаг, и возможность побыть в тишине, когда мир бежит все быстрее, а суеты вокруг становится все больше.
Поленья в камине догорали, и огонь погасал. Очередной плодотворный день заканчивался, и Амели засыпала вместе с домом, гася всюду свет, чтобы завтра начать новый, еще лучший день…
Амели Пулен была девушкой загадочно и необычной. Однажды наступил день, который изменил всю ее жизнь: она переехала в новый дом с фиолетовой черепичной крышей.
Обыденность явно не подходила ей, а поэтому дом она решила построить по собственному проекту.
- Главное, чтобы он мне нравился, - объяснила она строителям.
Подойдя к строительству своего дома с фантазией, она получила тот результат, который обрадовал ее настолько, что ей захотелось творить. Она обожала ваять скульптуры из глины, которые оказывались похожими на нее: необычные и улыбчивые.
Из окон дома виднелась Сена, осенью река покрывалась желтыми листьями, которые роняли деревья на гладь воды. Амели любила стоять у окна и просто смотреть вдаль: в этом занятии она видела что-то сакральное, что было в ней самой: покой, и храбрость, готовая проявить себя. Затем она подбрасывала поленьев в камин и слушала их довольное потрескивание.
- Как хорошо, - думала она, - любимый дом, очаг, и возможность побыть в тишине, когда мир бежит все быстрее, а суеты вокруг становится все больше.
Поленья в камине догорали, и огонь погасал. Очередной плодотворный день заканчивался, и Амели засыпала вместе с домом, гася всюду свет, чтобы завтра начать новый, еще лучший день…