| Артикул | 4M831 |
| Количество этажей: | 2 |
| Общая площадь: | 203.10 м2 |
| Высота потолка: | 2.80 м |
| Количество спален: | 4 |
| Количество санузлов: | 2 |
| Гараж: | Гараж на одно авто |
| Минимальный размер участка(длина): | 21.00 м |
| Минимальный размер участка(ширина): | 16.00 м |
Материалы: | |
| Стены: | газобетон, керамические блоки |
| Перекрытие: | монолитное перекрытие |
| Кровля: | металлочерепица, керамическая черепица, битумная |
| Фундамент: | монолитная лента |
| Артикул | 4M831 |
| Количество этажей: | 2 |
| Общая площадь: | 203.10 м2 |
| Высота потолка: | 2.80 м |
| Количество спален: | 4 |
| Количество санузлов: | 2 |
| Гараж: | Гараж на одно авто |
| Минимальный размер участка(длина): | 21.00 м |
| Минимальный размер участка(ширина): | 16.00 м |
Материалы: | |
| Стены: | газобетон, керамические блоки |
| Перекрытие: | монолитное перекрытие |
| Кровля: | металлочерепица, керамическая черепица, битумная |
| Фундамент: | монолитная лента |
Приобретая проект дома в компании Dom4M, Вы получаете комплект чертежей - 2 экземпляра, необходимый для проведения строительных работ и беспрепятственного получения разрешения на строительство.
Проект содержит три раздела – Архитектурный, Конструктивный и Инженерный (Водоснабжение, Отопление, Вентиляция, Канализация, Электроснабжение) + Пояснительная записка
1. Архитектурный раздел:
2. Конструктивный раздел:
3. Инженерный раздел:
Водоснабжение и канализация
Отопление, вентиляция
Электротехнические решения:
Проект является типовым и не учитывает конкретных условий строительства
Срок изготовления проекта дома составляет от 3 до 30 рабочих дней.
Объем проектной документации – от 50 до 100 страниц А4 и А3, в зависимости от сложности проекта
Наша команда Архитекторов, Конструкторов и Инженеров – всегда готовы воплотить Вашу мечту в реальность!
Мы можем вносить любые изменения в проект по Вашему пожеланию и адаптировать его с учетом конкретных геолого-топографических и климатических условий, за дополнительную плату.
Всегда рады Вам помочь!

Жила-поживала, мир украшала Василиса Премудрая. Девушка любила прогулки на свежем воздухе, так что каждый день много ходила пешком по живописным окрестностям. Как-то вечером, на закате, попался на ее живописном пути красивый двухэтажный особняк. Да такой примечательный он был, что Василиса остановилась рядом и стала его рассматривать.
- Вот бы в дом попасть, - мечтала она. – Хоть одним глазочком глянуть! Ну-ка постучу в дверь, а вдруг мне откроют!
Так она и поступила. Да только никто дверь не отворил, она не заперта оказалась. Василиса осмотрелась, и решила случаем воспользоваться.
- Есть в доме кто-нибудь - позвала она, стоя в холле.
Тишина.
- Что ж, тогда пройдусь, дом посмотрю.
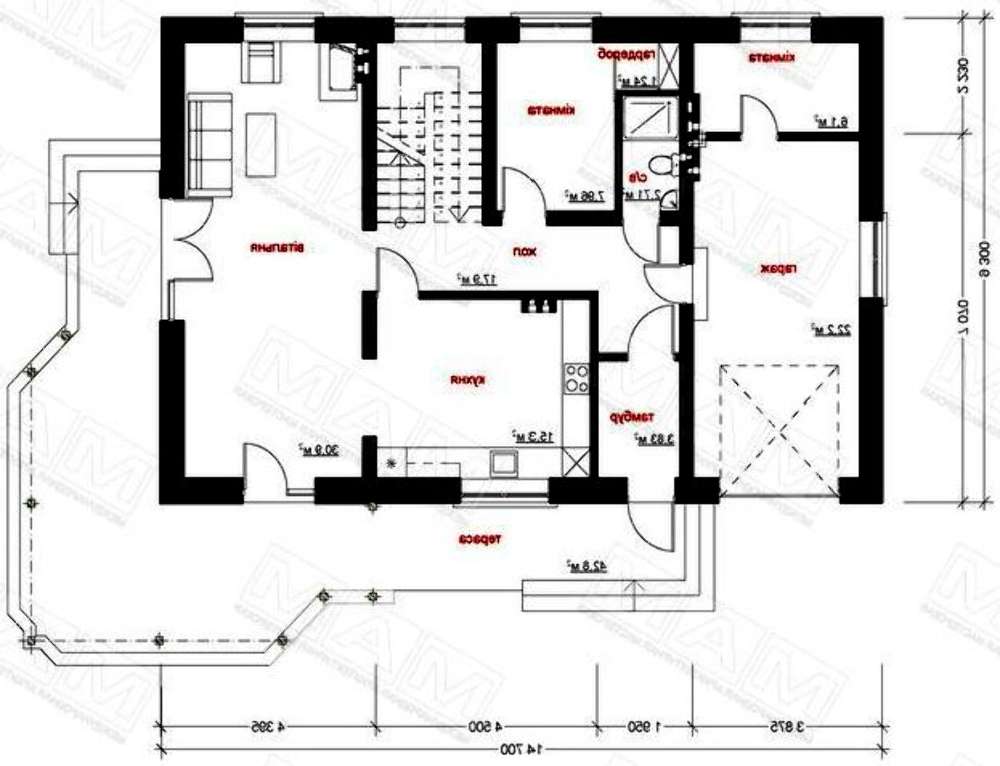
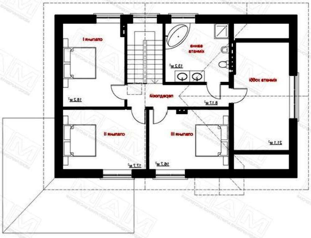
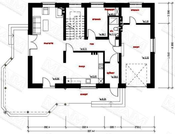
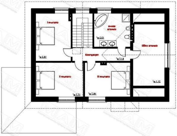
Пошла вправо – увидела гостиную, плавно переходящую в кухню. А слева незаметная дверь соединяла дом со встроенным гаражом. Еще на первом этаже находилась небольшая домашняя библиотека, уставленная редкими книгами. Поднявшись на второй этаж, Василиса увидала три спальни и комнату для гостей.
- Подкидывает же судьба невероятно впечатляющие загадки, - сказала Василиса про дом, который выглядел жилым и уютным, и в котором никого не было. – Приду сюда на рассвете – может, хозяев встречу - и направилась домой…
Жила-поживала, мир украшала Василиса Премудрая. Девушка любила прогулки на свежем воздухе, так что каждый день много ходила пешком по живописным окрестностям. Как-то вечером, на закате, попался на ее живописном пути красивый двухэтажный особняк. Да такой примечательный он был, что Василиса остановилась рядом и стала его рассматривать.
- Вот бы в дом попасть, - мечтала она. – Хоть одним глазочком глянуть! Ну-ка постучу в дверь, а вдруг мне откроют!
Так она и поступила. Да только никто дверь не отворил, она не заперта оказалась. Василиса осмотрелась, и решила случаем воспользоваться.
- Есть в доме кто-нибудь - позвала она, стоя в холле.
Тишина.
- Что ж, тогда пройдусь, дом посмотрю.
Пошла вправо – увидела гостиную, плавно переходящую в кухню. А слева незаметная дверь соединяла дом со встроенным гаражом. Еще на первом этаже находилась небольшая домашняя библиотека, уставленная редкими книгами. Поднявшись на второй этаж, Василиса увидала три спальни и комнату для гостей.
- Подкидывает же судьба невероятно впечатляющие загадки, - сказала Василиса про дом, который выглядел жилым и уютным, и в котором никого не было. – Приду сюда на рассвете – может, хозяев встречу - и направилась домой…