С правилами ознакомлен(а) Авторизация
Авторизация нужна для сохраниения Вашего "Избранного".
Войти через:

 

 

 

 

 

 

 

Уважаемые клиенты, компания DOM4M продолжает работу и выполняет свои обязательства в установленные сроки. Берегите себя и своих близких!

  • Первый этаж:
    Первый этаж::
    Первый этаж::
    Второй этаж:
    Второй этаж::
    Второй этаж::
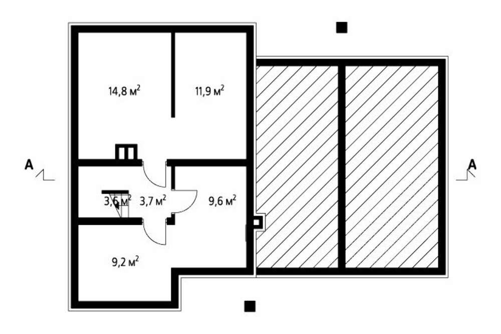
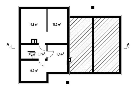
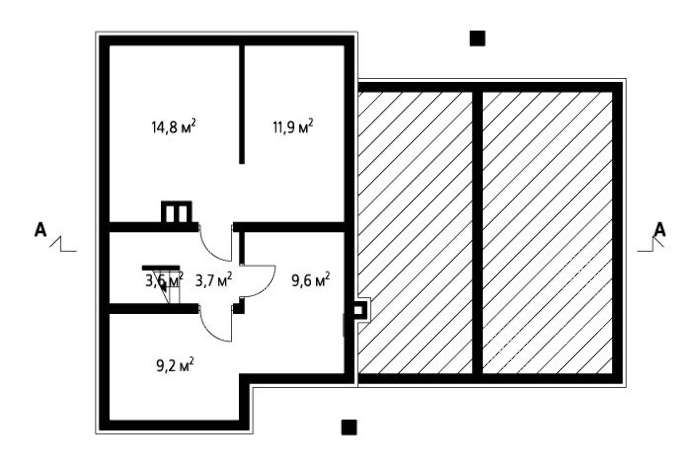
    Цокольный этаж:
    Цокольный этаж::
    Цокольный этаж::
    Расположение на участке:
    3644
  • 4M3588 3644

    Артикул4M3588
    Количество этажей:3
    Общая площадь:237.50 м2
    Жилая площадь:149.90 м2
    Высота дома:8.80 м
    Высота потолка:2.80 м
    Угол наклона кровли:40 °
    Площадь крыши:208.00 м2
    Кубатура:935.00 м3
    Количество спален:4
    Количество санузлов:3
    Гараж:Гараж на одно авто
    Минимальный размер участка(длина):20.70 м
    Минимальный размер участка(ширина):21.70 м
    Площадь застройки:122 м2
    Площадь цокольного этажа:52.80 м2
    Материалы:
    Стены:газобетон, керамические блоки
    Перекрытие:монолитное перекрытие
    Кровля:керамическая черепица, металлочерепица, цементно-песчаная черепица
    Фундамент:монолитная лента
Планы этажей
  • Первый этаж:
    Первый этаж:
    Первый этаж:
    Второй этаж:
    Второй этаж:
    Второй этаж:
    Цокольный этаж:
    Цокольный этаж:
    Цокольный этаж:
Фасады и расположение на участке
  • Расположение на участке:
    3644
Состав проекта

Приобретая проект дома в компании Dom4M, Вы получаете комплект чертежей - 2 экземпляра, необходимый для проведения строительных работ и беспрепятственного получения разрешения на строительство.

Проект содержит три раздела – Архитектурный, Конструктивный и Инженерный (Водоснабжение, Отопление, Вентиляция, Канализация, Электроснабжение)

Общим элементом архитектурной и конструкционной частей является техническое описание, которое информирует о функциональных решениях, касающихся объекта, со спецификацией его площади и кубатуры, а также о предлагаемых конструкционных и отделочных предложениях и рекомендованных строительных материалах.

1. Архитектурный раздел:

  • план первого и остальных этажей – показывает размещение отдельных помещений и их размеры, площадь, размещение стен, размещение дверных и оконных проемов, кухонных и санитарных установок;
  • проекции, разрезы, фасады в масштабе 1:50;
  • спецификации оконных и дверных проемов;
  • план стропильной конструкции крыши - показывает размещение конструкционных элементов кровли и их разрезы, спецификацию элементов стропильной конструкции крыши;
  • спецификация элементов стропильной конструкции крыши;
  • аксонометрия стропильной конструкции крыши- показывает аксонометрию стропильной конструкции крыши и ее элементов (для сложных типов кровли);
  • план кровли - представляет ее форму, размеры, угол уклона скатов, размещение мансардных окон, люкарн, окон верхнего света и спускных труб, показывает размещение дымоходов и информирует о способе отвода воды: о размещении и размерах водосточных труб;
  • разрезы - показывают все элементы здания после разреза вдоль и поперек от конька крыши до фундаментов, т.е. слои пола, перекрытий и кровли;
  • фасады - показывают четкий вид дома с фронтальной стороны, с тыльной стороны и c боковых сторон;
  • спецификация оконных и дверных проемов - спецификация окон и дверей, применяемых в проекте, вместе со способом их открытия;

2. Конструктивный раздел:

  • статический расчет
  • расчет на прочность
  • планы фундаментов и плит перекрытия в масштабе 1:50
  • чертежи конструкционных деталей (разрезы венцов, перемычек)
  • спецификации

3.  Инженерный раздел:

  • чертежи с размещением установок: воды и канализации, центрального отопления, газовой и электрической – в масштабе 1:50 
  • описание применяемых решений.

 

Проект является типовым и не учитывает конкретных условий строительства

Срок изготовления проекта дома составляет от 3 до 30 рабочих дней.

Объем проектной документации – от  50 до 100 страниц А4 и А3, в зависимости от сложности проекта

 

Наша команда Архитекторов, Конструкторов и Инженеров – всегда готовы воплотить Вашу мечту в реальность!

Мы можем вносить любые изменения в проект по Вашему пожеланию и адаптировать его с учетом конкретных геолого-топографических и климатических условий, за дополнительную плату.

  • Получить профессиональную консультацию у наших специалистов, Вы можете любым способом связи: закажите обратный звонок, по skype, e-mail, телефон - наши контакты.

Всегда рады Вам помочь!

Прочитать полный текст
Акции

          

       Вы купили проект, и были бы не против вернуть часть денег затраченных на покупку? Или, может быть, таким образом, дать возможность подзаработать своим детям, племянникам, крестникам? :) Начните вести в комментариях к проекту свой блог "ДНЕВНИК СТРОЙКИ" описывайте и размещайте фотографии от первого дня строительства и до заселения! Рассказывайте обо всём, что может быть интересно другим посетителям нашего сайта! Мы гарантируем, что автор КАЖДОГО полного блога получит 10% от суммы, затраченной на приобретёние проекта.

 

        Если Вы строитесь по нашему проекту и Вам интересна эта акция - свяжитесь с нами, чтобы узнать подробнее! С желающими мы готовы заключить юридический договор о возврате средств!

        Вкладка "комментарии" в каждом проекте и в каждом разделе: пишите Ваши мнения и оценки, размещайте фото и описания стройки!

 

Дополнительные пакеты
Фасады

3644 4M3588

История просмотров
Комментарии
Чтобы оставить комментарий, Вы должны либо заполнить поля ниже, либо авторизироваться на сайте.
Загрузить фото, до 5 штук
Ваша оценка:
Подобные
ЗАКАЗАТЬ
© 2010-2021 Dom4M. Все права защищены
This site is protected by reCAPTCHA and the Google Privacy Policy and Terms of Service apply