| Артикул | 4M2310a |
| Количество этажей: | 1 |
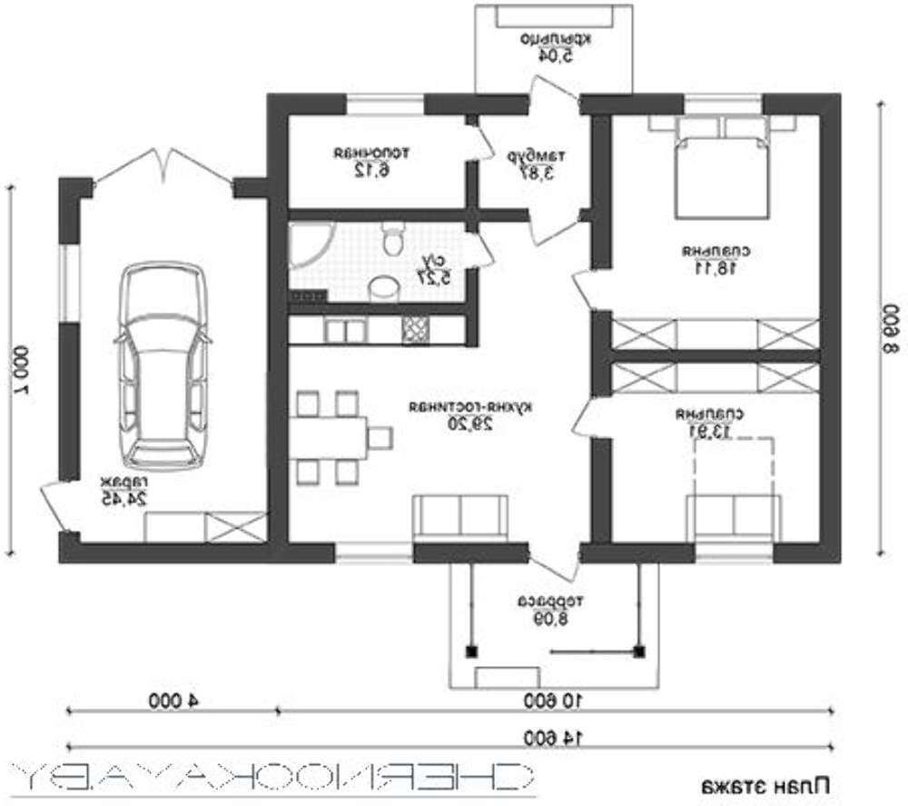
| Общая площадь: | 105.00 м2 |
| Жилая площадь: | 61.00 м2 |
| Высота дома: | 4.00 м |
| Высота потолка: | 2.70 м |
| Угол наклона кровли: | 25 ° |
| Площадь крыши: | 120.00 м2 |
| Количество спален: | 2 |
| Количество санузлов: | 1 |
| Гараж: | Гараж на одно авто |
| Минимальный размер участка(длина): | 19.00 м |
| Минимальный размер участка(ширина): | 21.00 м |
| Площадь застройки: | 150 м2 |
Материалы: | |
| Перекрытие: | по деревянным балкам |
| Фундамент: | ленточный монолитно-сборной |
| Артикул | 4M2310a |
| Количество этажей: | 1 |
| Общая площадь: | 105.00 м2 |
| Жилая площадь: | 61.00 м2 |
| Высота дома: | 4.00 м |
| Высота потолка: | 2.70 м |
| Угол наклона кровли: | 25 ° |
| Площадь крыши: | 120.00 м2 |
| Количество спален: | 2 |
| Количество санузлов: | 1 |
| Гараж: | Гараж на одно авто |
| Минимальный размер участка(длина): | 19.00 м |
| Минимальный размер участка(ширина): | 21.00 м |
| Площадь застройки: | 150 м2 |
Материалы: | |
| Перекрытие: | по деревянным балкам |
| Фундамент: | ленточный монолитно-сборной |
Покупая проект дома в компании Dom4M, Вы получаете комплект чертежей, необходимый для проведения строительных работ и беспрепятственного получения разрешения на строительство.
Состав проекта АС может быть отличаться, в зависимости от конструкций и материалов дома.
Срок изготовления проекта дома составляет от 7 до 35 рабочих дней.
Объем проектной документации – от 50 до 90 страниц А4 и А3, в зависимости от сложности проекта
Наша команда Архитекторов, Конструкторов и Инженеров – всегда готовы воплотить Вашу мечту в реальность!
Мы можем вносить любые изменения в проект по Вашему пожеланию и адаптировать его с учетом конкретных геолого-топографических и климатических условий, за дополнительную плату.
Получить профессиональную консультацию у наших специалистов, Вы можете любым способом связи: закажите обратный звонок, по skype, e-mail, телефон - наши контакты.
Всегда рады Вам помочь!
