С правилами ознакомлен(а) Авторизация
Авторизация нужна для сохраниения Вашего "Избранного".
Войти через:

 

 

 

 

 

 

 

Уважаемые клиенты, компания DOM4M продолжает работу и выполняет свои обязательства в установленные сроки. Берегите себя и своих близких!

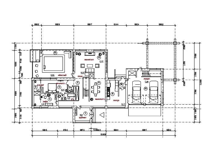
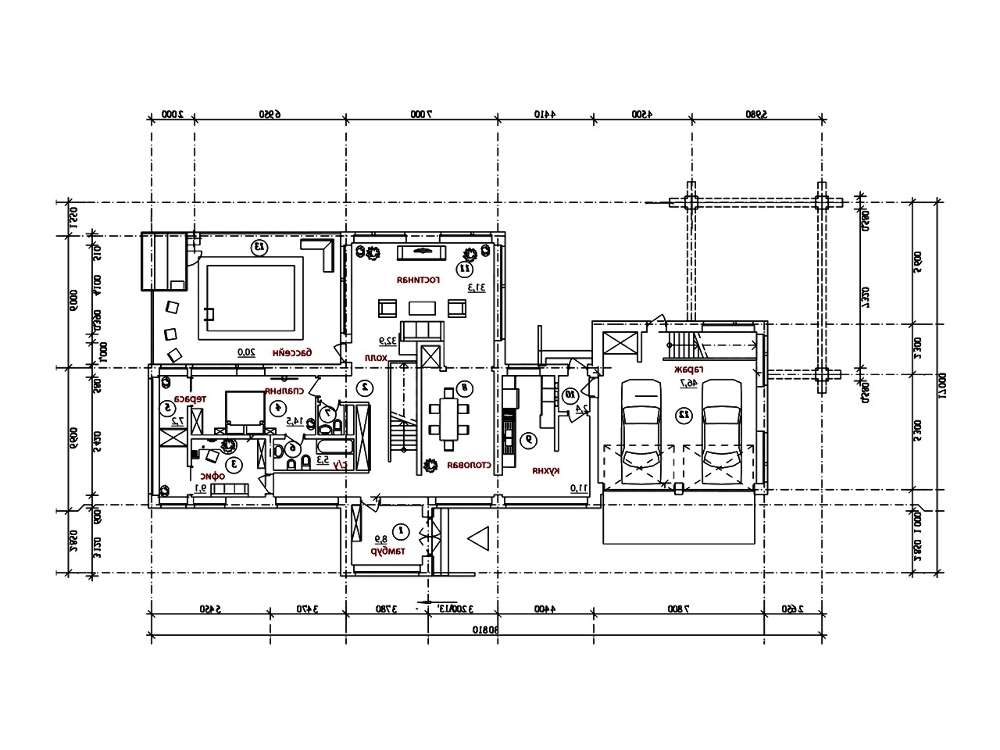
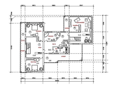
  • Первый этаж:
    Первый этаж::
    Первый этаж::
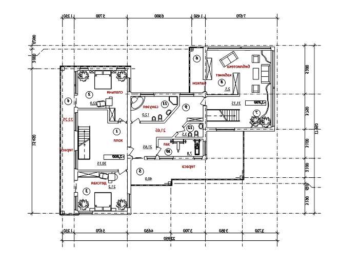
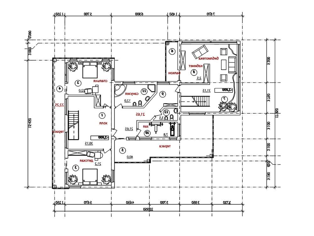
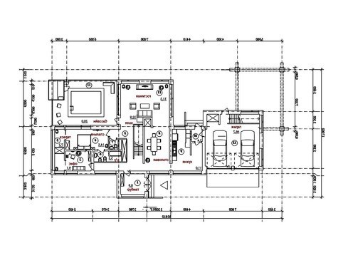
    Второй этаж:
    Второй этаж::
    Второй этаж::
  • 4M802 Интересный проект современной виллы со встроенным бассейном

    Артикул4M802
    Количество этажей:2
    Общая площадь:293.00 м2
    Количество спален:6
    Количество санузлов:3
    Гараж:Гараж на два авто
    Минимальный размер участка(длина):23.00 м
    Минимальный размер участка(ширина):36.00 м
    Материалы:
    Стены:Газобетонные блоки, кирпич
    Перекрытие:монолитное перекрытие
    Кровля:битумная черепица
    Фундамент:монолитная лента
Планы этажей
  • Первый этаж:
    Первый этаж:
    Первый этаж:
    Второй этаж:
    Второй этаж:
    Второй этаж:
Фасады и расположение на участке
Состав проекта

Приобретая проект дома в компании Dom4M, Вы получаете комплект чертежей - 2 экземпляра, необходимый для проведения строительных работ и беспрепятственного получения разрешения на строительство.

Проект содержит три раздела – Архитектурный, Конструктивный и Инженерный (Водоснабжение, Отопление, Вентиляция, Канализация, Электроснабжение) + Пояснительная записка

1. Архитектурный раздел:

  • Общие данные по проекту
  • План координационных осей
  • Поэтажные кладочные планы
  • Поэтажные маркировочные планы с экспликацией помещений
  • План кровли
  • Разрезы и состав конструкций
  • Фасады с ведомостью внешних отделок
  • Элементы проемов – спецификация
  • Ведомость перемычек – сечения и спецификация
  • Экспликация полов
  • Объемы основных строительных материалов
  • Архитектурные узлы в конструкциях

2. Конструктивный раздел:

  • Общие данные по проекту
  • Схемы расположения и расчеты фундаментов
  • Элементы каркаса – схемы расположения
  • Схема расположения перекрытий
  • Опоры перекрытия на стены или Узлы армирования
  • Элементы кровли – схемы расположения
  • Чертежи отдельных элементов, узлы крепления, сечения
  • Ведомости расхода стали и бетона

3.  Инженерный раздел:

              Водоснабжение и канализация

  • Условные обозначения с общими данными
  • Поэтажная система водоснабжения и канализации
  • Аксономитрическая схема водоснабжения и канализации
  • Узлы и спецификация материалов

              Отопление, вентиляция

  • Условные обозначения с общими даннями
  • Система вентиляции
  • Система отопления
  • Аксономитрическая схема системы отопления
  • Тепловая схема
  • Спецификация материалов

             Электротехнические решения:

  • Условные обозначения и общие данные
  • Принципиальная схема ВРУ
  • План сетей освещения, план силовых сетей
  • Схема системы уравнения потенциалов
  • Схема повторного контура заземления
  • Спецификация материалов

Проект является типовым и не учитывает конкретных условий строительства

Срок изготовления проекта дома составляет от 3 до 30 рабочих дней.

Объем проектной документации – от  50 до 100 страниц А4 и А3, в зависимости от сложности проекта

 

Наша команда Архитекторов, Конструкторов и Инженеров – всегда готовы воплотить Вашу мечту в реальность!

Мы можем вносить любые изменения в проект по Вашему пожеланию и адаптировать его с учетом конкретных геолого-топографических и климатических условий, за дополнительную плату.

  • Получить профессиональную консультацию у наших специалистов, Вы можете любым способом связи: закажите обратный звонок, по skype, e-mail, телефон - наши контакты.

Всегда рады Вам помочь!

Прочитать полный текст
Акции

          

       Вы купили проект, и были бы не против вернуть часть денег затраченных на покупку? Или, может быть, таким образом, дать возможность подзаработать своим детям, племянникам, крестникам? :) Начните вести в комментариях к проекту свой блог "ДНЕВНИК СТРОЙКИ" описывайте и размещайте фотографии от первого дня строительства и до заселения! Рассказывайте обо всём, что может быть интересно другим посетителям нашего сайта! Мы гарантируем, что автор КАЖДОГО полного блога получит 10% от суммы, затраченной на приобретёние проекта.

 

        Если Вы строитесь по нашему проекту и Вам интересна эта акция - свяжитесь с нами, чтобы узнать подробнее! С желающими мы готовы заключить юридический договор о возврате средств!

        Вкладка "комментарии" в каждом проекте и в каждом разделе: пишите Ваши мнения и оценки, размещайте фото и описания стройки!

 

Дополнительные пакеты
Фасады

Интересный проект современной виллы со встроенным бассейном 4M802

Пригород Анкары украшает шикарный и просторный коттедж, который арендовал посол ЕС в Турции на время дипломатической мисси. Как человек важный и устоявшийся, посол обладает набором привычек: например, работать дома по выходным, заниматься плаванием и принимать высоких гостей. Исходя из этого, он выбирал дом для аренды.

Когда ему показали этот особняк, построенный по проекту 4М802, он даже не сомневался, прежде чем кивнуть. В доме находился комфортный домашний кабинет и бассейн, без которого посол не проводит ни дня. Свой день он начинает с короткого заплыва, затем идет в гостиную, где его ждет легкий завтрак. Сквозь большие окна отлично просматривается сад, а солнце, которого на юге так много, заполняет комнату своим теплым светом.

Как представитель дипломатической среды, посол любит принимать гостей. И если утром и днем гостиная заполнена светом, то к вечеру ее заполняют уважаемые гости. Площадь дома такова, что позволяет устраивать достаточно людные приемы: никто не забыт, места в коттедже всем достаточно, чтобы после ужина разбиться на маленькие компании и пообщаться в узком кругу. Когда дипломатическая миссия подошла к концу и чемоданы были собраны, посол вдруг вспомнил, что этот замечательный дом он покинет, но он точно знал, что особняк не станет долго пустовать…

Пригород Анкары украшает шикарный и просторный коттедж, который арендовал посол ЕС в Турции на время дипломатической мисси. Как человек важный и устоявшийся, посол обладает набором привычек: например, работать дома по выходным, заниматься плаванием и принимать высоких гостей. Исходя из этого, он выбирал дом для аренды.

Когда ему показали этот особняк, построенный по проекту 4М802, он даже не сомневался, прежде чем кивнуть. В доме находился комфортный домашний кабинет и бассейн, без которого посол не проводит ни дня. Свой день он начинает с короткого заплыва, затем идет в гостиную, где его ждет легкий завтрак. Сквозь большие окна отлично просматривается сад, а солнце, которого на юге так много, заполняет комнату своим теплым светом.

Как представитель дипломатической среды, посол любит принимать гостей. И если утром и днем гостиная заполнена светом, то к вечеру ее заполняют уважаемые гости. Площадь дома такова, что позволяет устраивать достаточно людные приемы: никто не забыт, места в коттедже всем достаточно, чтобы после ужина разбиться на маленькие компании и пообщаться в узком кругу. Когда дипломатическая миссия подошла к концу и чемоданы были собраны, посол вдруг вспомнил, что этот замечательный дом он покинет, но он точно знал, что особняк не станет долго пустовать…

Прочитать полный текст
История просмотров
Комментарии
Чтобы оставить комментарий, Вы должны либо заполнить поля ниже, либо авторизироваться на сайте.
Загрузить фото, до 5 штук
Ваша оценка:
Подобные
ЗАКАЗАТЬ
© 2010-2021 Dom4M. Все права защищены
This site is protected by reCAPTCHA and the Google Privacy Policy and Terms of Service apply