| Артикул | 4M1608 |
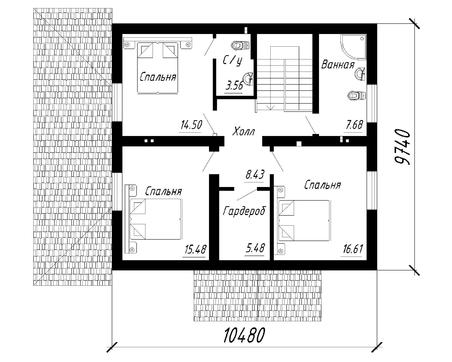
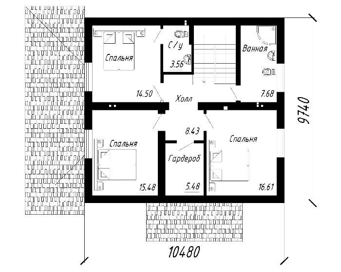
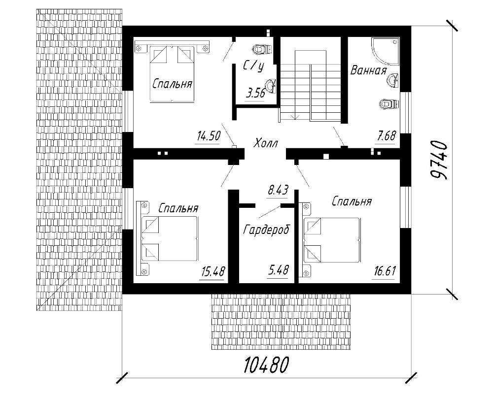
| Количество этажей: | 2 |
| Общая площадь: | 154.00 м2 |
| Высота потолка: | 2.80 м |
| Количество спален: | 3 |
| Количество санузлов: | 3 |
| Минимальный размер участка(длина): | 19.50 м |
| Минимальный размер участка(ширина): | 21.00 м |
Материалы: | |
| Стены: | газобетон, керамические блоки |
| Перекрытие: | монолитное перекрытие |
| Кровля: | металлочерепица, керамическая черепица, битумная |
| Фундамент: | монолитная лента |
Дополнительные сведения: | Автор: Проектная мастерская ООО "Проект-М" г.Минск ул.Репина дом 4-453 |
| Артикул | 4M1608 |
| Количество этажей: | 2 |
| Общая площадь: | 154.00 м2 |
| Высота потолка: | 2.80 м |
| Количество спален: | 3 |
| Количество санузлов: | 3 |
| Минимальный размер участка(длина): | 19.50 м |
| Минимальный размер участка(ширина): | 21.00 м |
Материалы: | |
| Стены: | газобетон, керамические блоки |
| Перекрытие: | монолитное перекрытие |
| Кровля: | металлочерепица, керамическая черепица, битумная |
| Фундамент: | монолитная лента |
Дополнительные сведения: | Автор: Проектная мастерская ООО "Проект-М" г.Минск ул.Репина дом 4-453 |
Приобретая проект дома в компании Dom4M, Вы получаете комплект чертежей - 2 экземпляра, необходимый для проведения строительных работ и беспрепятственного получения разрешения на строительство.
Проект содержит три раздела – Архитектурный, Конструктивный и Инженерный (Водоснабжение, Отопление, Вентиляция, Канализация, Электроснабжение) + Пояснительная записка
1. Архитектурный раздел:
2. Конструктивный раздел:
3. Инженерный раздел:
Водоснабжение и канализация
Отопление, вентиляция
Электротехнические решения:
Проект является типовым и не учитывает конкретных условий строительства
Срок изготовления проекта дома составляет от 3 до 30 рабочих дней.
Объем проектной документации – от 50 до 100 страниц А4 и А3, в зависимости от сложности проекта
Наша команда Архитекторов, Конструкторов и Инженеров – всегда готовы воплотить Вашу мечту в реальность!
Мы можем вносить любые изменения в проект по Вашему пожеланию и адаптировать его с учетом конкретных геолого-топографических и климатических условий, за дополнительную плату.
Всегда рады Вам помочь!

Далеко-далеко, где год разделен на полярный день и полярную ночь, в царстве снегов, на острове Шпицберген жила Ледяная Принцесса. Ей этот край был родным, приветливым и северная красота внушала ей только восторг.
Но однажды к Принцессе прилетел южный ветер, и принес новость:
- Принцесса, - сказал он, - тебе нужно торопиться: грядет оттепель, и ледник будет раскалываться. Прошу тебя, уходи на большую землю!
- Ветер, - ответила Принцесса, - здесь – мой мир, и где же я поселюсь на материке? Где будет мой дом?
- Даю тебе сверток, - он протянул ей небольшой предмет, - это – проект дома. Ты построишь его на норвежской земле, и он станет твоей родиной и укроет тебя от всех невзгод. А теперь мне нужно спешить, прощай! - и южный ветер улетел.
Ледяная Принцесса посмотрела на проект дома: он был выполнен в скандинавском стиле. Принцесса улыбнулась: дом ей понравился, и она решила последовать совету ветра: отправилась на материк. Там принцесса построила этот дом, и зажила в нем счастливо, иногда прислушиваясь к северу: к тому, как до сих пор поскрипывал вечный ледник…
Далеко-далеко, где год разделен на полярный день и полярную ночь, в царстве снегов, на острове Шпицберген жила Ледяная Принцесса. Ей этот край был родным, приветливым и северная красота внушала ей только восторг.
Но однажды к Принцессе прилетел южный ветер, и принес новость:
- Принцесса, - сказал он, - тебе нужно торопиться: грядет оттепель, и ледник будет раскалываться. Прошу тебя, уходи на большую землю!
- Ветер, - ответила Принцесса, - здесь – мой мир, и где же я поселюсь на материке? Где будет мой дом?
- Даю тебе сверток, - он протянул ей небольшой предмет, - это – проект дома. Ты построишь его на норвежской земле, и он станет твоей родиной и укроет тебя от всех невзгод. А теперь мне нужно спешить, прощай! - и южный ветер улетел.
Ледяная Принцесса посмотрела на проект дома: он был выполнен в скандинавском стиле. Принцесса улыбнулась: дом ей понравился, и она решила последовать совету ветра: отправилась на материк. Там принцесса построила этот дом, и зажила в нем счастливо, иногда прислушиваясь к северу: к тому, как до сих пор поскрипывал вечный ледник…