| Артикул | 4M855 |
| Количество этажей: | 2 |
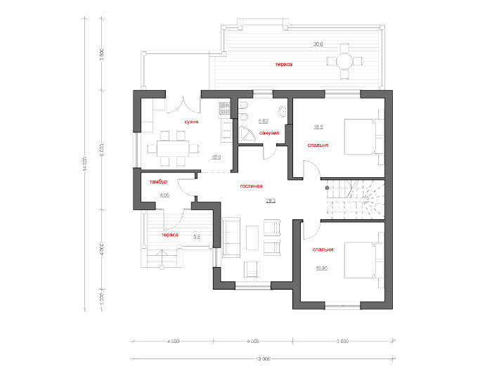
| Общая площадь: | 177.00 м2 |
| Высота потолка: | 2.80 м |
| Количество спален: | 5 |
| Количество санузлов: | 2 |
| Минимальный размер участка(длина): | 17.00 м |
| Минимальный размер участка(ширина): | 19.00 м |
Материалы: | |
| Стены: | газобетон, керамические блоки |
| Перекрытие: | монолитное перекрытие |
| Кровля: | керамическая черепица, металлочерепица, цементно-песчаная черепица |
| Фундамент: | монолитная лента |
| Артикул | 4M855 |
| Количество этажей: | 2 |
| Общая площадь: | 177.00 м2 |
| Высота потолка: | 2.80 м |
| Количество спален: | 5 |
| Количество санузлов: | 2 |
| Минимальный размер участка(длина): | 17.00 м |
| Минимальный размер участка(ширина): | 19.00 м |
Материалы: | |
| Стены: | газобетон, керамические блоки |
| Перекрытие: | монолитное перекрытие |
| Кровля: | керамическая черепица, металлочерепица, цементно-песчаная черепица |
| Фундамент: | монолитная лента |
Приобретая проект дома в компании Dom4M, Вы получаете комплект чертежей - 2 экземпляра, необходимый для проведения строительных работ и беспрепятственного получения разрешения на строительство.
Проект содержит три раздела – Архитектурный, Конструктивный и Инженерный (Водоснабжение, Отопление, Вентиляция, Канализация, Электроснабжение) + Пояснительная записка
1. Архитектурный раздел:
2. Конструктивный раздел:
3. Инженерный раздел:
Водоснабжение и канализация
Отопление, вентиляция
Электротехнические решения:
Проект является типовым и не учитывает конкретных условий строительства
Срок изготовления проекта дома составляет от 3 до 30 рабочих дней.
Объем проектной документации – от 50 до 100 страниц А4 и А3, в зависимости от сложности проекта
Наша команда Архитекторов, Конструкторов и Инженеров – всегда готовы воплотить Вашу мечту в реальность!
Мы можем вносить любые изменения в проект по Вашему пожеланию и адаптировать его с учетом конкретных геолого-топографических и климатических условий, за дополнительную плату.
Всегда рады Вам помочь!

Маленькая Дашенька засыпала на руках у Ольги, которая несла ее к детской кроватке.
- Мамуля, когда я вырасту, то построю себе двухэтажный кирпичный домик, и буду в нем жить круглый год! Там будет очень тепло и много шоколада, а еще рядом речка, чтобы летом я купалась каждый день!
- Солнышко, ты же еще маленькая, чтобы такие мысли думать, - ласково ответила Ольга.
- Про будущее надо начинать думать сегодня, мне так дедушка сказал. Вот я и придумала: буду жить в собственном домике и работать принцессой! У меня будет сказочный принц, который подарит мне карету и белых лошадей, а я буду радовать его новыми прическами каждый день!
Ольга не выдержала и рассмеялась.
- Доченька, а с нами тебе плохо живется?
- Хорошо, только много шоколада есть запрещают, - вздохнула девочка. – Я буду приглашать тебя в гости в наш кирпичный домик!
- Спасибо тебе, добрая принцесса, а теперь – спать, - она поцеловала девочку и вышла из комнаты.
- А может, нам уже сегодня построить дом для маленькой принцессы, где мы будем жить все вместе? - подумала Ольга. – Тем более, у принцессы скоро появится младший брат, - и она улыбнулась себе в зеркало, глядя на округлившийся животик…
Маленькая Дашенька засыпала на руках у Ольги, которая несла ее к детской кроватке.
- Мамуля, когда я вырасту, то построю себе двухэтажный кирпичный домик, и буду в нем жить круглый год! Там будет очень тепло и много шоколада, а еще рядом речка, чтобы летом я купалась каждый день!
- Солнышко, ты же еще маленькая, чтобы такие мысли думать, - ласково ответила Ольга.
- Про будущее надо начинать думать сегодня, мне так дедушка сказал. Вот я и придумала: буду жить в собственном домике и работать принцессой! У меня будет сказочный принц, который подарит мне карету и белых лошадей, а я буду радовать его новыми прическами каждый день!
Ольга не выдержала и рассмеялась.
- Доченька, а с нами тебе плохо живется?
- Хорошо, только много шоколада есть запрещают, - вздохнула девочка. – Я буду приглашать тебя в гости в наш кирпичный домик!
- Спасибо тебе, добрая принцесса, а теперь – спать, - она поцеловала девочку и вышла из комнаты.
- А может, нам уже сегодня построить дом для маленькой принцессы, где мы будем жить все вместе? - подумала Ольга. – Тем более, у принцессы скоро появится младший брат, - и она улыбнулась себе в зеркало, глядя на округлившийся животик…