| Артикул | 4M867 |
| Количество этажей: | 2 |
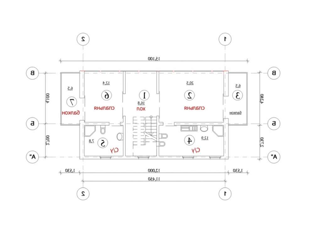
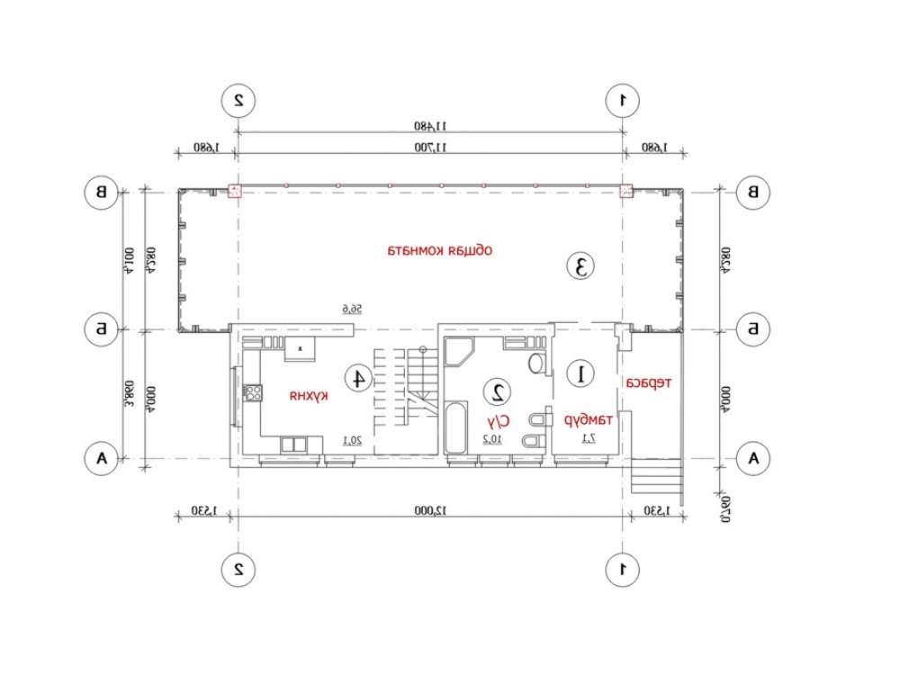
| Общая площадь: | 120.00 м2 |
| Жилая площадь: | 98.00 м2 |
| Высота потолка: | 2.80 м |
| Количество спален: | 2 |
| Количество санузлов: | 3 |
| Минимальный размер участка(длина): | 14.00 м |
| Минимальный размер участка(ширина): | 19.00 м |
Материалы: | |
| Стены: | газобетон, керамические блоки |
| Перекрытие: | монолитное перекрытие |
| Кровля: | фальц |
| Фундамент: | монолитная лента |
| Артикул | 4M867 |
| Количество этажей: | 2 |
| Общая площадь: | 120.00 м2 |
| Жилая площадь: | 98.00 м2 |
| Высота потолка: | 2.80 м |
| Количество спален: | 2 |
| Количество санузлов: | 3 |
| Минимальный размер участка(длина): | 14.00 м |
| Минимальный размер участка(ширина): | 19.00 м |
Материалы: | |
| Стены: | газобетон, керамические блоки |
| Перекрытие: | монолитное перекрытие |
| Кровля: | фальц |
| Фундамент: | монолитная лента |
Приобретая проект дома в компании Dom4M, Вы получаете комплект чертежей - 2 экземпляра, необходимый для проведения строительных работ и беспрепятственного получения разрешения на строительство.
Проект содержит три раздела – Архитектурный, Конструктивный и Инженерный (Водоснабжение, Отопление, Вентиляция, Канализация, Электроснабжение) + Пояснительная записка
1. Архитектурный раздел:
2. Конструктивный раздел:
3. Инженерный раздел:
Водоснабжение и канализация
Отопление, вентиляция
Электротехнические решения:
Проект является типовым и не учитывает конкретных условий строительства
Срок изготовления проекта дома составляет от 3 до 30 рабочих дней.
Объем проектной документации – от 50 до 100 страниц А4 и А3, в зависимости от сложности проекта
Наша команда Архитекторов, Конструкторов и Инженеров – всегда готовы воплотить Вашу мечту в реальность!
Мы можем вносить любые изменения в проект по Вашему пожеланию и адаптировать его с учетом конкретных геолого-топографических и климатических условий, за дополнительную плату.
Всегда рады Вам помочь!

Далеко-далеко, на лесной поляне, возле озера жил Дом. Двухэтажный красавец дополнял пейзаж, вписавшись в него самым лучшим образом. Он просыпался утром, и наполнялся солнечным светом, пропуская его через остекленную стену. Затем Дом поглядывал на себя в отражение в озере, и думал:
- Кто же создал меня таким необычным, таким отличающимся от своих собратьев?
Тишина ему была ответом, но от этого дом казался не менее красивым. Его вторая часть выходила в лес, который защищал его от непогоды, дарил тень и прохладу жаркими летними днями. Дом жил свою интересную жизнь, наблюдая за миром вокруг. Его остекленные стены могли не только пропускать много света, но еще и сливаться с красотой природы.
- Если бы внутри меня оказался человек, он бы пришел в восторг от увиденного: будто живое панно, природа за стеклом, которая движется, меняется, колышется на ветру и мокнет от дождя.
Домик ждал хозяина, потому что его друзья лес и озеро не могли ему дать той заботы, на которую способен человек, обретший свой очаг.
- Не ради себя я такой необычный,- размышлял Дом. – Однажды я подарю всю свою красоту, комфорт и тепло хозяину, который переступит мой порог и поймет, что останется здесь, со мной, навсегда…
Далеко-далеко, на лесной поляне, возле озера жил Дом. Двухэтажный красавец дополнял пейзаж, вписавшись в него самым лучшим образом. Он просыпался утром, и наполнялся солнечным светом, пропуская его через остекленную стену. Затем Дом поглядывал на себя в отражение в озере, и думал:
- Кто же создал меня таким необычным, таким отличающимся от своих собратьев?
Тишина ему была ответом, но от этого дом казался не менее красивым. Его вторая часть выходила в лес, который защищал его от непогоды, дарил тень и прохладу жаркими летними днями. Дом жил свою интересную жизнь, наблюдая за миром вокруг. Его остекленные стены могли не только пропускать много света, но еще и сливаться с красотой природы.
- Если бы внутри меня оказался человек, он бы пришел в восторг от увиденного: будто живое панно, природа за стеклом, которая движется, меняется, колышется на ветру и мокнет от дождя.
Домик ждал хозяина, потому что его друзья лес и озеро не могли ему дать той заботы, на которую способен человек, обретший свой очаг.
- Не ради себя я такой необычный,- размышлял Дом. – Однажды я подарю всю свою красоту, комфорт и тепло хозяину, который переступит мой порог и поймет, что останется здесь, со мной, навсегда…