С правилами ознакомлен(а) Авторизация
Авторизация нужна для сохраниения Вашего "Избранного".
Войти через:

 

 

 

 

 

 

 

Уважаемые клиенты, компания DOM4M продолжает работу и выполняет свои обязательства в установленные сроки. Берегите себя и своих близких!

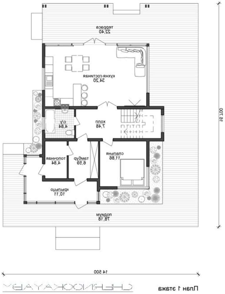
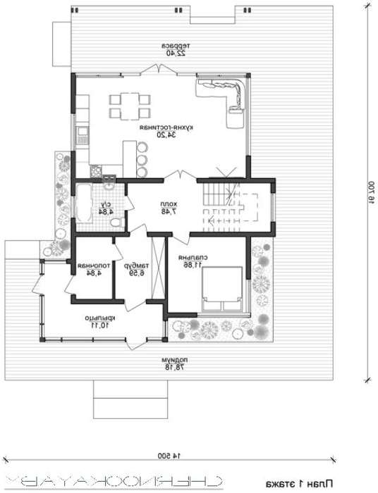
  • Первый этаж:
    Первый этаж::
    Первый этаж::
    Второй этаж:
    Второй этаж::
    Второй этаж::
  • 4M2305 Проект модернового необычного коттеджа

    Артикул4M2305
    Количество этажей:2
    Общая площадь:140.00 м2
    Жилая площадь:70.00 м2
    Высота дома:7.50 м
    Высота потолка:2.70 м
    Угол наклона кровли:35 °
    Площадь крыши:130.00 м2
    Кубатура:380.00 м3
    Количество спален:2
    Количество санузлов:2
    Минимальный размер участка(длина):26.00 м
    Минимальный размер участка(ширина):21.00 м
    Площадь застройки:240 м2
    Материалы:
    Стены:газобетон, керамические блоки
    Перекрытие:монолитное перекрытие
    Кровля:керамическая черепица, металлочерепица, цементно-песчаная черепица
    Фундамент:ленточный монолитно-сборной
    Дополнительные сведения:

    Проект студии современной архитектуры А.Черноокой.

Планы этажей
  • Первый этаж:
    Первый этаж:
    Первый этаж:
    Второй этаж:
    Второй этаж:
    Второй этаж:
Фасады и расположение на участке
Состав проекта

Покупая проект дома в компании Dom4M, Вы получаете комплект чертежей, необходимый для проведения строительных работ и беспрепятственного получения разрешения на строительство.

Состав проекта «Эскизное решение»

  •  Ведомость чертежей
  •  Пояснительная записка
  •  Генеральный план
  •  Планы этажей  (с расстановкой мебели,сан/тех приборов,окон,дверей,вентканалов,лестниц)
  •  План кровли
  •  Фасады
  •  Разрезы

Состав проекта «Cтроительное решение» 

  •  Ведомость чертежей
  •  Пояснительная записка
  •  Генеральный план
  •  Раздел КЖ-конструкции железобетонные (планы фундаментов, разрезы, узлы, спецификации)
  •  Планы этажей с расстановкой мебели
  •  Раздел КД –конструкции деревянные (планы перекрытий, разрезы, узлы, спецификации)
  •  План кровли
  •  Раздел КД- конструкции деревянные (планы стропильной системы, разрезы, узлы, спецификации)
  •  Развертки по осям (в деревянных домах)
  •  Разрезы
  •  Спецификации по всем материалам
  •  Узлы

Состав проекта АС может быть отличаться, в зависимости от конструкций и материалов дома.

Состав проекта «Инженерные сети» (приобретается по желанию):

  • Раздел "Электрика"
  • Раздел "Водоснабжение и канализация"
  • Раздел "Отопление и вентиляция"

Срок изготовления проекта дома составляет от 7 до 35 рабочих дней.

Объем проектной документации – от  50 до 90 страниц А4 и А3, в зависимости от сложности проекта

  • Проекты являются типовыми и не учитывают конкретных условий строительства.

Наша команда Архитекторов, Конструкторов и Инженеров – всегда готовы воплотить Вашу мечту в реальность!

Мы можем вносить любые изменения в проект по Вашему пожеланию и адаптировать его с учетом конкретных геолого-топографических и климатических условий, за дополнительную плату.

Получить профессиональную консультацию у наших специалистов, Вы можете любым способом связи: закажите обратный звонок, по skype, e-mail, телефон - наши контакты.

Всегда рады Вам помочь!

Прочитать полный текст
Акции

          

       Вы купили проект, и были бы не против вернуть часть денег затраченных на покупку? Или, может быть, таким образом, дать возможность подзаработать своим детям, племянникам, крестникам? :) Начните вести в комментариях к проекту свой блог "ДНЕВНИК СТРОЙКИ" описывайте и размещайте фотографии от первого дня строительства и до заселения! Рассказывайте обо всём, что может быть интересно другим посетителям нашего сайта! Мы гарантируем, что автор КАЖДОГО полного блога получит 10% от суммы, затраченной на приобретёние проекта.

 

        Если Вы строитесь по нашему проекту и Вам интересна эта акция - свяжитесь с нами, чтобы узнать подробнее! С желающими мы готовы заключить юридический договор о возврате средств!

        Вкладка "комментарии" в каждом проекте и в каждом разделе: пишите Ваши мнения и оценки, размещайте фото и описания стройки!

 

Дополнительные пакеты

Проект модернового необычного коттеджа 4M2305

Жила-была принцесса по имени Ледяное Сердце. Она выбрала уединение, скрывшись ото всех на горе. Ее домом стал огромный снежный сугроб, ее друзьями- ветер и холод. Стоило Теплу прийти в горы, первым делом приходилось облетать дом принцессы стороной. И тогда оно решило:

- Я должно что-то сделать с этой ситуацией: растоплю-ка сугроб! Ведь принцесса достойна лучшего жилья, чем обычный сугроб!

Оно призвало на помощь солнце, и то щедро поделилось горячими лучами. Сугроб растаял, и под ним оказался новый красивый дом. Он чем-то напоминал ледяной дворец: интересный фасад, острые формы, необычное остекление. Словной крейсер, показавшийся в океане.

Ледяное Сердце увидела особняк, и из ее голубых глаз выкатились две слезы. Тепло тронуло ее до глубины души, в ней проснулись благодарность, доброта.

- Спасибо тебе, Тепло, за такой дивный дом! Я и подумать не могла, что такую красоту можно создать, просто растопив сугроб!

Тепло улыбнулось ей, позвав весну. С тех пор каждый год начинался не с зимы, а с весны: всюду цвели горные цветы, а среди них стоял красивый зимний дом принцессы под именем Ледяное Сердце…

Жила-была принцесса по имени Ледяное Сердце. Она выбрала уединение, скрывшись ото всех на горе. Ее домом стал огромный снежный сугроб, ее друзьями- ветер и холод. Стоило Теплу прийти в горы, первым делом приходилось облетать дом принцессы стороной. И тогда оно решило:

- Я должно что-то сделать с этой ситуацией: растоплю-ка сугроб! Ведь принцесса достойна лучшего жилья, чем обычный сугроб!

Оно призвало на помощь солнце, и то щедро поделилось горячими лучами. Сугроб растаял, и под ним оказался новый красивый дом. Он чем-то напоминал ледяной дворец: интересный фасад, острые формы, необычное остекление. Словной крейсер, показавшийся в океане.

Ледяное Сердце увидела особняк, и из ее голубых глаз выкатились две слезы. Тепло тронуло ее до глубины души, в ней проснулись благодарность, доброта.

- Спасибо тебе, Тепло, за такой дивный дом! Я и подумать не могла, что такую красоту можно создать, просто растопив сугроб!

Тепло улыбнулось ей, позвав весну. С тех пор каждый год начинался не с зимы, а с весны: всюду цвели горные цветы, а среди них стоял красивый зимний дом принцессы под именем Ледяное Сердце…

Прочитать полный текст
Комментарии
Чтобы оставить комментарий, Вы должны либо заполнить поля ниже, либо авторизироваться на сайте.
Загрузить фото, до 5 штук
Ваша оценка:
Подобные
ЗАКАЗАТЬ
© 2010-2021 Dom4M. Все права защищены
This site is protected by reCAPTCHA and the Google Privacy Policy and Terms of Service apply