| Артикул | 4M857 | 
| Количество этажей: | 2 | 
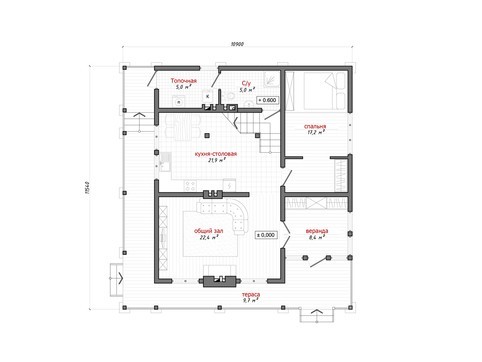
| Общая площадь: | 136.00 м2 | 
| Высота потолка: | 2.80 м | 
| Количество спален: | 3 | 
| Количество санузлов: | 2 | 
| Минимальный размер участка(длина): | 18.00 м | 
| Минимальный размер участка(ширина): | 17.00 м | 
| Материалы: | |
| Стены: | каркасная технология | 
| Перекрытие: | деревянное | 
| Кровля: | металлочерепица | 
| Фундамент: | монолитная лента | 
| Артикул | 4M857 | 
| Количество этажей: | 2 | 
| Общая площадь: | 136.00 м2 | 
| Высота потолка: | 2.80 м | 
| Количество спален: | 3 | 
| Количество санузлов: | 2 | 
| Минимальный размер участка(длина): | 18.00 м | 
| Минимальный размер участка(ширина): | 17.00 м | 
| Материалы: | |
| Стены: | каркасная технология | 
| Перекрытие: | деревянное | 
| Кровля: | металлочерепица | 
| Фундамент: | монолитная лента | 
Приобретая проект дома в компании Dom4M, Вы получаете комплект чертежей - 2 экземпляра, необходимый для проведения строительных работ и беспрепятственного получения разрешения на строительство.
Проект содержит три раздела – Архитектурный, Конструктивный и Инженерный (Водоснабжение, Отопление, Вентиляция, Канализация, Электроснабжение) + Пояснительная записка
1. Архитектурный раздел:
2. Конструктивный раздел:
3. Инженерный раздел:
Водоснабжение и канализация
Отопление, вентиляция
Электротехнические решения:
Проект является типовым и не учитывает конкретных условий строительства
Срок изготовления проекта дома составляет от 3 до 30 рабочих дней.
Объем проектной документации – от 50 до 100 страниц А4 и А3, в зависимости от сложности проекта
Наша команда Архитекторов, Конструкторов и Инженеров – всегда готовы воплотить Вашу мечту в реальность!
Мы можем вносить любые изменения в проект по Вашему пожеланию и адаптировать его с учетом конкретных геолого-топографических и климатических условий, за дополнительную плату.
Всегда рады Вам помочь!
           
Нептун, очарованный богиней света Зарой, однажды сказал:
- О, моя любовь, раздели со мной власть над морем: оно огромно, и мы будем править водной стихией наравне!
И Зара ответила ему:
- Нептун, твое предложение щедрое и достойное бога морей, но только я живу в загородном особняке. Я прихожу к людям в дом утром, и ухожу вечером, после захода солнца. Благодаря мне, их дом становится объемнее, и более обжитым.
Нептун разозлился на Зару и нагнал на воду страшную бурю. Моряки не выходили из гаваней полгода, а бог морей места себе не находил. Зара по прежнему оставалась верна своему дому, а его жители радовались игре теней, детвора ловила лучи света руками, а хозяйка загорала на террасе. Прошло время, морская буря улеглась, Нептун поразмыслил над смыслом жизни и сказал Заре:
- Я понял, что моя любовь к тебе сильнее, чем чувство ревности. Лети, освещай дом и будь нужна людям, я не стану тебя просить о невозможном.
Волна скрыла Нептуна, а Зара продолжала приходить в новый дом ранним утром, на рассвете…
Нептун, очарованный богиней света Зарой, однажды сказал:
- О, моя любовь, раздели со мной власть над морем: оно огромно, и мы будем править водной стихией наравне!
И Зара ответила ему:
- Нептун, твое предложение щедрое и достойное бога морей, но только я живу в загородном особняке. Я прихожу к людям в дом утром, и ухожу вечером, после захода солнца. Благодаря мне, их дом становится объемнее, и более обжитым.
Нептун разозлился на Зару и нагнал на воду страшную бурю. Моряки не выходили из гаваней полгода, а бог морей места себе не находил. Зара по прежнему оставалась верна своему дому, а его жители радовались игре теней, детвора ловила лучи света руками, а хозяйка загорала на террасе. Прошло время, морская буря улеглась, Нептун поразмыслил над смыслом жизни и сказал Заре:
- Я понял, что моя любовь к тебе сильнее, чем чувство ревности. Лети, освещай дом и будь нужна людям, я не стану тебя просить о невозможном.
Волна скрыла Нептуна, а Зара продолжала приходить в новый дом ранним утром, на рассвете…
 
  