Артикул | 4M1610 |
Количество этажей: | 3 |
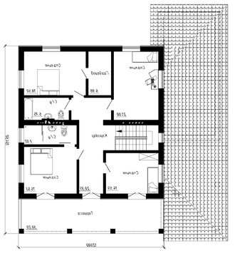
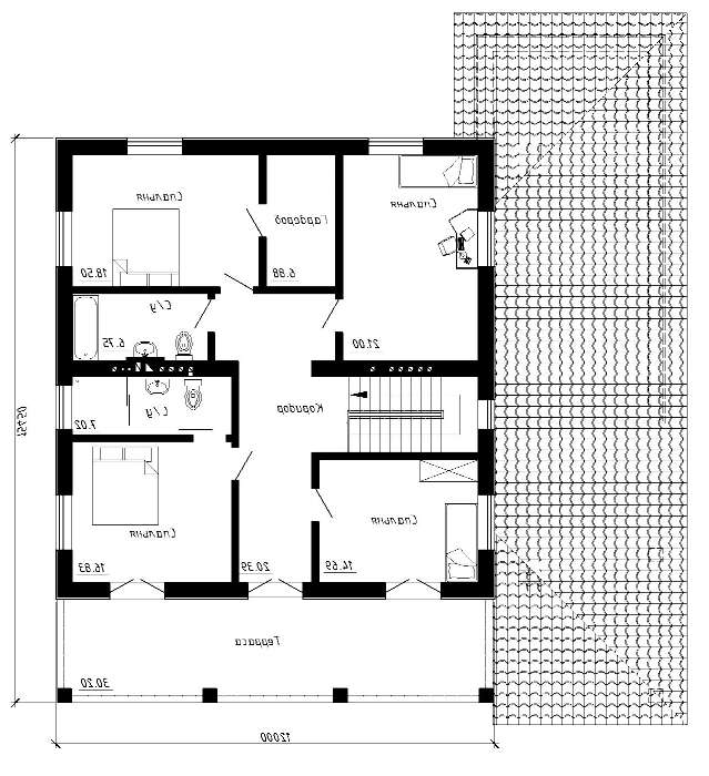
Общая площадь: | 402.00 м2 |
Высота дома: | 9.00 м |
Высота потолка: | 2.80 м |
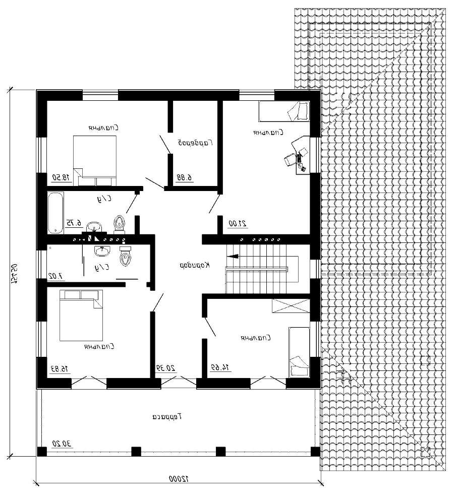
Количество спален: | 5 |
Количество санузлов: | 4 |
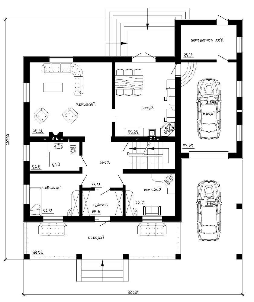
Гараж: | Гараж на два авто |
Минимальный размер участка(длина): | 26.50 м |
Минимальный размер участка(ширина): | 24.50 м |
Площадь цокольного этажа: | 110.97 м2 |
Материалы: | |
Стены: | газобетон, керамические блоки |
Перекрытие: | монолитное перекрытие |
Кровля: | металлочерепица, керамическая черепица, битумная |
Фундамент: | монолитная лента |
Дополнительные сведения: | Автор: Проектная мастерская ООО "Проект-М" г.Минск ул.Репина дом 4-453 |
Артикул | 4M1610 |
Количество этажей: | 3 |
Общая площадь: | 402.00 м2 |
Высота дома: | 9.00 м |
Высота потолка: | 2.80 м |
Количество спален: | 5 |
Количество санузлов: | 4 |
Гараж: | Гараж на два авто |
Минимальный размер участка(длина): | 26.50 м |
Минимальный размер участка(ширина): | 24.50 м |
Площадь цокольного этажа: | 110.97 м2 |
Материалы: | |
Стены: | газобетон, керамические блоки |
Перекрытие: | монолитное перекрытие |
Кровля: | металлочерепица, керамическая черепица, битумная |
Фундамент: | монолитная лента |
Дополнительные сведения: | Автор: Проектная мастерская ООО "Проект-М" г.Минск ул.Репина дом 4-453 |
Приобретая проект дома в компании Dom4M, Вы получаете комплект чертежей - 2 экземпляра, необходимый для проведения строительных работ и беспрепятственного получения разрешения на строительство.
Проект содержит три раздела – Архитектурный, Конструктивный и Инженерный (Водоснабжение, Отопление, Вентиляция, Канализация, Электроснабжение) + Пояснительная записка
1. Архитектурный раздел:
2. Конструктивный раздел:
3. Инженерный раздел:
Водоснабжение и канализация
Отопление, вентиляция
Электротехнические решения:
Проект является типовым и не учитывает конкретных условий строительства
Срок изготовления проекта дома составляет от 3 до 30 рабочих дней.
Объем проектной документации – от 50 до 100 страниц А4 и А3, в зависимости от сложности проекта
Наша команда Архитекторов, Конструкторов и Инженеров – всегда готовы воплотить Вашу мечту в реальность!
Мы можем вносить любые изменения в проект по Вашему пожеланию и адаптировать его с учетом конкретных геолого-топографических и климатических условий, за дополнительную плату.
Всегда рады Вам помочь!
Лорда Байрона знали все: женщины – как обаятельного собеседника, мужчины – как надежного делового партнера. Он был богат, успешен, молод и здоров. Лорд Байрон обожал две вещи: элитных лошадей и охотничье поместье в сорока километрах от города.
Да, не просто дом, а именно поместье: это было по-настоящему мужское жилище, во всем походящее на хозяина. Лорд отдавал предпочтение только лучшему, поэтому поместье построили большим, крепким и надежным, бесстрашным к необратимому ходу времени. Когда поздняя осень оповещала о скором приходе зимы и открывался охотничий сезон, лорд приезжал сюда. Поместье потому и называлось охотничьим, поскольку Байрон проводил здесь время от начала до закрытия сезона охоты.
Стоило хозяину сообщить о своем приезде, как слуги тут же начинали суетиться, готовили изысканный ужин, доставали из погребов вино и стелили на стол в гостиной белоснежные скатерти. Дом наполнялся атмосферой праздника: сюда ехал сам хозяин! В канделябрах воспламенялись свечи, в камине пламени мирного огня ласкали сухие поленья, а на любимое кожаное кресло лорда клали медвежью шкуру.
И когда за окнами раздавался топот копыт, двери тут же распахивались перед Байроном, и он понимал, что его ждут несколько самый лучших недель в году: он, поместье, природа и тишина, разлившаяся на километры вокруг…
Лорда Байрона знали все: женщины – как обаятельного собеседника, мужчины – как надежного делового партнера. Он был богат, успешен, молод и здоров. Лорд Байрон обожал две вещи: элитных лошадей и охотничье поместье в сорока километрах от города.
Да, не просто дом, а именно поместье: это было по-настоящему мужское жилище, во всем походящее на хозяина. Лорд отдавал предпочтение только лучшему, поэтому поместье построили большим, крепким и надежным, бесстрашным к необратимому ходу времени. Когда поздняя осень оповещала о скором приходе зимы и открывался охотничий сезон, лорд приезжал сюда. Поместье потому и называлось охотничьим, поскольку Байрон проводил здесь время от начала до закрытия сезона охоты.
Стоило хозяину сообщить о своем приезде, как слуги тут же начинали суетиться, готовили изысканный ужин, доставали из погребов вино и стелили на стол в гостиной белоснежные скатерти. Дом наполнялся атмосферой праздника: сюда ехал сам хозяин! В канделябрах воспламенялись свечи, в камине пламени мирного огня ласкали сухие поленья, а на любимое кожаное кресло лорда клали медвежью шкуру.
И когда за окнами раздавался топот копыт, двери тут же распахивались перед Байроном, и он понимал, что его ждут несколько самый лучших недель в году: он, поместье, природа и тишина, разлившаяся на километры вокруг…