| Артикул | 4M010 |
| Количество этажей: | 2 |
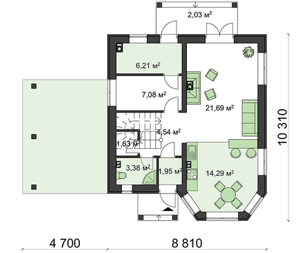
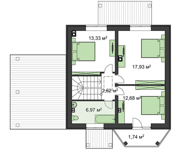
| Общая площадь: | 116.99 м2 |
| Жилая площадь: | 73.71 м2 |
| Высота дома: | 8.82 м |
| Высота потолка: | 2.80 м |
| Угол наклона кровли: | 40 ° |
| Площадь крыши: | 181.00 м2 |
| Количество спален: | 3 |
| Количество санузлов: | 2 |
| Гараж: | Гараж на одно авто |
| Минимальный размер участка(длина): | 19.90 м |
| Минимальный размер участка(ширина): | 20.50 м |
| Площадь застройки: | 124 м2 |
Материалы: | |
| Стены: | газобетон, керамические блоки |
| Перекрытие: | монолитное перекрытие |
| Кровля: | битумная черепица |
| Фундамент: | монолитная лента |
Дополнительные сведения: | Автор: Проектная мастерская ООО "Проект-М" г.Минск ул.Репина дом 4-453 |
| Артикул | 4M010 |
| Количество этажей: | 2 |
| Общая площадь: | 116.99 м2 |
| Жилая площадь: | 73.71 м2 |
| Высота дома: | 8.82 м |
| Высота потолка: | 2.80 м |
| Угол наклона кровли: | 40 ° |
| Площадь крыши: | 181.00 м2 |
| Количество спален: | 3 |
| Количество санузлов: | 2 |
| Гараж: | Гараж на одно авто |
| Минимальный размер участка(длина): | 19.90 м |
| Минимальный размер участка(ширина): | 20.50 м |
| Площадь застройки: | 124 м2 |
Материалы: | |
| Стены: | газобетон, керамические блоки |
| Перекрытие: | монолитное перекрытие |
| Кровля: | битумная черепица |
| Фундамент: | монолитная лента |
Дополнительные сведения: | Автор: Проектная мастерская ООО "Проект-М" г.Минск ул.Репина дом 4-453 |
Приобретая проект дома в компании Dom4M, Вы получаете комплект чертежей - 2 экземпляра, необходимый для проведения строительных работ и беспрепятственного получения разрешения на строительство.
Проект содержит три раздела – Архитектурный, Конструктивный и Инженерный (Водоснабжение, Отопление, Вентиляция, Канализация, Электроснабжение) + Пояснительная записка
1. Архитектурный раздел:
2. Конструктивный раздел:
3. Инженерный раздел:
Водоснабжение и канализация
Отопление, вентиляция
Электротехнические решения:
Проект является типовым и не учитывает конкретных условий строительства
Срок изготовления проекта дома составляет от 3 до 30 рабочих дней.
Объем проектной документации – от 50 до 100 страниц А4 и А3, в зависимости от сложности проекта
Наша команда Архитекторов, Конструкторов и Инженеров – всегда готовы воплотить Вашу мечту в реальность!
Мы можем вносить любые изменения в проект по Вашему пожеланию и адаптировать его с учетом конкретных геолого-топографических и климатических условий, за дополнительную плату.
Всегда рады Вам помочь!

В бирюзовых морских водах жила себе золотая рыбка. В будние дни с девяти до восемнадцати она вела прием граждан, желающих исполнения их целей и планов. Работа у нее была такая: волшебство творить. И вот однажды к ней пришел удалой молодец, и речь завел:
- Здравствуй, рыбка! Наслышан я о твоих талантах одни вещи в другие превращать. Дело такое: есть у меня корыто, не то чтобы очень старое, но не очень нужное. А требуется превратить его в дом хороший, чтоб дачный участок не пустовал. Сможешь такое осуществить?
- И тебе, молодец, доброго здоровья! А что за корыто?
- Ездовое, капремонт сам недавно сделал, хотели друзья у меня выкупить и на рыбалку ездить – не отдал! Вот, пришел к тебе, очень уж дом надежный нужен.
- Ладно, будет тебе дом. Ты, главное, корыто на берегу оставь и ступай на дачу. А я уж сделаю, что смогу, - и уплыла.
Молодец машину оставил и отправился на дачу. Он сперва свой участок не узнал: ведь посреди него стоял отличный дом! назвать его дачным домиком было сложно: это оказался полноценный добротный дом, очень даже красивый и эстетичный: эркер, балкончик, ну все тебе тут!
- Ай да рыбка, ай да морская кудесница, вовек доброту твою не забуду! - от всей души вымолвил молодец и пошел свои жилые владения оглядывать изнутри…
В бирюзовых морских водах жила себе золотая рыбка. В будние дни с девяти до восемнадцати она вела прием граждан, желающих исполнения их целей и планов. Работа у нее была такая: волшебство творить. И вот однажды к ней пришел удалой молодец, и речь завел:
- Здравствуй, рыбка! Наслышан я о твоих талантах одни вещи в другие превращать. Дело такое: есть у меня корыто, не то чтобы очень старое, но не очень нужное. А требуется превратить его в дом хороший, чтоб дачный участок не пустовал. Сможешь такое осуществить?
- И тебе, молодец, доброго здоровья! А что за корыто?
- Ездовое, капремонт сам недавно сделал, хотели друзья у меня выкупить и на рыбалку ездить – не отдал! Вот, пришел к тебе, очень уж дом надежный нужен.
- Ладно, будет тебе дом. Ты, главное, корыто на берегу оставь и ступай на дачу. А я уж сделаю, что смогу, - и уплыла.
Молодец машину оставил и отправился на дачу. Он сперва свой участок не узнал: ведь посреди него стоял отличный дом! назвать его дачным домиком было сложно: это оказался полноценный добротный дом, очень даже красивый и эстетичный: эркер, балкончик, ну все тебе тут!
- Ай да рыбка, ай да морская кудесница, вовек доброту твою не забуду! - от всей души вымолвил молодец и пошел свои жилые владения оглядывать изнутри…