С правилами ознакомлен(а) Авторизация
Авторизация нужна для сохраниения Вашего "Избранного".
Войти через:

 

 

 

 

 

 

 

Уважаемые клиенты, компания DOM4M продолжает работу и выполняет свои обязательства в установленные сроки. Берегите себя и своих близких!

  • Первый этаж:
    Первый этаж::
    Первый этаж::
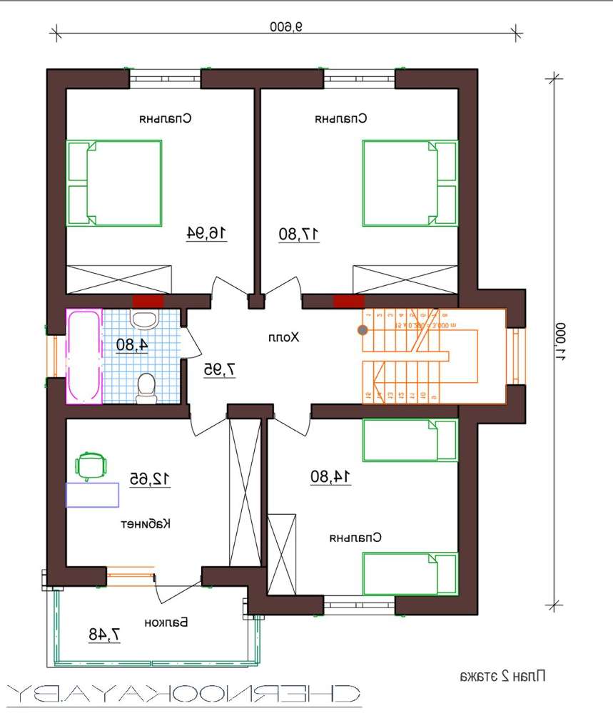
    Второй этаж:
    Второй этаж::
    Второй этаж::
  • 4M2311 Проект 2-х этажного дома с оригинальным фасадом

    Артикул4M2311
    Количество этажей:2
    Общая площадь:155.00 м2
    Жилая площадь:99.00 м2
    Высота дома:7.00 м
    Высота потолка:2.70 м
    Угол наклона кровли:30 °
    Площадь крыши:190.00 м2
    Кубатура:420.00 м3
    Количество спален:4
    Количество санузлов:2
    Минимальный размер участка(длина):20.00 м
    Минимальный размер участка(ширина):16.00 м
    Площадь застройки:110 м2
    Материалы:
    Стены:газобетон, керамические блоки
    Перекрытие:монолитное перекрытие
    Кровля:керамическая черепица, металлочерепица, цементно-песчаная черепица
    Фундамент:Cваи
    Дополнительные сведения:

    Проект студии современной архитектуры А.Черноокой.

Планы этажей
  • Первый этаж:
    Первый этаж:
    Первый этаж:
    Второй этаж:
    Второй этаж:
    Второй этаж:
Фасады и расположение на участке
Состав проекта

Покупая проект дома в компании Dom4M, Вы получаете комплект чертежей, необходимый для проведения строительных работ и беспрепятственного получения разрешения на строительство.

Состав проекта «Эскизное решение»

  •  Ведомость чертежей
  •  Пояснительная записка
  •  Генеральный план
  •  Планы этажей  (с расстановкой мебели,сан/тех приборов,окон,дверей,вентканалов,лестниц)
  •  План кровли
  •  Фасады
  •  Разрезы

Состав проекта «Cтроительное решение» 

  •  Ведомость чертежей
  •  Пояснительная записка
  •  Генеральный план
  •  Раздел КЖ-конструкции железобетонные (планы фундаментов, разрезы, узлы, спецификации)
  •  Планы этажей с расстановкой мебели
  •  Раздел КД –конструкции деревянные (планы перекрытий, разрезы, узлы, спецификации)
  •  План кровли
  •  Раздел КД- конструкции деревянные (планы стропильной системы, разрезы, узлы, спецификации)
  •  Развертки по осям (в деревянных домах)
  •  Разрезы
  •  Спецификации по всем материалам
  •  Узлы

Состав проекта АС может быть отличаться, в зависимости от конструкций и материалов дома.

Состав проекта «Инженерные сети» (приобретается по желанию):

  • Раздел "Электрика"
  • Раздел "Водоснабжение и канализация"
  • Раздел "Отопление и вентиляция"

Срок изготовления проекта дома составляет от 7 до 35 рабочих дней.

Объем проектной документации – от  50 до 90 страниц А4 и А3, в зависимости от сложности проекта

  • Проекты являются типовыми и не учитывают конкретных условий строительства.

Наша команда Архитекторов, Конструкторов и Инженеров – всегда готовы воплотить Вашу мечту в реальность!

Мы можем вносить любые изменения в проект по Вашему пожеланию и адаптировать его с учетом конкретных геолого-топографических и климатических условий, за дополнительную плату.

Получить профессиональную консультацию у наших специалистов, Вы можете любым способом связи: закажите обратный звонок, по skype, e-mail, телефон - наши контакты.

Всегда рады Вам помочь!

Прочитать полный текст
Акции

          

       Вы купили проект, и были бы не против вернуть часть денег затраченных на покупку? Или, может быть, таким образом, дать возможность подзаработать своим детям, племянникам, крестникам? :) Начните вести в комментариях к проекту свой блог "ДНЕВНИК СТРОЙКИ" описывайте и размещайте фотографии от первого дня строительства и до заселения! Рассказывайте обо всём, что может быть интересно другим посетителям нашего сайта! Мы гарантируем, что автор КАЖДОГО полного блога получит 10% от суммы, затраченной на приобретёние проекта.

 

        Если Вы строитесь по нашему проекту и Вам интересна эта акция - свяжитесь с нами, чтобы узнать подробнее! С желающими мы готовы заключить юридический договор о возврате средств!

        Вкладка "комментарии" в каждом проекте и в каждом разделе: пишите Ваши мнения и оценки, размещайте фото и описания стройки!

 

Дополнительные пакеты

Проект 2-х этажного дома с оригинальным фасадом 4M2311

Однажды Маленькому Принцу удалось узнать легенду, по которой на далекой планете Земля построен дом, способный исполнить три желания своего хозяина. Принц не ведал, знает ли о таком хозяин, поэтому, приведя с утра свою планету в порядок, он собрался в путь на Землю.

Добравшись до дома, Принц внимательно пересчитал ступени. По легенде их должно быть пять.

- Так и есть, ровно пять, это тот дом! - обрадовался Маленький Принц.

Он постучал, и ему открыл сам хозяин, который не стал вести беседу на пороге, и пригласил Принца в дом.

- Как у вас здесь красиво! - сказал тот.

- Так о чем ты хотел мне поведать? - напомнил хозяин.

И Принц рассказал легенду.

- Но мои желания уже исполнились, - улыбаясь, ответил хозяин. – Я мечтал о крепкой семье, и, встретив девушку, женился на ней. Мне хотелось собаку, и я принес ее к себе, забрав из приюта. А затем я задумался о доме, ведь у меня семья и собака, и построил вот этот особняк, где мы с тобой пьем чай. Не чудо ли?

Принц очень удивился, но ничего не сказал.

- Дивные люди – земляне, - подумал он и улетел к себе домой…

Однажды Маленькому Принцу удалось узнать легенду, по которой на далекой планете Земля построен дом, способный исполнить три желания своего хозяина. Принц не ведал, знает ли о таком хозяин, поэтому, приведя с утра свою планету в порядок, он собрался в путь на Землю.

Добравшись до дома, Принц внимательно пересчитал ступени. По легенде их должно быть пять.

- Так и есть, ровно пять, это тот дом! - обрадовался Маленький Принц.

Он постучал, и ему открыл сам хозяин, который не стал вести беседу на пороге, и пригласил Принца в дом.

- Как у вас здесь красиво! - сказал тот.

- Так о чем ты хотел мне поведать? - напомнил хозяин.

И Принц рассказал легенду.

- Но мои желания уже исполнились, - улыбаясь, ответил хозяин. – Я мечтал о крепкой семье, и, встретив девушку, женился на ней. Мне хотелось собаку, и я принес ее к себе, забрав из приюта. А затем я задумался о доме, ведь у меня семья и собака, и построил вот этот особняк, где мы с тобой пьем чай. Не чудо ли?

Принц очень удивился, но ничего не сказал.

- Дивные люди – земляне, - подумал он и улетел к себе домой…

Прочитать полный текст
Комментарии
Чтобы оставить комментарий, Вы должны либо заполнить поля ниже, либо авторизироваться на сайте.
Загрузить фото, до 5 штук
Ваша оценка:
Подобные
ЗАКАЗАТЬ
© 2010-2021 Dom4M. Все права защищены
This site is protected by reCAPTCHA and the Google Privacy Policy and Terms of Service apply