| Артикул | 4M815 |
| Количество этажей: | 3 |
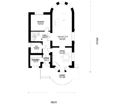
| Общая площадь: | 191.60 м2 |
| Высота потолка: | 2.80 м |
| Количество спален: | 4 |
| Количество санузлов: | 2 |
| Минимальный размер участка(длина): | 21.00 м |
| Минимальный размер участка(ширина): | 15.00 м |
Материалы: | |
| Стены: | газобетон, керамические блоки |
| Перекрытие: | монолитное перекрытие |
| Кровля: | металлочерепица, керамическая черепица, битумная |
| Фундамент: | монолитная лента |
| Артикул | 4M815 |
| Количество этажей: | 3 |
| Общая площадь: | 191.60 м2 |
| Высота потолка: | 2.80 м |
| Количество спален: | 4 |
| Количество санузлов: | 2 |
| Минимальный размер участка(длина): | 21.00 м |
| Минимальный размер участка(ширина): | 15.00 м |
Материалы: | |
| Стены: | газобетон, керамические блоки |
| Перекрытие: | монолитное перекрытие |
| Кровля: | металлочерепица, керамическая черепица, битумная |
| Фундамент: | монолитная лента |
Покупая проект дома в компании Dom4M, Вы получаете комплект чертежей, необходимый для проведения строительных работ и беспрепятственного получения разрешения на строительство.
В основном составе, наш проект содержит: Пояснительную записку и два больших раздела – Архитектурный и Конструктивный.
1. В состав Архитектурного раздела входят:
2. В состав Конструктивного раздела входят:
3. Инженерный раздел (приобретается по желанию):
Срок изготовления проекта дома составляет от 7 до 35 рабочих дней.
Объем проектной документации – от 50 до 90 страниц А4 и А3, в зависимости от сложности проекта
Наша команда Архитекторов, Конструкторов и Инженеров – всегда готовы воплотить Вашу мечту в реальность!
Мы можем вносить любые изменения в проект по Вашему пожеланию и адаптировать его с учетом конкретных геолого-топографических и климатических условий, за дополнительную плату.
Всегда рады Вам помочь!

Природа угасала: вокруг царствовала осень. Желтые листья плавно парили над бордовой черепицей двухэтажного дома, где жила Розалин. Девушка обожала бабье лето, которое соблазнительно-обманчиво грело теплом и манило окунуться в холодный пруд.
Каждое утро она спускалась со второго этажа, где находилась ее спальня, на кухню. Пару горячих круассанов, чашка кофе – и она готова к новым приключениям. Покидая дом на целый день, она мечтала поскорее вернуться, чтобы насладиться закатом, сидя на террасе в ротанговом кресле-качалке. И если ей удавалось вернуться раньше, Розалин заставала тот момент, когда западная часть дома погружалась в лучи заходящего солнца. Бежевые обои на стенах переливались мелкими лепесточками, хрусталь в буфете блестел, а оконные цветы словно говорили ей «спасибо!».
Стоило солнцу спрятаться за горизонт, Розалин тут же разжигала огонь в камине, подкидывая пару поленьев.
- Дом – это очаг, - говорила она себе.
Ей было немного грустно смотреть из окон, как природа засыпает. Но одно она знала наверняка: пройдет немного времени, и сочная весна ворвется в эти окна…
Природа угасала: вокруг царствовала осень. Желтые листья плавно парили над бордовой черепицей двухэтажного дома, где жила Розалин. Девушка обожала бабье лето, которое соблазнительно-обманчиво грело теплом и манило окунуться в холодный пруд.
Каждое утро она спускалась со второго этажа, где находилась ее спальня, на кухню. Пару горячих круассанов, чашка кофе – и она готова к новым приключениям. Покидая дом на целый день, она мечтала поскорее вернуться, чтобы насладиться закатом, сидя на террасе в ротанговом кресле-качалке. И если ей удавалось вернуться раньше, Розалин заставала тот момент, когда западная часть дома погружалась в лучи заходящего солнца. Бежевые обои на стенах переливались мелкими лепесточками, хрусталь в буфете блестел, а оконные цветы словно говорили ей «спасибо!».
Стоило солнцу спрятаться за горизонт, Розалин тут же разжигала огонь в камине, подкидывая пару поленьев.
- Дом – это очаг, - говорила она себе.
Ей было немного грустно смотреть из окон, как природа засыпает. Но одно она знала наверняка: пройдет немного времени, и сочная весна ворвется в эти окна…