| Артикул | 4M812 |
| Количество этажей: | 2 |
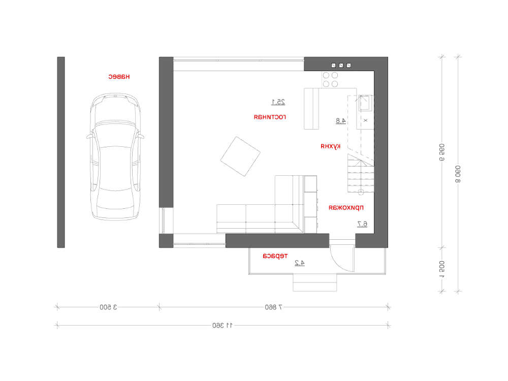
| Общая площадь: | 218.00 м2 |
| Жилая площадь: | 176.00 м2 |
| Количество спален: | 4 |
| Количество санузлов: | 2 |
| Гараж: | Гараж на одно авто |
| Минимальный размер участка(длина): | 20.00 м |
| Минимальный размер участка(ширина): | 19.00 м |
Материалы: | |
| Стены: | Газобетонные блоки, кирпич |
| Перекрытие: | монолитное перекрытие |
| Кровля: | керамическая черепица, металлочерепица, цементно-песчаная черепица |
| Фундамент: | монолитная лента |
| Артикул | 4M812 |
| Количество этажей: | 2 |
| Общая площадь: | 218.00 м2 |
| Жилая площадь: | 176.00 м2 |
| Количество спален: | 4 |
| Количество санузлов: | 2 |
| Гараж: | Гараж на одно авто |
| Минимальный размер участка(длина): | 20.00 м |
| Минимальный размер участка(ширина): | 19.00 м |
Материалы: | |
| Стены: | Газобетонные блоки, кирпич |
| Перекрытие: | монолитное перекрытие |
| Кровля: | керамическая черепица, металлочерепица, цементно-песчаная черепица |
| Фундамент: | монолитная лента |
Приобретая проект дома в компании Dom4M, Вы получаете комплект чертежей - 2 экземпляра, необходимый для проведения строительных работ и беспрепятственного получения разрешения на строительство.
Проект содержит три раздела – Архитектурный, Конструктивный и Инженерный (Водоснабжение, Отопление, Вентиляция, Канализация, Электроснабжение) + Пояснительная записка
1. Архитектурный раздел:
2. Конструктивный раздел:
3. Инженерный раздел:
Водоснабжение и канализация
Отопление, вентиляция
Электротехнические решения:
Проект является типовым и не учитывает конкретных условий строительства
Срок изготовления проекта дома составляет от 3 до 30 рабочих дней.
Объем проектной документации – от 50 до 100 страниц А4 и А3, в зависимости от сложности проекта
Наша команда Архитекторов, Конструкторов и Инженеров – всегда готовы воплотить Вашу мечту в реальность!
Мы можем вносить любые изменения в проект по Вашему пожеланию и адаптировать его с учетом конкретных геолого-топографических и климатических условий, за дополнительную плату.
Всегда рады Вам помочь!

Изумрудный город засыпал, и повсюду зажигались фонари. На холме за городом виднелся чудесный особняк, в котором жил Волшебник. Каждый горожанин слышал легенду об этом доме, но достоверно никто не знал, что из этого было правдой.
Поговаривали, будто Сказочная Фея приложила свое колдовство к созданию этого жилого шедевра, и считали, что дом возник в изумрудную бурю, которая усыпала весь город пылью, а когда пыль осела, на холме уже стоял дом. Рассказывали, будто сам Волшебник по ночам строил свой дом, который днем был невидимым, а когда он достроил его до конца, то все вокруг увидели строение с холма.
Легенды добавляли дому ни с чем не сравнимого шарма, загадочности, и если бы Волшебник надумал продать свой дом, то он стоил бы дорого, но такой дом не продают, его строят для себя, живут в нем и наслаждаются индивидуальностью. Никто из жителей Изумрудного города не был внутри дома, хотя Волшебника знал каждый горожанин. Поэтому домом просто любовались издалека, восхищаясь вкусом того, кто создал такую красоту, кем бы создатель не был, но это, бесспорно, талант…
Изумрудный город засыпал, и повсюду зажигались фонари. На холме за городом виднелся чудесный особняк, в котором жил Волшебник. Каждый горожанин слышал легенду об этом доме, но достоверно никто не знал, что из этого было правдой.
Поговаривали, будто Сказочная Фея приложила свое колдовство к созданию этого жилого шедевра, и считали, что дом возник в изумрудную бурю, которая усыпала весь город пылью, а когда пыль осела, на холме уже стоял дом. Рассказывали, будто сам Волшебник по ночам строил свой дом, который днем был невидимым, а когда он достроил его до конца, то все вокруг увидели строение с холма.
Легенды добавляли дому ни с чем не сравнимого шарма, загадочности, и если бы Волшебник надумал продать свой дом, то он стоил бы дорого, но такой дом не продают, его строят для себя, живут в нем и наслаждаются индивидуальностью. Никто из жителей Изумрудного города не был внутри дома, хотя Волшебника знал каждый горожанин. Поэтому домом просто любовались издалека, восхищаясь вкусом того, кто создал такую красоту, кем бы создатель не был, но это, бесспорно, талант…