| Артикул | 4M2321 |
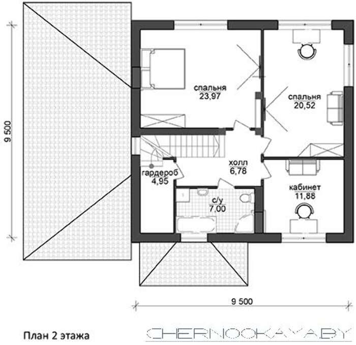
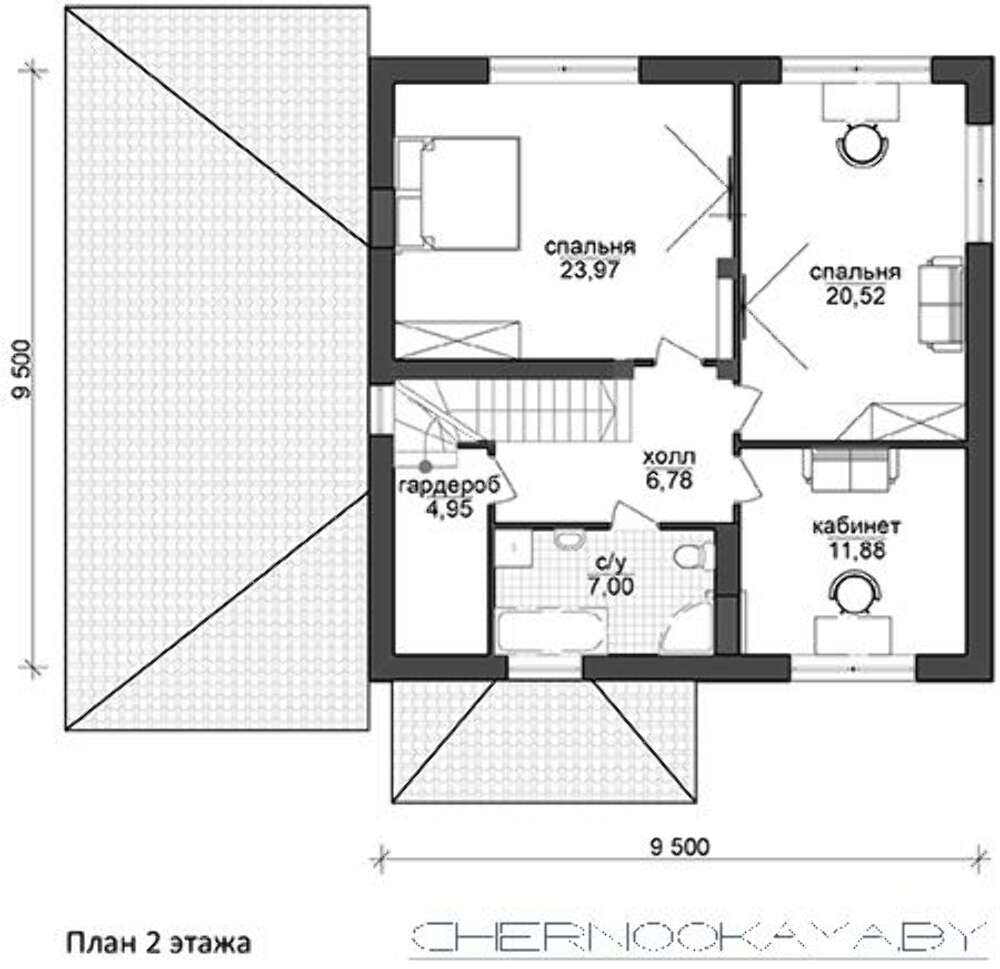
| Количество этажей: | 2 |
| Общая площадь: | 318.00 м2 |
| Жилая площадь: | 99.00 м2 |
| Высота дома: | 8.00 м |
| Высота потолка: | 2.70 м |
| Угол наклона кровли: | 20 ° |
| Площадь крыши: | 250.00 м2 |
| Количество спален: | 3 |
| Количество санузлов: | 2 |
| Гараж: | Гараж на одно авто |
| Минимальный размер участка(длина): | 30.00 м |
| Минимальный размер участка(ширина): | 28.00 м |
| Площадь застройки: | 460 м2 |
Материалы: | |
| Стены: | газобетон, керамические блоки |
| Перекрытие: | плиты перекрытия |
| Кровля: | металлочерепица, керамическая черепица, битумная |
| Фундамент: | ленточный монолитно-сборной |
| Артикул | 4M2321 |
| Количество этажей: | 2 |
| Общая площадь: | 318.00 м2 |
| Жилая площадь: | 99.00 м2 |
| Высота дома: | 8.00 м |
| Высота потолка: | 2.70 м |
| Угол наклона кровли: | 20 ° |
| Площадь крыши: | 250.00 м2 |
| Количество спален: | 3 |
| Количество санузлов: | 2 |
| Гараж: | Гараж на одно авто |
| Минимальный размер участка(длина): | 30.00 м |
| Минимальный размер участка(ширина): | 28.00 м |
| Площадь застройки: | 460 м2 |
Материалы: | |
| Стены: | газобетон, керамические блоки |
| Перекрытие: | плиты перекрытия |
| Кровля: | металлочерепица, керамическая черепица, битумная |
| Фундамент: | ленточный монолитно-сборной |
Покупая проект дома в компании Dom4M, Вы получаете комплект чертежей, необходимый для проведения строительных работ и беспрепятственного получения разрешения на строительство.
Состав проекта АС может быть отличаться, в зависимости от конструкций и материалов дома.
Срок изготовления проекта дома составляет от 7 до 35 рабочих дней.
Объем проектной документации – от 50 до 90 страниц А4 и А3, в зависимости от сложности проекта
Наша команда Архитекторов, Конструкторов и Инженеров – всегда готовы воплотить Вашу мечту в реальность!
Мы можем вносить любые изменения в проект по Вашему пожеланию и адаптировать его с учетом конкретных геолого-топографических и климатических условий, за дополнительную плату.
Получить профессиональную консультацию у наших специалистов, Вы можете любым способом связи: закажите обратный звонок, по skype, e-mail, телефон - наши контакты.
Всегда рады Вам помочь!
