С правилами ознакомлен(а) Авторизация
Авторизация нужна для сохраниения Вашего "Избранного".
Войти через:

 

 

 

 

 

 

 

Уважаемые клиенты, компания DOM4M продолжает работу и выполняет свои обязательства в установленные сроки. Берегите себя и своих близких!

  • Первый этаж:
    Первый этаж::
    Первый этаж::
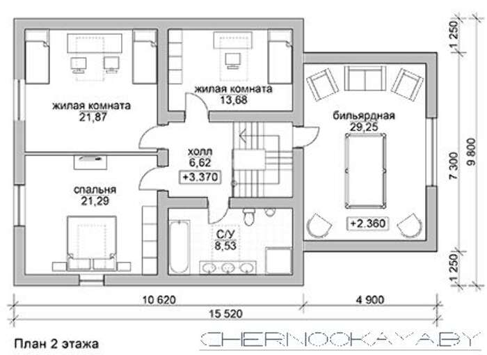
    Второй этаж:
    Второй этаж::
    Второй этаж::
  • 4M2313 2313

    Артикул4M2313
    Количество этажей:2
    Общая площадь:219.00 м2
    Жилая площадь:103.00 м2
    Высота дома:8.00 м
    Высота потолка:2.70 м
    Угол наклона кровли:30 °
    Площадь крыши:200.00 м2
    Количество спален:4
    Количество санузлов:2
    Гараж:Гараж на одно авто
    Минимальный размер участка(длина):18.00 м
    Минимальный размер участка(ширина):22.00 м
    Площадь застройки:160 м2
    Материалы:
    Стены:газобетон, керамические блоки
    Перекрытие:плиты перекрытия
    Кровля:фальц
    Фундамент:ленточный монолитно-сборной
Планы этажей
  • Первый этаж:
    Первый этаж:
    Первый этаж:
    Второй этаж:
    Второй этаж:
    Второй этаж:
Фасады и расположение на участке
Состав проекта

Покупая проект дома в компании Dom4M, Вы получаете комплект чертежей, необходимый для проведения строительных работ и беспрепятственного получения разрешения на строительство.

Состав проекта «Эскизное решение»

  •  Ведомость чертежей
  •  Пояснительная записка
  •  Генеральный план
  •  Планы этажей  (с расстановкой мебели,сан/тех приборов,окон,дверей,вентканалов,лестниц)
  •  План кровли
  •  Фасады
  •  Разрезы

Состав проекта «Cтроительное решение» 

  •  Ведомость чертежей
  •  Пояснительная записка
  •  Генеральный план
  •  Раздел КЖ-конструкции железобетонные (планы фундаментов, разрезы, узлы, спецификации)
  •  Планы этажей с расстановкой мебели
  •  Раздел КД –конструкции деревянные (планы перекрытий, разрезы, узлы, спецификации)
  •  План кровли
  •  Раздел КД- конструкции деревянные (планы стропильной системы, разрезы, узлы, спецификации)
  •  Развертки по осям (в деревянных домах)
  •  Разрезы
  •  Спецификации по всем материалам
  •  Узлы

Состав проекта АС может быть отличаться, в зависимости от конструкций и материалов дома.

Состав проекта «Инженерные сети» (приобретается по желанию):

  • Раздел "Электрика"
  • Раздел "Водоснабжение и канализация"
  • Раздел "Отопление и вентиляция"

Срок изготовления проекта дома составляет от 7 до 35 рабочих дней.

Объем проектной документации – от  50 до 90 страниц А4 и А3, в зависимости от сложности проекта

  • Проекты являются типовыми и не учитывают конкретных условий строительства.

Наша команда Архитекторов, Конструкторов и Инженеров – всегда готовы воплотить Вашу мечту в реальность!

Мы можем вносить любые изменения в проект по Вашему пожеланию и адаптировать его с учетом конкретных геолого-топографических и климатических условий, за дополнительную плату.

Получить профессиональную консультацию у наших специалистов, Вы можете любым способом связи: закажите обратный звонок, по skype, e-mail, телефон - наши контакты.

Всегда рады Вам помочь!

Прочитать полный текст
Акции

          

       Вы купили проект, и были бы не против вернуть часть денег затраченных на покупку? Или, может быть, таким образом, дать возможность подзаработать своим детям, племянникам, крестникам? :) Начните вести в комментариях к проекту свой блог "ДНЕВНИК СТРОЙКИ" описывайте и размещайте фотографии от первого дня строительства и до заселения! Рассказывайте обо всём, что может быть интересно другим посетителям нашего сайта! Мы гарантируем, что автор КАЖДОГО полного блога получит 10% от суммы, затраченной на приобретёние проекта.

 

        Если Вы строитесь по нашему проекту и Вам интересна эта акция - свяжитесь с нами, чтобы узнать подробнее! С желающими мы готовы заключить юридический договор о возврате средств!

        Вкладка "комментарии" в каждом проекте и в каждом разделе: пишите Ваши мнения и оценки, размещайте фото и описания стройки!

 

Дополнительные пакеты

2313 4M2313

Комментарии
Чтобы оставить комментарий, Вы должны либо заполнить поля ниже, либо авторизироваться на сайте.
Загрузить фото, до 5 штук
Ваша оценка:
Подобные
ЗАКАЗАТЬ
© 2010-2021 Dom4M. Все права защищены
This site is protected by reCAPTCHA and the Google Privacy Policy and Terms of Service apply