| Артикул | 4M1867 | 
| Количество этажей: | 2 | 
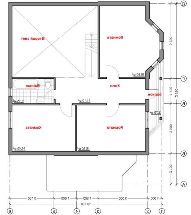
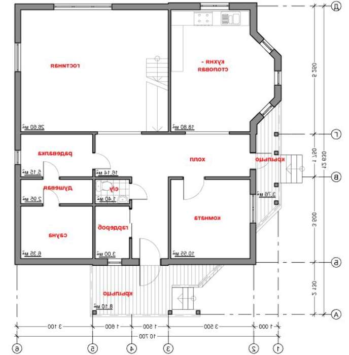
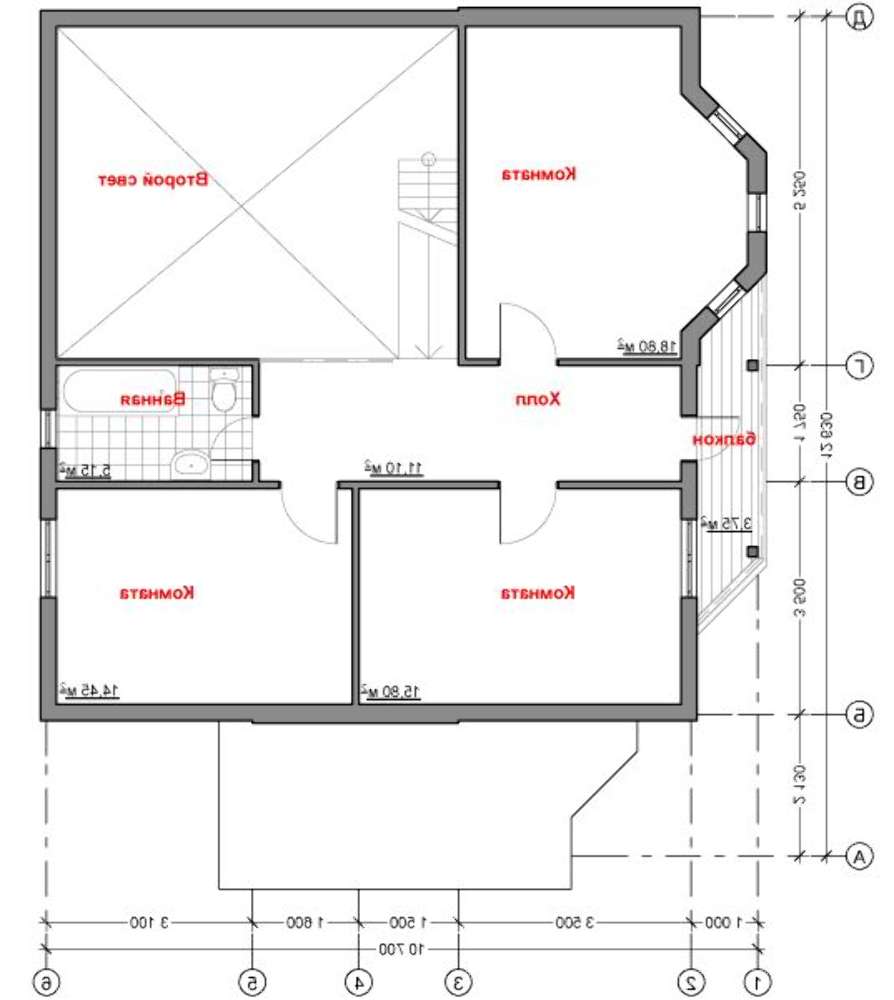
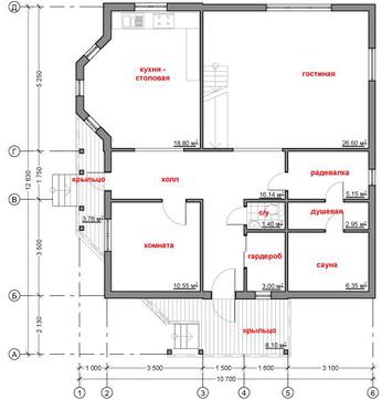
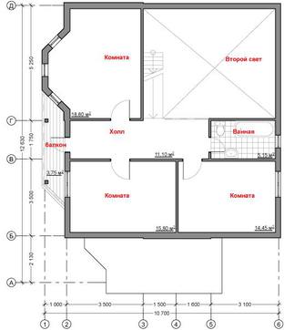
| Общая площадь: | 158.00 м2 | 
| Количество спален: | 3 | 
| Количество санузлов: | 2 | 
| Минимальный размер участка(длина): | 17.00 м | 
| Минимальный размер участка(ширина): | 15.00 м | 
Материалы: | |
| Стены: | брус | 
| Перекрытие: | деревянное | 
| Кровля: | металлочерепица, керамическая черепица, битумная | 
| Фундамент: | монолитная лента | 
| Артикул | 4M1867 | 
| Количество этажей: | 2 | 
| Общая площадь: | 158.00 м2 | 
| Количество спален: | 3 | 
| Количество санузлов: | 2 | 
| Минимальный размер участка(длина): | 17.00 м | 
| Минимальный размер участка(ширина): | 15.00 м | 
Материалы: | |
| Стены: | брус | 
| Перекрытие: | деревянное | 
| Кровля: | металлочерепица, керамическая черепица, битумная | 
| Фундамент: | монолитная лента | 
Покупая проект дома в компании Dom4M, Вы получаете комплект чертежей, необходимый для проведения строительных работ и беспрепятственного получения разрешения на строительство.
В основном составе, наш проект содержит: Пояснительную записку и два больших раздела – Архитектурный и Конструктивный.
1. В состав Архитектурного раздела входят:
2. В состав Конструктивного раздела входят:
3. Инженерный раздел (приобретается по желанию):
Срок изготовления проекта дома составляет от 7 до 35 рабочих дней.
Объем проектной документации – от 50 до 90 страниц А4 и А3, в зависимости от сложности проекта
Наша команда Архитекторов, Конструкторов и Инженеров – всегда готовы воплотить Вашу мечту в реальность!
Мы можем вносить любые изменения в проект по Вашему пожеланию и адаптировать его с учетом конкретных геолого-топографических и климатических условий, за дополнительную плату.
Всегда рады Вам помочь!
           