С правилами ознакомлен(а) Авторизация
Авторизация нужна для сохраниения Вашего "Избранного".
Войти через:

 

 

 

 

 

 

 

Уважаемые клиенты, компания DOM4M продолжает работу и выполняет свои обязательства в установленные сроки. Берегите себя и своих близких!

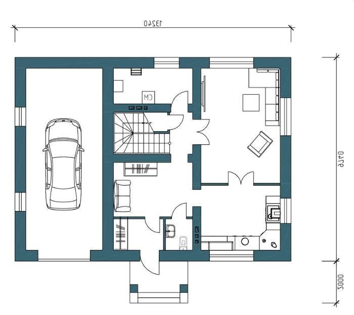
  • Первый этаж:
    Первый этаж::
    Первый этаж::
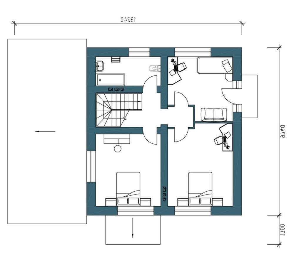
    Второй этаж:
    Второй этаж::
    Второй этаж::
  • 4M1401 Компактный проект с рациональным распределением площадей

    Артикул4M1401
    Количество этажей:2
    Общая площадь:163.00 м2
    Высота дома:9.26 м
    Высота потолка:2.90 м
    Угол наклона кровли:42 °
    Площадь крыши:212.00 м2
    Кубатура:1120.00 м3
    Количество спален:3
    Количество санузлов:2
    Гараж:Гараж на одно авто
    Площадь застройки:135 м2
    Материалы:
    Стены:газобетонные блоки
    Перекрытие:плиты перекрытия
    Кровля:металлочерепица
    Фундамент:ленточный монолитно-сборной
Планы этажей
  • Первый этаж:
    Первый этаж:
    Первый этаж:
    Второй этаж:
    Второй этаж:
    Второй этаж:
Фасады и расположение на участке
Состав проекта

Приобретая проект дома в компании Dom4M, Вы получаете комплект чертежей - 2 экземпляра, необходимый для проведения строительных работ и беспрепятственного получения разрешения на строительство.

Проект содержит три раздела – Архитектурный, Конструктивный и Инженерный (Водоснабжение, Отопление, Вентиляция, Канализация, Электроснабжение) + Пояснительная записка

1. Архитектурный раздел:

  • Общие данные по проекту
  • План координационных осей
  • Поэтажные кладочные планы
  • Поэтажные маркировочные планы с экспликацией помещений
  • План кровли
  • Разрезы и состав конструкций
  • Фасады с ведомостью внешних отделок
  • Элементы проемов – спецификация
  • Ведомость перемычек – сечения и спецификация
  • Экспликация полов
  • Объемы основных строительных материалов
  • Архитектурные узлы в конструкциях

2. Конструктивный раздел:

  • Общие данные по проекту
  • Схемы расположения и расчеты фундаментов
  • Элементы каркаса – схемы расположения
  • Схема расположения перекрытий
  • Опоры перекрытия на стены или Узлы армирования
  • Элементы кровли – схемы расположения
  • Чертежи отдельных элементов, узлы крепления, сечения
  • Ведомости расхода стали и бетона

3.  Инженерный раздел:

              Водоснабжение и канализация

  • Условные обозначения с общими данными
  • Поэтажная система водоснабжения и канализации
  • Аксономитрическая схема водоснабжения и канализации
  • Узлы и спецификация материалов

              Отопление, вентиляция

  • Условные обозначения с общими даннями
  • Система вентиляции
  • Система отопления
  • Аксономитрическая схема системы отопления
  • Тепловая схема
  • Спецификация материалов

             Электротехнические решения:

  • Условные обозначения и общие данные
  • Принципиальная схема ВРУ
  • План сетей освещения, план силовых сетей
  • Схема системы уравнения потенциалов
  • Схема повторного контура заземления
  • Спецификация материалов

Проект является типовым и не учитывает конкретных условий строительства

Срок изготовления проекта дома составляет от 3 до 30 рабочих дней.

Объем проектной документации – от  50 до 100 страниц А4 и А3, в зависимости от сложности проекта

 

Наша команда Архитекторов, Конструкторов и Инженеров – всегда готовы воплотить Вашу мечту в реальность!

Мы можем вносить любые изменения в проект по Вашему пожеланию и адаптировать его с учетом конкретных геолого-топографических и климатических условий, за дополнительную плату.

  • Получить профессиональную консультацию у наших специалистов, Вы можете любым способом связи: закажите обратный звонок, по skype, e-mail, телефон - наши контакты.

Всегда рады Вам помочь!

Прочитать полный текст
Акции

          

       Вы купили проект, и были бы не против вернуть часть денег затраченных на покупку? Или, может быть, таким образом, дать возможность подзаработать своим детям, племянникам, крестникам? :) Начните вести в комментариях к проекту свой блог "ДНЕВНИК СТРОЙКИ" описывайте и размещайте фотографии от первого дня строительства и до заселения! Рассказывайте обо всём, что может быть интересно другим посетителям нашего сайта! Мы гарантируем, что автор КАЖДОГО полного блога получит 10% от суммы, затраченной на приобретёние проекта.

 

        Если Вы строитесь по нашему проекту и Вам интересна эта акция - свяжитесь с нами, чтобы узнать подробнее! С желающими мы готовы заключить юридический договор о возврате средств!

        Вкладка "комментарии" в каждом проекте и в каждом разделе: пишите Ваши мнения и оценки, размещайте фото и описания стройки!

 

Дополнительные пакеты
Фасады

Компактный проект с рациональным распределением площадей 4M1401

История просмотров
Комментарии
Чтобы оставить комментарий, Вы должны либо заполнить поля ниже, либо авторизироваться на сайте.
Загрузить фото, до 5 штук
Ваша оценка:
Подобные
ЗАКАЗАТЬ
© 2010-2021 Dom4M. Все права защищены
This site is protected by reCAPTCHA and the Google Privacy Policy and Terms of Service apply