| Артикул | 4M822 |
| Количество этажей: | 2 |
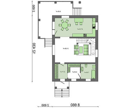
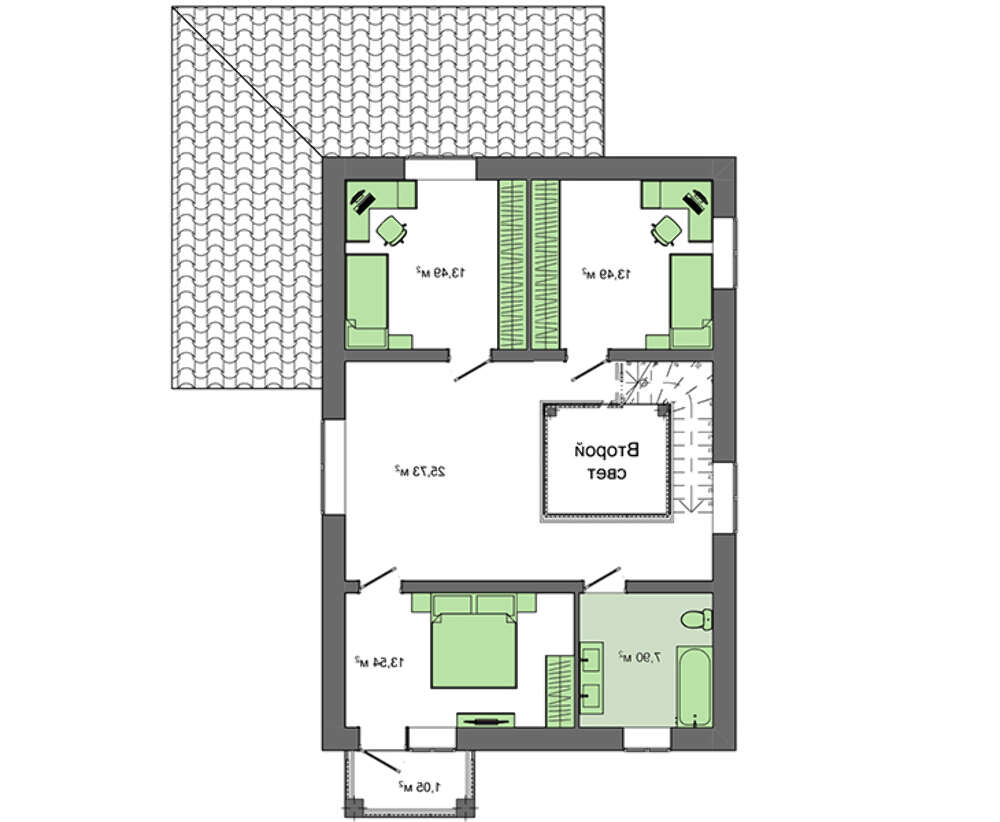
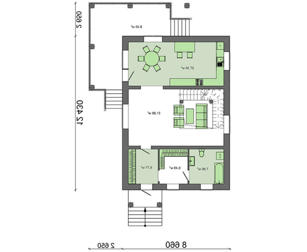
| Общая площадь: | 164.04 м2 |
| Жилая площадь: | 67.86 м2 |
| Высота дома: | 9.50 м |
| Высота потолка: | 2.80 м |
| Угол наклона кровли: | 30 ° |
| Количество спален: | 3 |
| Количество санузлов: | 2 |
| Минимальный размер участка(длина): | 21.00 м |
| Минимальный размер участка(ширина): | 17.00 м |
Материалы: | |
| Стены: | газобетон, керамические блоки |
| Перекрытие: | монолитное перекрытие |
| Кровля: | металлочерепица, керамическая черепица, битумная |
| Фундамент: | монолитная лента |
| Артикул | 4M822 |
| Количество этажей: | 2 |
| Общая площадь: | 164.04 м2 |
| Жилая площадь: | 67.86 м2 |
| Высота дома: | 9.50 м |
| Высота потолка: | 2.80 м |
| Угол наклона кровли: | 30 ° |
| Количество спален: | 3 |
| Количество санузлов: | 2 |
| Минимальный размер участка(длина): | 21.00 м |
| Минимальный размер участка(ширина): | 17.00 м |
Материалы: | |
| Стены: | газобетон, керамические блоки |
| Перекрытие: | монолитное перекрытие |
| Кровля: | металлочерепица, керамическая черепица, битумная |
| Фундамент: | монолитная лента |
Приобретая проект дома в компании Dom4M, Вы получаете комплект чертежей - 2 экземпляра, необходимый для проведения строительных работ и беспрепятственного получения разрешения на строительство.
Проект содержит три раздела – Архитектурный, Конструктивный и Инженерный (Водоснабжение, Отопление, Вентиляция, Канализация, Электроснабжение) + Пояснительная записка
1. Архитектурный раздел:
2. Конструктивный раздел:
3. Инженерный раздел:
Водоснабжение и канализация
Отопление, вентиляция
Электротехнические решения:
Проект является типовым и не учитывает конкретных условий строительства
Срок изготовления проекта дома составляет от 3 до 30 рабочих дней.
Объем проектной документации – от 50 до 100 страниц А4 и А3, в зависимости от сложности проекта
Наша команда Архитекторов, Конструкторов и Инженеров – всегда готовы воплотить Вашу мечту в реальность!
Мы можем вносить любые изменения в проект по Вашему пожеланию и адаптировать его с учетом конкретных геолого-топографических и климатических условий, за дополнительную плату.
Всегда рады Вам помочь!

У Лукоморья чего только не росло, но самым видным растением был, разумеется, дуб. Вот под ним и жил кот, не простой, а признанный ученый, награжденный золотой цепью за вклад в науку. И однажды кот задумался:
- Надо бы мне домик построить, здесь места чистые, живописные, а свежего воздуха – хоть отбавляй!
Кот слыл натурой решительной, а потому на следующий день отправился в город, проект дома разыскивать. Вернулся он через три дня с толстой папкой в руках и по-кошачьи довольным лицом.
- Эге-ге! Лесные жители, большие и малые! Я строительство завтра начинаю!
И слетелись, сбежались и сползлись к коту все-все лесные обитатели: помочь высокоуважаемому дом строить. Строили день, строили два, и раз – готов домик! Классический стиль, два этажа, просторные холлы. Домик получился чудесный настолько, что и сами звери удивились. Вышел кот на порог и сказал:
- Если б не вы, друзья, не видать мне этого дивного дома! Уж спасибо вам от всей кошачьей души!
И довольный владелец особняка скрылся внутри – мебель расставлять да занавесочки развешивать!
У Лукоморья чего только не росло, но самым видным растением был, разумеется, дуб. Вот под ним и жил кот, не простой, а признанный ученый, награжденный золотой цепью за вклад в науку. И однажды кот задумался:
- Надо бы мне домик построить, здесь места чистые, живописные, а свежего воздуха – хоть отбавляй!
Кот слыл натурой решительной, а потому на следующий день отправился в город, проект дома разыскивать. Вернулся он через три дня с толстой папкой в руках и по-кошачьи довольным лицом.
- Эге-ге! Лесные жители, большие и малые! Я строительство завтра начинаю!
И слетелись, сбежались и сползлись к коту все-все лесные обитатели: помочь высокоуважаемому дом строить. Строили день, строили два, и раз – готов домик! Классический стиль, два этажа, просторные холлы. Домик получился чудесный настолько, что и сами звери удивились. Вышел кот на порог и сказал:
- Если б не вы, друзья, не видать мне этого дивного дома! Уж спасибо вам от всей кошачьей души!
И довольный владелец особняка скрылся внутри – мебель расставлять да занавесочки развешивать!