| Артикул | 4M4703 |
| Количество этажей: | 3 |
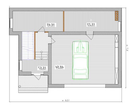
| Общая площадь: | 401.00 м2 |
| Жилая площадь: | 165.00 м2 |
| Высота дома: | 9.00 м |
| Высота потолка: | 3.00 м |
| Угол наклона кровли: | 35 ° |
| Количество спален: | 5 |
| Количество санузлов: | 4 |
| Минимальный размер участка(длина): | 29.60 м |
| Минимальный размер участка(ширина): | 22.00 м |
Материалы: | |
| Стены: | газобетон, керамический блок |
| Перекрытие: | монолитное перекрытие |
| Кровля: | металлочерепица, керамическая черепица, битумная |
| Фундамент: | монолитная лента |
| Артикул | 4M4703 |
| Количество этажей: | 3 |
| Общая площадь: | 401.00 м2 |
| Жилая площадь: | 165.00 м2 |
| Высота дома: | 9.00 м |
| Высота потолка: | 3.00 м |
| Угол наклона кровли: | 35 ° |
| Количество спален: | 5 |
| Количество санузлов: | 4 |
| Минимальный размер участка(длина): | 29.60 м |
| Минимальный размер участка(ширина): | 22.00 м |
Материалы: | |
| Стены: | газобетон, керамический блок |
| Перекрытие: | монолитное перекрытие |
| Кровля: | металлочерепица, керамическая черепица, битумная |
| Фундамент: | монолитная лента |
Приобретая проект дома в компании Dom4M, Вы получаете комплект чертежей - 2 экземпляра, необходимый для проведения строительных работ и беспрепятственного получения разрешения на строительство.
Проект содержит три раздела – Архитектурный, Конструктивный и Инженерный (Водоснабжение, Отопление, Вентиляция, Канализация, Электроснабжение) + Пояснительная записка
1. Архитектурный раздел:
2. Конструктивный раздел:
3. Инженерный раздел:
Водоснабжение и канализация
Отопление, вентиляция
Электротехнические решения:
Проект является типовым и не учитывает конкретных условий строительства
Срок изготовления проекта дома составляет от 3 до 30 рабочих дней.
Объем проектной документации – от 50 до 100 страниц А4 и А3, в зависимости от сложности проекта
Наша команда Архитекторов, Конструкторов и Инженеров – всегда готовы воплотить Вашу мечту в реальность!
Мы можем вносить любые изменения в проект по Вашему пожеланию и адаптировать его с учетом конкретных геолого-топографических и климатических условий, за дополнительную плату.
Всегда рады Вам помочь!

На центральной улице царило оживление: по понедельникам здесь всегда было особенно шумно и людно. Колокольчик на двери архитектурной лавки зазвенел: пришел визитер. В дверях показался солидный джентльмен, одетый дорого, скромно и со вкусом.
- Проходите, - секретарь принял его пальто и зонт, указав на дверь, ведущую в кабинет архитектора.
- Что привело вас к нам, дорогой гость? - спросил архитектор, снимая очки.
- Мне нужен дом, новый дом. Просто дом, - добавил он.
- Сэр, - архитектор нетерпеливо поднялся с места, - позвольте согласиться с вами, но не во всем. Мой опыт подсказывает мне, что вам нужен не просто дом. Скорее образец очаровательной эстетики, просторное здание для комфортной жизни, обитель красоты и гармонии, которую только может создать человек. Я покажу вам один проект, - и перед глазами гостя появился шикарный особняк, - вы мне видитесь в нем счастливым и довольным, уж простите мою любознательность и словоохотливость.
Гость бросил взгляд на особняк. На его лице заиграла улыбка, говорящая о том, что дом ему полностью подходит.
Повторный звон колокольчика провожал джентльмена. Тот покинул бюро довольным, унося проект. Видать, скоро в городе появится новый неповторимый дом…
На центральной улице царило оживление: по понедельникам здесь всегда было особенно шумно и людно. Колокольчик на двери архитектурной лавки зазвенел: пришел визитер. В дверях показался солидный джентльмен, одетый дорого, скромно и со вкусом.
- Проходите, - секретарь принял его пальто и зонт, указав на дверь, ведущую в кабинет архитектора.
- Что привело вас к нам, дорогой гость? - спросил архитектор, снимая очки.
- Мне нужен дом, новый дом. Просто дом, - добавил он.
- Сэр, - архитектор нетерпеливо поднялся с места, - позвольте согласиться с вами, но не во всем. Мой опыт подсказывает мне, что вам нужен не просто дом. Скорее образец очаровательной эстетики, просторное здание для комфортной жизни, обитель красоты и гармонии, которую только может создать человек. Я покажу вам один проект, - и перед глазами гостя появился шикарный особняк, - вы мне видитесь в нем счастливым и довольным, уж простите мою любознательность и словоохотливость.
Гость бросил взгляд на особняк. На его лице заиграла улыбка, говорящая о том, что дом ему полностью подходит.
Повторный звон колокольчика провожал джентльмена. Тот покинул бюро довольным, унося проект. Видать, скоро в городе появится новый неповторимый дом…