| Артикул | 4M2783 |
| Количество этажей: | 2 |
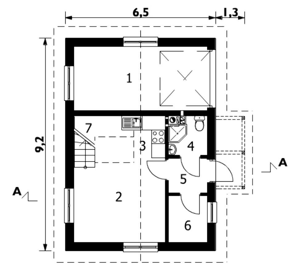
| Общая площадь: | 89.00 м2 |
| Высота дома: | 6.20 м |
| Угол наклона кровли: | 37 ° |
| Кубатура: | 281.00 м3 |
| Количество санузлов: | 1 |
| Гараж: | Гараж на одно авто |
Материалы: | |
| Стены: | газобетон, керамические блоки |
| Перекрытие: | по деревянным балкам |
| Кровля: | керамическая черепица, металлочерепица, цементно-песчаная черепица |
| Фундамент: | монолитная лента |
| Артикул | 4M2783 |
| Количество этажей: | 2 |
| Общая площадь: | 89.00 м2 |
| Высота дома: | 6.20 м |
| Угол наклона кровли: | 37 ° |
| Кубатура: | 281.00 м3 |
| Количество санузлов: | 1 |
| Гараж: | Гараж на одно авто |
Материалы: | |
| Стены: | газобетон, керамические блоки |
| Перекрытие: | по деревянным балкам |
| Кровля: | керамическая черепица, металлочерепица, цементно-песчаная черепица |
| Фундамент: | монолитная лента |
Приобретая проект дома в компании Dom4M, Вы получаете комплект чертежей - 2 экземпляра, необходимый для проведения строительных работ и беспрепятственного получения разрешения на строительство.
Проект содержит три раздела – Архитектурный, Конструктивный и Инженерный (Водоснабжение, Отопление, Вентиляция, Канализация, Электроснабжение)
Общим элементом архитектурной и конструкционной частей является техническое описание, которое информирует о функциональных решениях, касающихся объекта, со спецификацией его площади и кубатуры, а также о предлагаемых конструкционных и отделочных предложениях и рекомендованных строительных материалах.
1. Архитектурный раздел:
2. Конструктивный раздел:
3. Инженерный раздел:
Проект является типовым и не учитывает конкретных условий строительства
Срок изготовления проекта дома составляет от 3 до 30 рабочих дней.
Объем проектной документации – от 50 до 100 страниц А4 и А3, в зависимости от сложности проекта
Наша команда Архитекторов, Конструкторов и Инженеров – всегда готовы воплотить Вашу мечту в реальность!
Мы можем вносить любые изменения в проект по Вашему пожеланию и адаптировать его с учетом конкретных геолого-топографических и климатических условий, за дополнительную плату.
Всегда рады Вам помочь!
