| Артикул | 4M2309 |
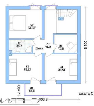
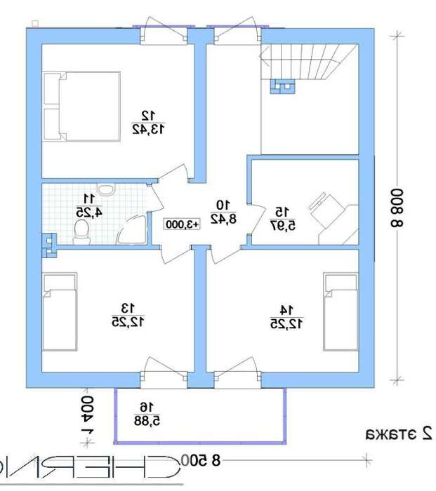
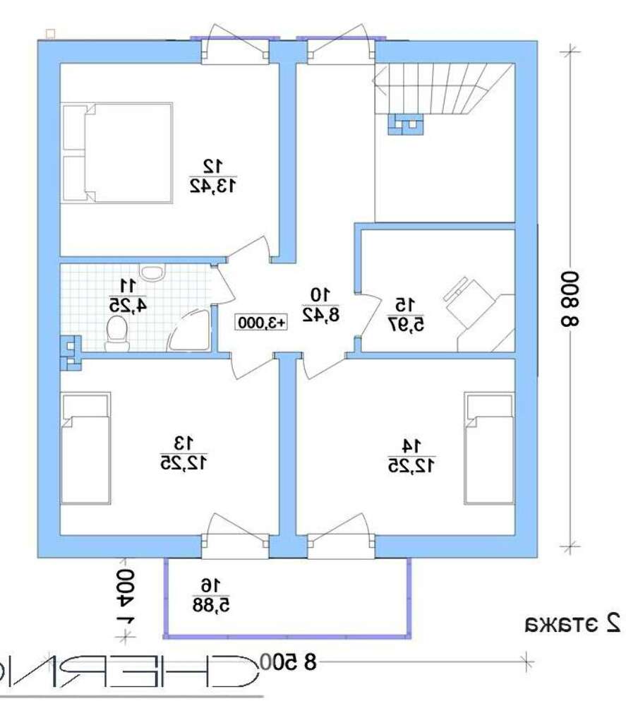
| Количество этажей: | 2 |
| Общая площадь: | 130.00 м2 |
| Жилая площадь: | 79.00 м2 |
| Высота дома: | 7.00 м |
| Высота потолка: | 2.70 м |
| Угол наклона кровли: | 30 ° |
| Площадь крыши: | 200.00 м2 |
| Кубатура: | 350.00 м3 |
| Количество спален: | 4 |
| Количество санузлов: | 2 |
| Минимальный размер участка(длина): | 20.00 м |
| Минимальный размер участка(ширина): | 16.00 м |
| Площадь застройки: | 110 м2 |
Материалы: | |
| Стены: | газобетон, керамические блоки |
| Перекрытие: | по деревянным балкам |
| Кровля: | керамическая черепица, металлочерепица, цементно-песчаная черепица |
| Фундамент: | ленточный монолитно-сборной |
Дополнительные сведения: | Проект студии современной архитектуры А.Черноокой. |
| Артикул | 4M2309 |
| Количество этажей: | 2 |
| Общая площадь: | 130.00 м2 |
| Жилая площадь: | 79.00 м2 |
| Высота дома: | 7.00 м |
| Высота потолка: | 2.70 м |
| Угол наклона кровли: | 30 ° |
| Площадь крыши: | 200.00 м2 |
| Кубатура: | 350.00 м3 |
| Количество спален: | 4 |
| Количество санузлов: | 2 |
| Минимальный размер участка(длина): | 20.00 м |
| Минимальный размер участка(ширина): | 16.00 м |
| Площадь застройки: | 110 м2 |
Материалы: | |
| Стены: | газобетон, керамические блоки |
| Перекрытие: | по деревянным балкам |
| Кровля: | керамическая черепица, металлочерепица, цементно-песчаная черепица |
| Фундамент: | ленточный монолитно-сборной |
Дополнительные сведения: | Проект студии современной архитектуры А.Черноокой. |
Покупая проект дома в компании Dom4M, Вы получаете комплект чертежей, необходимый для проведения строительных работ и беспрепятственного получения разрешения на строительство.
Состав проекта АС может быть отличаться, в зависимости от конструкций и материалов дома.
Срок изготовления проекта дома составляет от 7 до 35 рабочих дней.
Объем проектной документации – от 50 до 90 страниц А4 и А3, в зависимости от сложности проекта
Наша команда Архитекторов, Конструкторов и Инженеров – всегда готовы воплотить Вашу мечту в реальность!
Мы можем вносить любые изменения в проект по Вашему пожеланию и адаптировать его с учетом конкретных геолого-топографических и климатических условий, за дополнительную плату.
Получить профессиональную консультацию у наших специалистов, Вы можете любым способом связи: закажите обратный звонок, по skype, e-mail, телефон - наши контакты.
Всегда рады Вам помочь!

Жил-был талантливый звездочет. В большом городе ему не хватало звездного неба, поскольку огни светили слишком ярко. Квартира на последнем этаже стала ему тесна, он собрал вещи, захватил с собой проект дома и отправился в путешествие по миру. Он искал место, где его и звезды не разделяло бы ничто. И вот, объездив все континенты, он нашел подходящее место: это оказалось побережье Тихого океана в Перу. Там он достал проект дома и построил двухэтажный коттедж, небольшой, но очень удобный.
Его спальня оказалась на втором этаже. После бессонной ночи наблюдения за звездами звездочет отправлялся спать, и, погружаясь в сон, он все равно видел небесные светила через мансардное окно. Теперь его и небесные светила не разделяли преграды, и они всецело были вместе.
Звездочет завел дневник и принялся записывать в него все свои наблюдения. Так родилась книга о звездах, которую он написал, сидя в кабинете на первом этаже. Книга увидела свет и приобрела огромную популярность: о звездочете узнали все. Его куда только и не приглашали: заниматься наукой, писать книги, но он не покидал свой дом на океанском побережье, и до сих пор там живет, посвящая себя звездам, и благодарит судьбу за то, что та подарила ему такую интересную жизнь.
Жил-был талантливый звездочет. В большом городе ему не хватало звездного неба, поскольку огни светили слишком ярко. Квартира на последнем этаже стала ему тесна, он собрал вещи, захватил с собой проект дома и отправился в путешествие по миру. Он искал место, где его и звезды не разделяло бы ничто. И вот, объездив все континенты, он нашел подходящее место: это оказалось побережье Тихого океана в Перу. Там он достал проект дома и построил двухэтажный коттедж, небольшой, но очень удобный.
Его спальня оказалась на втором этаже. После бессонной ночи наблюдения за звездами звездочет отправлялся спать, и, погружаясь в сон, он все равно видел небесные светила через мансардное окно. Теперь его и небесные светила не разделяли преграды, и они всецело были вместе.
Звездочет завел дневник и принялся записывать в него все свои наблюдения. Так родилась книга о звездах, которую он написал, сидя в кабинете на первом этаже. Книга увидела свет и приобрела огромную популярность: о звездочете узнали все. Его куда только и не приглашали: заниматься наукой, писать книги, но он не покидал свой дом на океанском побережье, и до сих пор там живет, посвящая себя звездам, и благодарит судьбу за то, что та подарила ему такую интересную жизнь.